Seguretat davant el risc elèctric
La prevenció de riscos laborals en temes elèctrics afecta una gran quantitat de situacions d’índole molt diversa i de característiques molt diferents.
Malgrat això, existeix una normativa bàsica que recull els aspectes bàsics que s’han d’observar en matèria de prevenció laboral.
Les disposicions mínimes de seguretat estan recollides en el Reial decret 614/2001, que especifica les característiques mínimes que s’han de tenir en compte en el moment de plantejar les condicions de seguretat en matèria laboral.
Definicions de l'RD 614/2001
L’objectiu del Reial decret 614/2001 és protegir els treballadors contra el risc elèctric als llocs de treball.
L’àmbit d’aplicació de l’RD614/2001 són:
- Instal·lacions elèctriques dels llocs de treball.
- Tècniques i procediments per treballar a les instal·lacions elèctriques dels llocs de treball.
- Tècniques i procediments per treballar a les proximitats de les instal·lacions elèctriques dels llocs de treball.
El risc elèctric és el risc originat per l’energia elèctrica. Dins d’aquesta definició s’inclouen: el contacte elèctric directe i indirecte, les cremades per contacte o per arc elèctric, els cops i les caigudes com a conseqüència de contacte o arc elèctric, i els incendis i/o les explosionsoriginats per l’electricitat.
El procediment de treball és la seqüència d’operacions que cal desenvolupar per fer una feina determinada, incloent-hi els mitjans materials i humans per dur-la a terme.
La zona de perill o zona de treball en tensió és l’espai al voltant d’elements en tensió on la presència d’un treballador desprotegit suposa un risc greu i imminent que es produeixi un arc elèctric o un contacte directe amb l’element que està en tensió, tenint en compte els moviments i els gestos que pot efectuar el treballador sense desplaçar-se.
És important tenir coneixements de la tecnologia elèctrica per estar més ben protegits dels riscos que es poden provocar.
La zona de proximitat és l’espai delimitat al voltant de la zona de perill, des del qual el treballador pot envair accidentalment la zona de perill.
El treball en tensió és la feina durant la qual un treballador entra en contacte amb elements que estan en tensió o entra a la zona de perill, tant si és amb una part del cos, com amb les eines, els equips, els dispositius o els materials que manipula.
Les definicions...
… apareixen en l’RD 614/2001 i ens especifiquen clarament una sèrie de conceptes relacionats amb el treball en presència d’electricitat.
El treball en proximitat és la feina durant la qual el treballador entra o pot entrar a la zona de proximitat sense entrar a la zona de perill, tant si és amb una part del cos, com amb les eines, els equips, els dispositius o els materials que manipula.
El treballador autoritzat és el que ha estat autoritzat per l’empresari per fer determinades feines amb risc elèctric, partint de la base de la seva capacitat per fer-les correctament, segons els procediments establerts en aquest reial decret.
El treballador qualificat és treballador autoritzat que disposa de coneixements especialitzats en matèria d’instal·lacions elèctriques gràcies a la seva formació acreditada, professional o universitària, o gràcies a la seva experiència certificada de dos anys o més.
El cap de treball és la persona designada per l’empresari per assumir la responsabilitat efectiva de les feines.
Per poder diferenciar les instal·lacions d’alta i baixa tensió, ens remetrem a l’article 2 del Reial decret 842/2002, de 2 d’agost, pel qual s’aprova el Reglament electrotècnic per a baixa tensió.
El Reglament electrotècnic per a baixa tensió estableix que les instal·lacions de baixa tensió són totes aquelles que tenen una tensió nominal en corrent altern igual o inferior a 1.000 V i una tensió nominal en corrent continu igual o inferior a 1.500 V.
Alta o baixa tensió
La definició d’alta o baixa tensió és fonamental per fer complir el Reglament electrotècnic de baixa tensió (RD 842/2002) o normatives referents a alta tensió.
Pel que fa a les instal·lacions d’alta tensió, i prenent com a referència el que diu la Instrucció tècnica complementària (ITC-RAT 01) del Reglament sobre condicions tècniques i garanties de seguretat en instal·lacions elèctriques d’alta tensió, són instal·lacions amb una tensió nominal superior a 1 kV.
A la taula es pot veure un resum dels diferents treballs que es poden fer i la qualificació del personal que els pot realitzar.
| Treball sense tensió | Maniobres, mesures, assajos, verificacions | Treball en tensió | Treball en proximitat | |
|---|---|---|---|---|
| Baixa tensió | Autoritzat (per suprimir i restablir la tensió) | Autoritzat | Qualificat. Autoritzat per reposar fusibles | Preparació: autoritzat Realització: qualsevol treballador |
| Alta tensió | Qualificat (per suprimir i restablir la tensió) | Qualificat. Qualificat ajudat per un autoritzat | Qualificat amb vigilància d’un cap de treball Qualificat (fusibles a distància) | Preparació: qualificat Realització: autoritzat o qualsevol treballador sota la vigilància d’un autoritzat |
Obligacions de l'empresari
És obligació de l’empresari adoptar les mesures necessàries perquè, de l’ús o la presència de l’energia elèctrica als llocs de treball no es derivin riscos per a la salut i la seguretat dels treballadors o, en cas que això no sigui possible, perquè aquests riscos es redueixin al mínim.
Per aquest motiu, l’avaluació dels riscos d’un lloc de treball ha d’incloure l’avaluació dels riscos originats per l’energia elèctrica; és aquesta avaluació de riscos la que, veritablement, permetrà determinar si les característiques, l’ús i el manteniment de les instal·lacions elèctriques i les tècniques i els procediments utilitzats per treballar en aquestes instal·lacions o a prop s’ajusten al que estableixen aquest reial decret i qualsevol altra normativa específica que sigui aplicable.
Instal·lacions elèctriques, tècniques i procediments de treball
El tipus d’instal·lació elèctrica d’un lloc de treball i les característiques dels seus components s’han d’adaptar a les condicions específiques del lloc, l’activitat que s’hi desenvolupa i els equips elèctrics (receptors) que s’hi hagin d’utilitzar.
Mesures preventives
Les mesures preventives s’han de basar en l’avaluació de riscos que preveuen l’article 16 de la Llei de prevenció de riscos laborals i la secció 1a del capítol II del Reglament dels serveis de prevenció.
Per això, entre altres factors, s’han de tenir en compte:
- Les característiques conductores del lloc de treball (per exemple, locals molls, locals humits o presència de superfícies molt conductores).
- La presència d’atmosferes explosives i materials inflamables.
- Els ambients corrosius.
- Qualsevol altre factor que pugui incrementar significativament el risc elèctric.
Treballs sense tensió
Les operacions i les maniobres per deixar sense tensió una instal·lació, abans d’iniciar el “treball sense tensió”, i restablir la tensió en finalitzar-lo es troben regulades en l’annex II del Reial decret 614/2001. Aquestes operacions les han de dur a terme treballadors autoritzats, en el cas de baixa tensió, i qualificats, en el cas d’alta tensió.
El procés pel qual se suprimeix la tensió de la instal·lació on s’ha de dur a terme el “treball sense tensió” és conegut com “les cinc regles d’or” i té per objecte protegir els treballadors del risc elèctric derivat de l’aparició inesperada de tensions perilloses a la instal·lació.
Per suprimir la tensió d’una instal·lació, primer s’ha d’identificar la zona en què s’ha de fer la feina i, tret que hi hagi raons essencials per fer-ho d’una altra manera, cal seguir un procés, que es desenvolupa seqüencialment en cinc etapes (cinc regles d’or).
Les cinc regles d’or:
- Desconnectar (la part de la instal·lació en la qual s’ha de treballar).
- Prevenir qualsevol possible realimentació.
- Verificar l’absència de tensió.
- Posada a terra i curtcircuit.
- Protegir contra elements propers que tenen tensió i establir una senyalització de seguretat per delimitar la zona de treball (cal tenir en compte el Reial decret 485/1997, de 14 d’abril, sobre senyalització de seguretat i salut al treball).
Des del moment en què se suprimeix una de les mesures adoptades inicialment per efectuar la feina sense tensió en condicions de seguretat (cinc regles d’or), es considera que la part de la instal·lació afectada està en tensió.
Instal·lació en tensió
Des del moment en què se suprimeix una de les mesures adoptades inicialment per efectuar la feina sense tensió, en condicions de seguretat (cinc regles d’or), es considera que la part de la instal·lació afectada està en tensió.
Reposició de la tensió
Les operacions i les maniobres per reposar la tensió d’una instal·lació, un cop finalitzades les feines, les han de dur a terme treballadors autoritzats, en el cas de baixa tensió, i qualificats, en el cas d’alta tensió. La reposició de la tensió únicament pot començar després que:
Procediments de treball
Els procediments de treball en feines sense tensió han de ser seguits de forma exhaustiva, ja que qualsevol error pot provocar un accident mortal.
- Hagin finalitzat les feines.
- Tots els treballadors que no resultin indispensables s’hagin retirat.
- S’hagin recollit de la zona de treball les eines i els equips utilitzats.
El procés de reposició de la tensió es compon del següent:
- La retirada, si n’hi ha, de les proteccions addicionals i de la senyalització que indica els límits de la zona de treball.
- La retirada, si n’hi ha, de la posada a terra i el curtcircuit.
- El desbloqueig i/o la retirada de la senyalització dels dispositius de tall.
- El tancament dels circuits per reposar la tensió.
Treballs en tensió
El treball en tensió l’han de dur a terme treballadors qualificats, seguint un procediment estudiat prèviament i, si la complexitat o la novetat de la feina ho requereixen, assajat sense tensió.
Les feines en llocs on la comunicació sigui dificultosa s’han de fer en presència de, com a mínim, dos treballadors amb formació en matèria de primers auxilis.
Protecció del treballador
El mètode, els equips i els materials utilitzats han d’assegurar la protecció del treballador contra el risc elèctric, i han de garantir que no pugui entrar en contacte accidentalment amb qualsevol altre element que es trobi en un potencial diferent del seu.
Els treballadors han de disposar d’un recolzament sòlid i estable que els permeti tenir les mans lliures, i d’una il·luminació adequada per dur a terme la feina.
Els treballadors no poden dur objectes conductors (polseres, rellotges, cremalleres metàl·liques, etc.).
Les feines s’han de prohibir o suspendre en cas de tempesta, pluja, vents forts, nevades o qualsevol altra condició ambiental desfavorable que dificulti la visibilitat o la manipulació de les eines.
Les feines en instal·lacions interiors connectades directament a línies elèctriques aèries s’han de suspendre en cas de tempesta.
Distàncies límit
La figura ens permet determinar si el treball que es fa a prop d’un element que està en tensió ha de ser considerat treball en tensió o treball en proximitat.
Aquesta consideració està determinada per la posició mateixa del punt o element en tensió i per la ubicació de la zona de treball respecte d’aquest element. Així doncs, tenint en compte les distàncies establertes en la figura anterior, podem trobar quatre situacions regulades en el Reial decret 614/2001 i que es mostren de forma esquemàtica en la figura.
Disposicions addicionals per a treball en alta tensió
La feina s’ha d’efectuar sota la direcció i la vigilància d’un cap de treball, que ha de ser un treballador qualificat que n’assumeixi la responsabilitat directa.
Si l’amplitud de la zona de treball no li permet una vigilància adequada, ha de demanar l’ajuda d’un altre treballador qualificat.
El cap de treball s’ha de comunicar amb el responsable de la instal·lació on es duu a terme la feina per adequar les condicions de la instal·lació a les exigències d’aquesta.
Els treballadors qualificats per treballar en alta tensió han de ser autoritzats per escrit per l’empresari, després de comprovar la seva capacitat per fer aquesta feina correctament segons un procediment establert, que s’ha de definir per escrit i ha d’incloure el següent:
- La seqüència de les operacions que cal efectuar.
- Les mesures de seguretat que cal adoptar en cada operació.
- Els materials i els mitjans de protecció que s’han d’utilitzar i, si és necessari, les instruccions d’ús i la verificació de l’estat d’aquests materials i mitjans.
- Les circumstàncies que podrien exigir la interrupció de la feina.
Tasques en presència d'alta tensió
Totes les tasques que es realitzen en presència d’alta tensió s’han de fer segons una seqüència de treball, incloent-hi les mesures que s’han d’adoptar en cada operació.
L’autorització s’ha de renovar, després de la comprovació de la capacitat del treballador per seguir correctament el procediment de treball establert, en els casos següents:
- Quan el procediment canviï significativament.
- Quan el treballador hagi deixat de fer la feina en qüestió durant un període de temps superior a un any.
L’autorització s’ha de retirar en els casos següents:
- Quan s’observi que el treballador incompleix les normes de seguretat.
- Quan la vigilància de la salut posi de manifest que l’estat o la situació transitòria del treballador no s’adeqüen a les exigències psicofísiques requerides per la feina que s’ha de desenvolupar.
Treballs en proximitat
En tot treball en proximitat d’elements en tensió, el treballador ha de romandre fora de la zona de perill, i n’ha d’estar tan allunyat com la feina li ho permeti.
Abans d’iniciar el treball en proximitat d’elements en tensió, un treballador autoritzat (en el cas de baixa tensió) o un treballador qualificat (en el cas d’alta tensió) n’ha de determinar la viabilitat.
Preparació del treball
De la mateixa manera que en els treballs en tensió, primer s’ha de preparar el treball i després s’ha de realitzar; per això, com més acurada sigui la preparació el risc serà menor en l’execució.
En cas que la feina sigui viable, cal reduir al mínim el nombre d’elements en tensió i les seves zones de perill.
Si amb aquesta mesura encara resten elements en tensió o zones de perill accessibles, s’ha de delimitar d’una manera eficaç la zona de treball i informar-ne els treballadors que hi estan implicats directament o indirectament.
Si un cop preparat el treball, les mesures adoptades no són suficients per protegir els treballadors contra el risc elèctric, un cop delimitada la zona de treball, i després d’haver-ne informat els treballadors:
- Les feines les han de dur a terme treballadors autoritzatso bé s’han de dur a terme sota la vigilància d’un treballador autoritzat.
- En el desenvolupament de la seva funció de vigilància, els treballadors autoritzats han de vetllar pel compliment de les mesures de seguretat i controlar-les.
- La vigilància no és exigible quan les feines es facin fora de la zona de proximitat o en instal·lacions de baixa tensió.
Obres i altres activitats en què es produeixin moviments a prop d'instal·lacions elèctriques
Abans d’iniciar l’activitat, cal identificar les possibles línies elèctriques o les altres instal·lacions existents a la zona de treball.
Certificat de distància
Si es vol estar segur que una obra es realitza sense la presència de línies elèctriques d’alta tensió, es pot demanar un certificat de distància de línies en el qual es certifica que a la zona normal de treball no existeix cap línia elèctrica d’alta tensió.
Cal prendre mesures per evitar el contacte amb elements protegits que tenen tensió i evitar el trencament de l’aïllament d’aquests elements.
Si, en alguna de les fases d’activitat, la presència d’elements desprotegits que tenen tensió pot suposar un risc elèctric per als treballadors i, per les condicions d’explotació o de continuïtat del subministrament, aquests elements no es poden desviar o deixar sense tensió, s’ha de procedir segons el que s’ha descrit anteriorment en els apartats de preparació i realització de feines de proximitat.
Treballs en emplaçaments amb risc d'incendi o explosió
La instal·lació elèctrica i els equips utilitzats han de complir les prescripcions particulars que estableix la reglamentació electrotècnica per a aquests tipus de locals.
Seguretat contra incendis
La seguretat en emplaçaments amb risc d’incendi és encara més important, ja que qualsevol espurna pot provocar un accident de conseqüències molt greus.
Tot i això, les feines en aquest tipus de locals s’han d’efectuar tenint encompte les prescripcions següents:
- S’ha de seguir un procediment que redueixi al mínim els riscos d’incendi i explosió.
- Cal controlar la presència de substàncies inflamables a la zona de treball.
- S’ha d’evitar l’aparició de focus d’ignició.
- Si hi ha o pot haver-hi una atmosfera inflamable, cal prohibir la realització de feines o operacions en tensió, tret que els equips estiguin concebuts per treballar en aquestes condicions.
- Abans de començar les feines, cal verificar la disponibilitat, l’adequació al tipus de foc previsible i el bon estat dels mitjans i els equips d’extinció.
- Les feines en emplaçaments amb risc d’incendi les han d’efectuar treballadors autoritzats.
- Si les feines s’han de dur a terme en una atmosfera explosiva, les han de realitzar treballadors qualificatsseguint un procediment estudiat prèviament.
Electricitat estàtica
A qualsevol lloc o en qualsevol procés en què es puguin produir acumulacions de càrregues electrostàtiques, cal prendre les mesures preventives necessàries per evitar descàrregues perilloses i, particularment, la producció d’espurnes en locals amb risc d’incendi o explosió.
Per evitar l’acumulació de càrregues electrostàtiques, s’ha de prendre unao diverses de les mesures següents:
- Eliminar o reduir els processos de fricció.
- Evitar, en la mesura del possible, processos que produeixin polvorització, aspersió o caiguda lliure.
- Fer ús de materials antiestàtics o incrementar-ne la conductivitat.
- Connexions a terra i equipotencials, quan sigui necessari, dels materials susceptibles d’adquirir càrrega, els que són especialment conductors o els elements metàl·lics aïllats.
- Fer ús de dispositius específics per a l’eliminació de càrregues electrostàtiques. En aquest cas, la instal·lació no ha d’exposar el treballador a radiacions perilloses.
- Qualsevol altra mesura per a un procés concret que garanteixi la no-acumulació de càrregues electrostàtiques.
Perill d'electricitat estàtica
El perill més gran de l’electricitat estàtica és provocar espurnes en ambients explosius; per tant, en aquest tipus d’ambients és important complir perfectament la normativa.
Reglament electrotècnic de baixa tensió (Reial decret 842/2002)
El Reial decret 842/2002 conté el Reglament electrotècnic aplicable a les instal·lació de baixa tensió. Entra en vigor, amb caràcter obligatori, per a totes les instal·lacions compreses en el seu àmbit d’aplicació un any després de la seva publicació en el BOE (BOE 224, de 18 de setembre de 2002). No obstant això, es pot aplicar voluntàriament des de la data en què es publica.
L’objecte d’aquest reglament és establir les condicions tècniques i les garanties que han de complir les instal·lacions elèctriques connectades a una font de subministrament en els límits de la baixa tensió.
Les finalitats del Reglament electrotècnic de baixa tensió (Reial decret 842/2002) són:
- Preservar la seguretat de les persones i els béns.
- Garantir el funcionament normal de les instal·lacions esmentades i preveure pertorbacions en altres instal·lacions i serveis.
- Contribuir a la fiabilitat tècnica i a l’eficiència econòmica de les instal·lacions.
L’àmbit d’aplicació d’aquesta normativa són:
- Instal·lacions que distribueixin energia elèctrica, generin electricitat per al consum propi i instal·lacions receptores amb una tensió nominal igual o inferior a 1.000 V en corrent altern, i igual o inferior a 1.500 V en corrent continu.
- Les noves instal·lacions, les seves modificacions i les seves ampliacions.
- Les instal·lacions existents abans de l’entrada en vigor que siguin objecte de modificacions d’importància i reparacions d’importància, i les seves ampliacions.
- Les instal·lacions existents abans de l’entrada en vigor, quan el seu estat, la seva situació o les seves característiques impliquin un risc greu per a les persones, o quan es produeixin pertorbacions importants en el funcionament normal d’altres instal·lacions, segons el parer de l’òrgan competent de la comunitat autònoma.
Es consideren modificacions d’importància les que afecten més del 50% de la potència instal·lada i les que afecten línies completes de processos productius amb nous circuits i quadres, tot i que se’n redueixi la potència.
Estan excloses de l’àmbit d’aplicació les instal·lacions i equips d’ús exclusiu en mines, material de tracció, automòbils, vaixells, aeronaus, sistemes de comunicació, i els usos militars i les altres instal·lacions i equips que es trobin subjectes a reglamentacions específiques.
Protecció contra contactes directes
La protecció contra contactes directes consisteix a prendre mesures destinades a protegir les persones contra els perills que es poden derivar d’un
Art. 29 de l'RD 842/2002
L’article 29 inclou la guia tècnica on podem trobar les instruccions tècniques complementàries que orienten els tècnics sobre quins són els procediments que s’han de seguir, no només en qüestions de seguretat, sinó també en tot el que fa referència a instal·lacions.
contacte amb les parts actives dels materials elèctrics (figura). Aquestes proteccions són les següents:
- Protecció per mitjà de l’aïllament de les parts actives.
- Protecció per mitjà de barreres o embolcalls.
- Protecció per mitjà de la interposició d’obstacles.
- Protecció per mitjà de l’allunyament.
- Protecció complementària per mitjà de dispositius de corrent diferencial residual.
Protecció per mitjà de l'aïllament de les parts actives
La protecció per mitjà de l’aïllament de les parts actives consisteix a recobrir-les amb un aïllament que únicament pugui ser eliminat destruint-lo.
No es considera que les pintures, els vernissos, les laques i els productes similars constitueixin un aïllament suficient en el marc de la protecció contra els contactes directes.
Protecció per mitjà de barreres o embolcalls
Les superfícies de les barreres o els embolcalls horitzontals que siguin accessibles fàcilment han de disposar, com a mínim, d’un grau de protecció IP4X o IP XXD.
Les parts actives s’han de situar a l’interior d’embolcalls o darrere de barreres que disposin, com a mínim, d’un grau de protecció IP XXB, segons la norma UNE-EN 60529:2018.
Les barreres o els embolcalls s’han de fixar d’una manera segura i han de tenir prou robustesa i durabilitat per mantenir els graus de protecció exigits, amb una separació suficient de les parts actives en les condicions normals de servei, tenint en compte les influències externes.
Si és necessari suprimir les barreres, obrir els embolcalls o treure’n una part, això únicament pot ser possible en un dels supòsits següents:
- Amb l’ajuda d’una clau o una eina.
- Després d’haver tret la tensió de les parts actives protegides per aquestes barreres o embolcalls. La tensió no es pot restablir fins després de tornar a col·locar-los.
- En el supòsit que hi hagi interposada una segona barrera, amb un grau de protecció mínim IP2X o IP XXB, que no pugui ser retirada si no és amb l’ajuda d’una clau o d’una eina i que impedeixi qualsevol contacte amb les parts actives.
Protecció per mitjà de la interposició d'obstacles
La protecció per mitjà de la interposició d’obstacles no garanteix una protecció completa i la seva aplicació es limita, a la pràctica, als locals de servei elèctric, accessibles únicament a personal autoritzat.
Els obstacles tenen com a finalitat impedir els contactes fortuïts amb les parts actives de la instal·lació, però no els contactes voluntaris per una temptativa deliberada de salvar l’obstacle.
Els obstacles han d’impedir:
- L’apropament físic no inte ncionat a les parts actives.
- Els contactes no intencionats amb les parts actives en el cas d’intervencions en equips de baixa tensió mentre estan funcionant.
Els obstacles es poden desmuntar sense l’ajuda d’una eina o una clau; no obstant això, s’han de fixar de manera que se n’impedeixi el desmuntatge involuntari.
Protecció per mitjà de l'allunyament
La mesura de l’allunyament no garanteix una protecció completa i la seva aplicació es limita, a la pràctica, als locals de servei elèctric accessibles únicament a personal autoritzat.
L’allunyament de les parts actives únicament té com a finalitat impedir els contactes fortuïts amb les parts actives.
Les parts accessibles simultàniament que es troben en tensions diferents no han d’estar dins del volum d’accessibilitat.
El volum d’accessibilitat de les persones es defineix com l’ubicat al voltant dels emplaçaments en els quals poden romandre o circular persones, i els límits dels quals no poden ser abastats per una mà sense mitjans auxiliars.
Per conveni, el volum d’accessibilitat de les persones es limita segons el que s’indica en la figura (s’entén que l’altura que limita el volum és de 2,5 m).
Si l’espai en què poden circular les persones (superfície transitable) es troba limitat per un obstacle (per exemple, un llistó de protecció, baranes, un panell enreixat) que presenta un grau de protecció inferior a IP2X o IP XXB, segons l’UNE-EN 60529:2018, el volum d’accessibilitat comença a partir d’aquest obstacle.
Als emplaçaments on es manipulen, d’una manera habitual, objectes conductors voluminosos o de gran longitud, les distàncies esmentades anteriorment s’han d’incrementar tenint en compte les dimensions d’aquests objectes.
Bàsicament la protecció contra contactes directes es fa posant dificultats a arribar als punts on es poden produir aquests contactes.
Protecció complementària per mitjà de dispositius de corrent diferencial residual
Aquesta mesura de protecció està destinada únicament a complementar altres mesures de protecció contra contactes directes.
L’ús de dispositius de corrent diferencial residual en què el valor del corrent diferencial assignat al funcionament sigui inferior o igual a 30 mA es reconeix com a mesura de protecció complementària en cas de fallada d’una altra mesura de protecció contra els contactes directes per imprudència dels usuaris.
Quan es prevegi la possibilitat que els corrents diferencials no siguin sinusoïdals (per exemple, sales de radiologia intervencionista), els dispositius de corrent diferencial residual utilitzats han de ser de classe A, que garanteixen la desconnexió per a corrents alterns sinusoïdals, i també per a corrents continus polsants.
Protecció contra contactes indirectes
La protecció contra contactes indirectes consisteix a prendre mesures destinades a protegir les persones contra els perills que es poden derivar d’un contacte amb les parts que es troben sota tensió com a resultat d’una fallada de l’aïllament.
Aquestes proteccions són:
- Protecció per mitjà del tall automàtic de l’alimentació.
- Protecció per mitjà de la utilització d’equips de la classe II o per mitjà d’un aïllament equivalent.
- Protecció en locals o emplaçaments no conductors.
- Protecció per mitjà de connexions equipotencials locals no connectades a terra.
- Protecció per mitjà de la separació elèctrica.
Naturalment, ha d’existir una coordinació entre l’esquema de connexions a terra de la instal·lació utilitzada i les característiques dels dispositius de protecció.
No hem d’oblidar que, tal com ens mostra l’ITCBT-08 del Reglament electrotècnic per a baixa tensió vigent, les xarxes de distribució pública de baixa tensió tenen un punt connectat directament a terra per prescripció reglamentària.
Xarxes de distribució pública
Segons l’ITCBT-08 de l’article 29 del REBT, les xarxes de distribució pública han de tenir un punt connectat a terra, que serà el neutre de la xarxa domèstica.
El punt connectat directament a terra és el neutre de la xarxa; per tant, l’esquema de distribució per a instal·lacions receptores alimentades directament des d’una xarxa de distribució pública de baixa tensió és l’esquema TT, sobre el qual exposarem els diversos sistemes de protecció contra contactes elèctrics indirectes (figura).
Protecció per mitjà del tall automàtic de l'alimentació
El tall automàtic de l’alimentació després de l’aparició d’una fallada està destinat a impedir que una tensió de contacte de valor suficient es mantingui durant prou temps per poder donar un risc com a resultat.
En l’esquema TT, totes les masses dels equips elèctrics protegits per un mateix dispositiu de protecció han d’estar interconnectades i unides per un conductor de protecció a una mateixa presa de terra.
Esquema TT
En l’esquema TT, totes les masses dels equips elèctrics protegits per un mateix dispositiu de protecció han d’estar interconnectades i unides per un conductor de protecció a una mateixa presa de terra.
Si es munten diversos dispositius de protecció en sèrie, aquesta prescripció s’aplica per separat a les masses protegides per cada dispositiu.
En aquest esquema de distribució, s’ha de complir la condició següent:
On:
- Ra:és la suma de les resistències de la presa de terra i dels conductors de protecció de les masses.
- Ia:és el corrent que garanteix el funcionament automàtic del dispositiu de protecció. Quan el dispositiu de protecció és un dispositiu de corrent diferencial residual, és el corrent diferencial residual assignat.
- U: és la tensió de contacte límit convencional (50 V, 24 V o d’altres, segons els casos).
En un esquema TT, com a protecció per mitjà del tall automàtic de l’alimentació es poden utilitzar:
Funcionament del diferencial
Bàsicament la funció del diferencial és detectar fugues de corrent mitjançant un sistema magnètic; en cas de detectar fugues, obre el circuit i deixa de passar corrent.
- Dispositius de protecció de corrent diferencial residual.
- Dispositius de protecció de màxim corrent, com ara fusibles o interruptors automàtics. Aquests dispositius únicament són aplicables quan la resistència Ra té un valor molt baix.
Si el dispositiu de protecció és un dispositiu de protecció contra sobreintensitats, ha de ser:
- Un dispositiu que tingui una característica de funcionament de temps invers, i Ia ha de ser el corrent que garanteixi el funcionament automàtic en 5 segons com a màxim.
- Un dispositiu que tingui una característica de funcionament instantani, i Ia ha de ser el corrent que garanteixi el funcionament instantani.

La protecció per mitjà d’equips de la classe II o per mitjà d’un aïllament equivalent es garanteix mitjançant:
- L’ús d’equips amb un aïllament doble o reforçat (classe II).
- Conjunts de parament construïts a fàbrica que disposin d’aïllament equivalent (doble o reforçat).
- Aïllaments suplementaris muntats al llarg de la instal·lació elèctrica i que aïllin equips elèctrics que disposin únicament d’un aïllament principal.
- Aïllaments reforçats muntats al llarg de la instal·lació elèctrica i que aïllin les parts actives descobertes, quan per construcció no sigui possible la utilització d’un doble aïllament (figura 40).
- Dispositius de protecció de corrent diferencial residual, com el representat a la figura.
La norma UNE-HD 60364-4-41:2010 descriu la resta de característiques i revestiments que han de complir els embolcalls d’aquests equips.
Protecció en locals o emplaçaments no conductors
La norma UNE-HD 60364-4-41:2010 indica les característiques de les proteccions i dels mitjans per a aquests casos.
Aquesta mesura està indicada per impedir, en cas de fallada de l’aïllament principal de les parts actives, el contacte simultani amb parts que poden estar posades a tensions diferents.
S’admet la utilització de materials de classe 0 sempre que les masses es disposin de manera que, en condicions normals, les persones no facin contacte simultani amb dues masses, o bé amb una massa i qualsevol altre element conductor, si aquests elements es poden trobar a tensions diferents en cas d’una fallada de l’aïllament principal de les parts actives. En aquests locals (emplaçaments), no ha d’estar previst cap conductor de protecció.
Doble aïllament
Si les màquines que fem servir disposen de doble aïllament, augmenta la dificultat que es produeixi un contacte indirecte entre la màquina i el treballador que la fa servir.
Les prescripcions esmentades anteriorment es consideren satisfetes si l’emplaçament disposa de parets aïllants i es compleixen una o diverses de les condicions següents:
- Allunyament respectiu de les masses i els elements conductors, i també de les masses entre elles. Aquest allunyament es considera suficient si la distància entre dos elements és de 2 m com a mínim; aquesta distància es pot reduir a 1,25 m per fora del volum d’accessibilitat (figura).
- Interposició d’obstacle s eficaços entre les masses o entre les masses i els elements conductors. Aquests obstacles es consideren suficientment eficaços si deixen la distància de flanqueig en els valors que s’indiquen en el punt anterior. No s’han de connectar ni a terra ni a les masses i, en la mesura del possible, han de ser de material aïllant.
- Aïllament o disposició aïllada dels elements conductors. L’aïllament ha de tenir una rigidesa mecànica suficient i poder suportar una tensió d’assaig mínima de 2.000 V. El corrent de fuga no ha de ser superior a 1 mA en les condicions normals d’ús.

Les parets i els terres aïllants han de presentar una resistència mínima de 50 kΩ, si la tensió nominal de la instal·lació no és superior a 500 V, i de 100 kΩ, si la tensió nominal de la instal·lació és superior a 500 V.
Si la resistència en tots els seus punts no és superior o igual al valor prescrit, aquestes parets i aquests terres es consideren elements conductors des del punt de vista de la protecció contra les descàrregues elèctriques.
- Les disposicions adoptades han de ser duradores i no es poden inutilitzar.
- S’ha de garantir la protecció dels equips mòbils quan estigui previst fer-ne ús.
- S’ha d’evitar la col·locació posterior, a les instal·lacions elèctriques no vigilades contínuament, d’altres parts (per exemple, materials mòbils de classe I o elements conductors, com ara conductes d’aigua metàl·lics) que puguin anul·lar la conformitat esmentada anteriorment.
- S’ha d’evitar que la humitat pugui comprometre l’aïllament de les parets i els terres.
- S’han d’adoptar mesures adequades per evitar que els elements conductors puguin transferir tensions fora de l’emplaçament considerat.
Protecció per mitjà de connexions equipotencials locals no connectades a terra
Els conductors d’equipotencialitat han de connectar totes les masses i tots els elements conductors que siguin accessibles d’una manera simultània. Aquesta connexió equipotencial no s’ha de connectar a terra, ni directament ni a través de masses o elements conductors.
S’han d’adoptar disposicions per garantir l’accés de persones a l’emplaçament considerat sense que puguin ser sotmeses a una diferència de potencial perillosa. Això s’aplica, concretament, en el cas en què un terra conductor, aïllat del terreny, es trobi connectat a la connexió equipotencial local.
Protecció per mitjà de la separació elèctrica
El circuit s’ha d’alimentar per mitjà d’una font de separació, és a dir, un transformador d’aïllament o una font que garanteixi un grau de seguretat equivalent al transformador d’aïllament (per exemple, un grup motor generador que disposi d’una separació equivalent).
La norma UNE-HD 60364-4-41:2010 esmenta el conjunt de prescripcions que ha de garantir aquesta protecció.
En cas que el circuit separat només alimenti un aparell, les masses del circuit no han d’estar connectades a un conductor de protecció.
En cas que un circuit separat alimenti diversos aparells, cal complir les condicions següents:
- Les masses del circuit separat s’han de connectar entre elles, mitjançant conductors d’equipotencialitat aïllats, no connectats a terra. Aquests conductors no s’han de connectar a conductors de protecció, ni a masses d’altres circuits, ni a elements conductors.
- Totes les bases de les preses de corrent han de disposar d’un contacte a terra, que s’ha de connectar al conductor d’equipotencialitat.
- Tots els cables flexibles d’equips que no siguin de classe II han de disposar d’un conductor de protecció, que ha de ser utilitzat com a conductor d’equipotencialitat.
- En el cas de dos defectes francs que afectin dues masses i que estiguin alimentats per conductors de polaritat diferent, hi ha d’haver un dispositiu de protecció que garanteixi el tall en un temps igual o inferior als que es mostren en la taula.
En cas que el circuit separat només alimenti un aparell, les masses del circuit no han d’estar connectades a un conductor de protecció.
| Voltatge (V) | Temps d’interrupció (s) |
|---|---|
| 230 | 0,4 |
| 400 | 0,2 |
| > 400 | 0,1 |
Documents bàsics necessaris per legalitzar una instal·lació de BT
Hi ha una sèrie de documents que permeten fer un seguiment de la instal·lació tant abans de ser realitzada com un cop s’ha finalitzat. Aquests documents estan previstos en el REBT i normalment han de ser emplenats per l’instal·lador.
Seguidament s’indica quin és l’objectiu de cadascun:
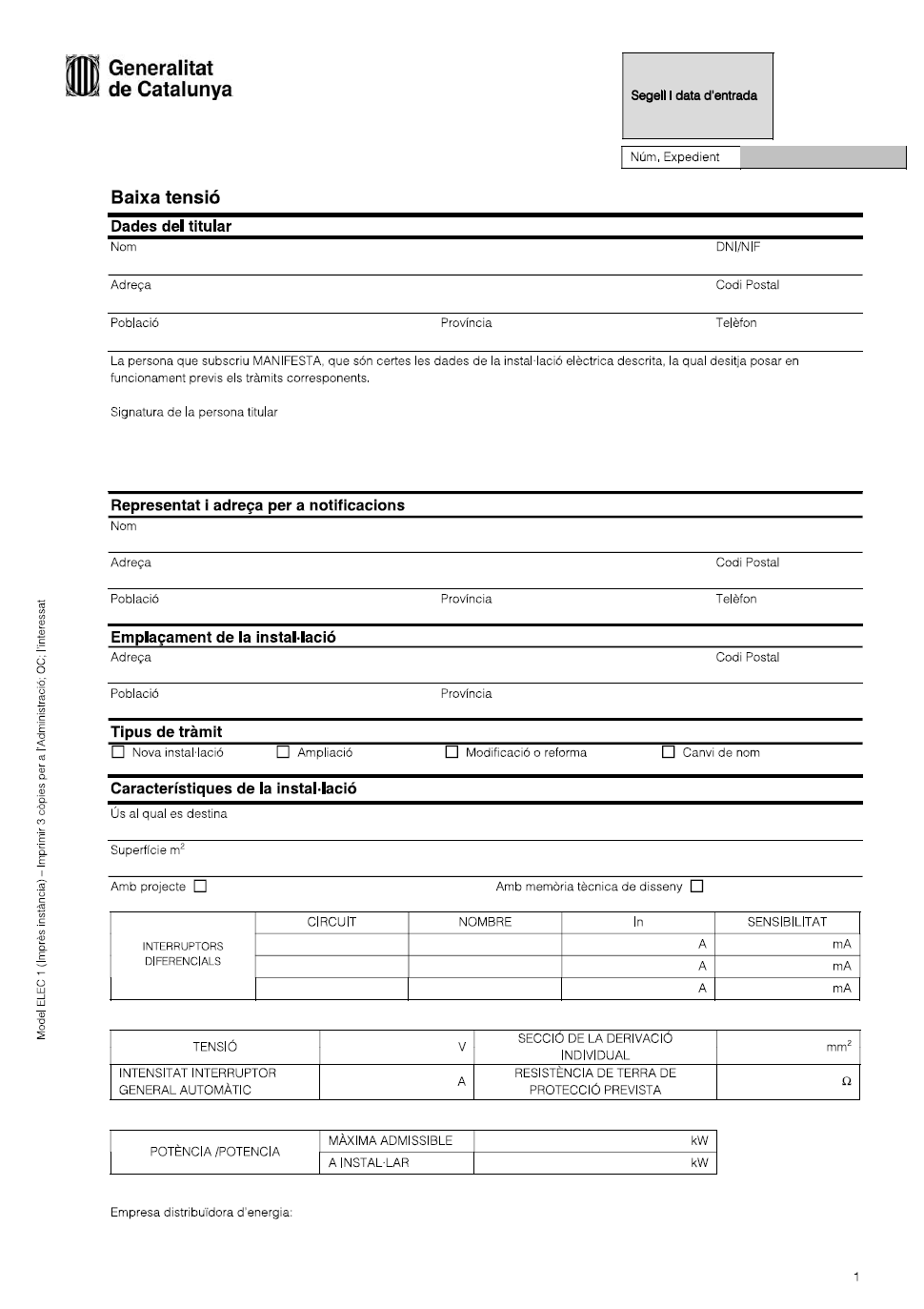
Model ELEC 1 (figura)
Es un document que omplirà el tècnic electricista amb totes les dades de la instal·lació, també s’inclouran les dades de tots els tècnics que intervinguin en la instal·lació, incloent l’enginyer que ha dissenyat el projecte, si cal projecte.
És un document que serveix d’instància per fer els tràmits de legalització i inclou un apartat on indicar quins són els documents presentats.
Model ELEC 2 (figura)
L’ha d’omplir l’electricista seguint el patró que proporciona el model, fent l’esquema unifilar de la instal·lació.
Model ELEC 3 (figura)
Representa una memòria tècnica senzilla de la instal·lació feta, l’ha d’omplir el tècnic electricista.
Model ELEC 4 (figura)
És el certificat de direcció i acabament de la instal·lació elèctrica, en el cas que s’hagi hagut de realitzar projecte tècnic per enginyer, serà l’enginyer qui farà aquest certificat, en cas que no hagi calgut enginyer serà el mateix tècnic electricista qui omplirà el document.
Model ELEC 5 (figura)
En el cas que a la instal·lació existeixin aparells subjectes a reglaments específics hauran d’estar indicats en aquest document
Per realitzar els tràmits de legalització s’ha de fer mitjançant una EAC o entitat ambiental de control, que haurà de ser reconeguda com a tal per la Generalitat de Catalunya, normalment aquesta EAC fa una inspecció per comprovar que els documents que li han presentat corresponen a les característiques i qualitats dels aparells instal·lats.














