L'organització dels espais i els materials
“L’espai és l’ànima de l’escola infantil.”
J. Quilghini (1980)
-

- Sala d'usos múltiples de l'EBM Nenes i Nens de Barcelona. Els espais amplis amb mobiliari i equipament específics afavoreixen el moviment i l'estimulen.
No sempre s’ha atorgat a l’espai la importància educativa que té. Cal que ens apropiem l’espai i que el fem part del nostre projecte educatiu: l’espai físic, la seva organització i distribució, així com els materials i els recursos, hi tenen un paper molt destacat i cal que els utilitzem i els considerem instruments d’intervenció educativa.
“Els infants ens demostren un apropament a l’espai molt més ric del que suposem, en què el joc condueix a una profunda comprensió de l’espai. Així, les escales i esglaons no solament serveixen per comunicar diferents nivells, sinó que són un espai per ser habitat, o des del qual poder observar diferents punts de vista […]. La seva riquesa potencial és molt més gran si l’interpretem des del joc […] sentint la seva acústica o el tacte de la matèria… sense oblidar el que és sensorial, emocional o simbòlic en l’ús de l’espai.”
I. Cabanellas; C. Eslava (coord.) (2005). Territorios de la infancia. Diálogos entre arquitectura y pedagogía (pàg. 130). Barcelona: Graó.
L’organització de l’espai condiciona els aprenentatges, per la qual cosa n’hem d’analitzar les característiques i l’ús que se’n fa. La manera d’organitzar els espais està determinada per la nostra manera d’entendre l’aprenentatge i per les metodologies que fem servir, expressa una manera de pensar (sobre l’aprenentatge, l’infant, la comunicació, etc.) i permet fer unes coses o unes altres. Les persones interaccionem amb l’ambient, que ens influeix. Hi ha ambients rics i facilitadors, i d’altres que són tot dificultats i limitacions. Quan milloren els espais escolars millora també la qualitat educativa.
Des de l'Escola Nova...
… s’introdueixen canvis en la manera d’entendre els espais escolars: l’aula continua essent important, però es dóna també molta importància a altres zones polivalents i comunes on tenen lloc moltes activitats. Es destaca el paper central de l’activitat de l’educador en relació amb l’organització de l’espai i del temps.
Així, doncs, els espais ens poden oferir oportunitats com les següents:
“L’espai en l’educació es constitueix com una estructura d’oportunitats. És una condició externa que afavorirà o dificultarà el procés de creixement personal i el desenvolupament de les activitats instructives. Serà facilitador o, ans el contrari, limitador, segons el nivell de congruència respecte dels objectius i la dinàmica general de les activitats que es posin en marxa, o en relació amb els mètodes educatius i instructius que caracteritzin els nostres estils de treball. [Hi ha] dos tipus d’influències exercides per l’ambient: influències directes (quan provoquen, impedeixen, faciliten o dificulten una determinada conducta, o procés que s’ha de desenvolupar), i influències simbòliques (quan no és l’ambient en si mateix sinó la percepció i la interpretació que els subjectes fan de diferents aspectes de l’ambient el que condiciona la seva conducta i la marxa de les activitats).”
M. A. Zabalza (1996). Didáctica de la educación infantil (pàg. 120). Madrid: Narcea.
L’ambient de l’escola ha de respondre a les necessitats infantils i a les característiques de cada infant i també del grup. Per tant, hi ha d’haver espais per moure’s i espais per descansar, i han de permetre, amb les referències individuals, que el nen els faci seus. Com veurem més endavant, ha de ser una organització oberta i flexible, amb espais fixos (amb referències clares per donar seguretat) i espais canviants, que permeten donar resposta a les noves necessitats que sorgeixen en el curs del desenvolupament infantil.
Quan organitzem els espais, però també els temps, hem de tractar de crear contextos que serveixin per afavorir, provocar i organitzar relacions dels infants entre ells i l’entorn, i també que permetin plantejar-se qüestions, establir hipòtesis, crear vincles, connectar coses que sabem, etc.
“La recerca en neurociències i en ciències socials ha confirmat que la nostra identitat es desenvolupa a partir de la nostra experiència de l’entorn i de la nostra història genètica. Quan naixem, el nostre cervell i la nostra capacitat de percebre i d’experienciar la realitat encara no estan formats ni ben definits, però, com una flor, estan esperant per obrir-se. Els nostres sentits i habilitats cognitives es desenvolupen a través de la interacció amb el nostre entorn […].
Els infants són un laboratori per als sentits, i cada un dels sentits activa els altres. Tenen una capacitat cinestèsica: poden «veure» la temperatura, «tocar» la llum, «tastar» les olors. Les escoles infantils i els espais per a infants constitueixen un taller enorme dels sentits perquè l’infant construeix coneixement. Aquests entorns poden donar suport i estimular els camins d’aprenentatge dels infants, influenciar els processos cognitius i la percepció i contribuir a la formació de la identitat individual de l’infant.”
M. Zini (2005). “Veure, sentir, tocar, tastar, olorar i estimar”. Infància a Eu-ro-pa (núm. 05.8, pàg. 24-25).
El fet d’usar educativament l’ambient implica que l’educador atorga gran importància al paper del context d’aprenentatge, i configura les seves funcions.
“El professor adopta una postura constructiva i conscient respecte de l’ambient d’aula, se sent protagonista del seu maneig i el canvia a mesura que les condicions del procés li ho exigeixen […]. Aquest protagonisme del professor en la planificació de l’ambient implica relegar-se ell mateix a un paper secundari de guia auxiliar en el desenvolupament del procés. Un cop la classe està organitzada és el mateix infant qui esdevé protagonista i opta per allò que més l’atreu.”
M. A. Zabalza (1996). Didáctica de la educación infantil (pàg. 160). Madrid: Narcea.
Les instal·lacions arquitectòniques escolars
Els espais poden esdevenir contextos adequats d’aprenentatge, espais que permetin sentir-se a gust, afavorir el desenvolupament integral dels infants, que siguin atractius i motivadors, càlids i acollidors, etc. L’entorn de l’infant no es pot considerar només com un context per a l’aprenentatge, un lloc on l’infant actua, sinó que és una part de l’aprenentatge i un agent educatiu de primer ordre. Per això cal que arquitectes, educadors, pedagogs i responsables polítics col·laborin en la planificació dels espais escolars.
Ara es plantegen moltes qüestions entorn del tema: cal que hi hagi diàleg arquitectura-pedagogia perquè els infants es puguin apropiar l’espai, sentir-se segurs, protegits, retats a crear territoris, a experimentar, etc.
L’espai escolar és un element de les polítiques educatives i econòmiques.
Arquitectura i pedagogia
Com ens podem apropar a la cultura infantil des de les dues disciplines, sense que ens mostrem autosuficients? Com jugaven els infants i com juguen ara? Com fem possible que els espais per a infants siguin espais per a compartir? Donem als infants opcions d’inventar espais i transformar-los? El llibre d’I. Cabanellas i C. Eslava [(coord.) (2005). Territorios de la infancia. Diálogos entre arquitectura y pedagogía. Barcelona: Graó.] planteja la qüestió de l’espai com a entorn vital, i arquitectes i pedagogs, juntament amb artistes, sociòlegs i antropòlegs, tracten de com s’han de projectar escenaris i espais des de l’arquitectura, i situacions des de la pedagogia. Hi ha dificultats de diàleg entre els àmbits arquitectònic i pedagògic i cal que el diàleg es produeixi per poder “oferir als infants àmbits que els permetin viure l’espai com una experiència personal des de la qual puguin crear els seus territoris, els seus espais vitals com a experiència indispensable per a la conquesta d’una autonomia moral i cognitiva” (pàg. 21).
De vegades s’han dissenyat els edificis de les escoles infantils pensant en la seva funció, però en molts casos això no ha estat així, per la qual cosa calen adequacions de l’espai. Des de la LOGSE i amb la consideració del cicle de 0 a 3 anys dins el sistema educatiu, s’han revisat espais i equipaments, s’han construït o adaptat molts edificis escolars d’altres etapes i edificis no escolars (modificant els elements estructurals i d’altres elements no estructurals, com ara les divisions, finestres, portes, instal·lacions, afegint i suprimint espais, etc.) per construir escoles bressol, donada la manca de centres d’aquest nivell. Han desaparegut molts dels centres que no reunien les més mínimes condicions pel que fa als espais i equipaments. En el cas dels parvularis, vinculats en la majoria dels casos a les escoles de primària, és freqüent que tinguin edifici propi o s’ubiquin en zones independents de l’edifici.
-

- La nova Escola bressol Nenes i Nens de Barcelona s'ha construït adaptant espais d'un antic institut d'ensenyament secundari.
“El tema de l’espai i l’estètica ha estat molt important en alguns països, com Itàlia i Espanya, però no tant, per exemple, a Anglaterra. En la cultura angloamericana, l’espai no es té en compte en si mateix sinó com a part de la salut i la seguretat dels infants a l’escola. En canvi, a Itàlia o a Alemanya, significa que és part del context d’aprenentatge: ‘l’espai, el volum, les textures, la llum i les ombres, els colors i el disseny són part del bagatge cultural de l’escola’. Alguns edificis estan més ben pensats que d’altres per afavorir el desenvolupament dels infants, però tots són airejats, amplis, ben enllumenats i acabats. A Itàlia els nens estan a fora (en els espais exteriors) tot el temps que poden a la primavera i a l’estiu, i surten ben abrigats tots els dies de la tardor i l’hivern. Per ex., pel que fa a la decoració de les parets, a Anglaterra sol ser més atapeïda que a Itàlia, amb tots els treballs dels infants penjant o omplint l’espai.”
H. Penn (1997). Què passa a les escoles bressol? (pàg. 53-54). Barcelona: Rosa Sensat.
No ha estat gaire freqüent fins als darrers anys que els educadors participin en el disseny de les escoles, i tampoc que es coordinin els criteris arquitectònics amb el disseny dels equipaments, encara que en l’àmbit en el qual s’han produït un nombre més elevat de col·laboracions entre els usuaris i els arquitectes és el de l’educació infantil. Un cas exemplar d’aquest diàleg arquitectura-pedagogia ha estat el de les escoles bressol municipals de Barcelona, que ens mostren un model arquitectònic propi, original i basat en principis educatius.
“El programa municipal de construcció d’escoles bressol és fruit de la col·laboració entre els professionals que dissenyen el projecte i els equips pedagògics. I, en última instància, l’intercanvi d’opinions entre els usuaris adults i l’observació del comportament dels nens i nenes són una font molt valuosa per millorar el model i adaptar-lo a les noves necessitats. […] Les característiques individuals de cada escola bressol municipal es fonamenten en un programa comú que garanteix l’assoliment d’uns estàndards de qualitat en el terreny educatiu i en l’arquitectònic. […] Actualment, el model més habitual, i que representa el 50% de les escoles bressol de l’Ajuntament, és una escola en planta baixa amb capacitat per a 81 infants en sis aules. Aquestes aules estan orientades cap al sud o el sud-oest per aprofitar tant com es pugui la llum del sol, en un terreny sense desnivells. Aquestes escoles normalment estan situades al costat d’un CEIP i en espais verds. […] L’activitat quotidiana, el foment de les relacions socials i la intervenció singularitzada són els eixos educatius de l’escola bressol municipal; per tant, són també els tres arguments que ordenen l’espai.”
Ajuntament de Barcelona. Institut d’Educació (2009). Les escoles bressol de Barcelona. Solucions arquitectòniques al servei dels infants (pàg. 29-35). Barcelona: Institut d’Educació / Ajuntament de Barcelona.
L’Ajuntament de Barcelona distingeix dins aquest model, pertanyent a una ciutat tan densament poblada com és Barcelona, diferents tipologies d’edificis, segons l’espai on s’ubiquen:
- Escoles bressol integrades dins les escoles d’educació infantil o primària: abasten en un mateix complex educatiu les etapes educatives d’educació infantil i educació primària. Els seus accessos són independents i d’ús exclusiu i també tenen la cuina, el pati i les instal·lacions de subministraments pròpies.
- Escoles bressol integrades en equipaments públics, tant si són en edificis de nova construcció com en edificis que ja hi eren: en baixos de blocs d’habitatges, en illes d’habitatges i serveis municipals o en un complex amb altres serveis municipals.
- Escoles bressol en edificis històrics, on s’han reestructurat els espais, sien catalogats o no, per a adaptar-los a les necessitats de les escoles.
- Escoles que fan ciutat: les que contribueixen a “fomentar el diàleg amb el barri” i a “crear ciutat” per les característiques arquitectòniques que tenen, que hi atorguen protagonisme.
- Escoles a prop de la natura: són en un entorn natural privilegiat, al costat d’un bosc, d’un parc o de la platja.
- Escoles bressol en espais recuperats per a l’ús públic, que eren ocupats anteriorment per indústries urbanes.
Espais escolars i arquitectura: una miqueta d'història fins a arribar a avui
En la història de l’arquitectura es reflecteix la gran supremacia de l’aula al llarg del temps. A la darreria del segle XIX i a l’inici del segle XX trobem una bona mostra de disseny acurat i creat tenint en compte les característiques dels infants a les escoles escoceses de Glasgow dissenyades per l’arquitecte Ian Alexander.
Ajuntament de Barcelona. Institut d’Educació (2009). Les escoles bressol de Barcelona. Solucions arquitectòniques al servei dels infants (pàg. 30-35). Barcelona: Institut d’Educació / Ajuntament de Barcelona.
Els primers projectes arquitectònics inspirats en criteris pedagògics són de la dècada dels anys vint, a partir de la influència de Frobel, que incorporen espais oberts. A Espanya, el moviment modern de transformació arquitectònica de les escoles que defineix el model d’escola a l’aire lliure (que va tenir una gran repercussió a països com Alemanya, Holanda i França) té una bona representació en el parvulari de l’Instituto Escuela de Madrid (1933), d’Arniches i Domínguez. Més tard, cap a la meitat dels anys trenta, es va establir una rígida normativa que no permetia fer canvis, i després, cap a la meitat dels anys cinquanta, es comencen a dissenyar espais escolars infantils molt lluminosos, amb terres que són fàcils de fregar, és a dir, pensats amb criteris de funcionalitat. En els anys seixanta i setanta es dissenyen escoles segons els criteris humanistes, pensant en la quotidianitat.
La Domus Academy Research Center de Milà...
… en l’actualitat té una línia d’investigació per crear projectes d’ambients per als més petits, amb l’objectiu prioritari de confrontar la filosofia educativa d’avantguarda de Reggio de l’Emília amb la innovació en els projectes de disseny i arquitectònics.
La mostra més representativa és l’escola Montessori de Hermann Hertzberger, a Delft (1960-1981), la qual té en compte les propostes dels infants. Cap al final dels anys vuitanta hi ha un fort moviment dels educadors en favor de canviar els ambients que coincideix amb el canvi de model: les escoles infantils no són pàrquings de nens sinó centres educatius que han de permetre l’activitat.
Els arquitectes...
… preocupats pel disseny d’edificis escolars l’entenen com a resposta al que els infants ens diuen: més que imposar les seves idees, cal crear els espais perquè els infants puguin desenvolupar les seves.
El model reggià, a Itàlia, que atorga gran importància als contextos ambientals d’aprenentatge té com a principals criteris de projectació (Carbonero i Pérez, 2007) de l’espai escolar els següents:
- Osmosi: oberta a la ciutat.
- Habitabilitat.
- Identitat: espais personalitzats.
- Relació: intercanvi d’idees, no jerarquies.
- Constructivitat: possibilitat d’experimentar.
- Epigènesi: llocs transformables.
- Narració: petjada dels processos i de les vivències dels infants.
A l’hora de crear edificis escolars sans i funcionals que ofereixin als nens i nenes bons entorns d’aprenentatge, els objectius actuals de disseny tenen a veure, entre altres factors, amb una oferta d’espai suficient, flexible, amb àrees exteriors de gran qualitat i espais interiors acollidors i rics en possibilitats, i també amb un ús de l’energia per a la calefacció, la ventilació i la il·luminació subjectes a consideracions estrictes d’eficiència energètica, i amb fonts d’energia renovables. Cal donar molta prioritat a l’arquitectura i el disseny i, encara que és més fàcil dissenyar bons espais en escoles de nova creació, també s’han fet molt bons condicionaments d’espais que ja hi eren i que estaven destinats a altres usos.
-

- Els accessos des de l'exterior amb doble tanca garanteixen la seguretat dels infants. Accés a l'EBM El Vent (Barcelona).
Els edificis de les escoles bressol i els parvularis més adequats són els que estan orientats al sud/sud-est, perquè obtenen el màxim d’hores de sol i, per tant, de calor i llum natural. Té molts avantatges que siguin d’una sola planta i estiguin aïllats de cases veïnals, i és imprescindible que tinguin prou àrees exteriors, que tinguin accessos còmodes, sense barreres, que estiguin ben ventilats, que disposin d’una il·luminació natural i artificial òptima, paviments que siguin fàcils de fregar i càlids, que hi hagi una temperatura entre 18 i 22 graus, i unes condicions higièniques i de seguretat adequades.
Així, per exemple, la neteja del terra s’ha de fer en algunes zones de l’escola dos cops cada dia, i en alguns centres, si els nens dinen al menjador, mentrestant es neteja el terra de les aules. Les joguines també s’han de netejar molt sovint, i cal fer-ho amb més freqüència en el cas de les dels bebès.
Dimensions globals dels espais
Les dimensions globals dels espais depenen de l’edat dels infants i del nombre d’infants que hi ha a cada grup: per exemple, quan els infants comencen a caminar necessiten més espai lliure que abans. L’Institut Municipal d’Educació de Barcelona ha fixat la grandària idònia per a uns seixanta infants en uns 600 m2 d’edifici i de 400 a 600 m2 de jardí.
Requisits normatius dels edificis escolars infantils
Quan es dissenyen i es planifiquen els espais escolars, cal tenir en compte el que diuen les lleis: les condicions bàsiques dels espais físics escolars (edifici, distribució dels espais, etc.) es recullen en les normatives estatals i/o autonòmiques.
En l’actualitat tenim un marc normatiu bàsic que comprèn la LOE (estatal) i la LEC (Catalunya), del qual es despleguen les normatives sobre les característiques i els requisits mínims que han de reunir els centres educatius: edifici, dependències, equipaments, etc. Aquestes normatives vigents són el Decret 282/2006, de 4 de juliol, pel qual es regulen els requisits mínims dels centres d’educació infantil de primer cicle, d’àmbit autonòmic català, i el Reial decret 132/2010, de 12 de febrer, pel qual s’estableixen els requisits mínims dels centres que imparteixen els ensenyaments de segon cicle de l’educació infantil, l’educació primària i l’educació secundària, d’àmbit estatal.
Aquest marc normatiu encara no s’ajusta a les recomanacions dels experts sobre els espais necessaris per a fer una intervenció educativa de qualitat. Així, si els experts recomanen, des de fa dècades, pel que fa a la grandària dels espais, entre 8 m2 i 10 m2 per infant de superfície construïda, que mai no ha de ser de menys de 6 m2 per infant, la normativa vigent permet unes dimensions molt inferiors, tant si ens referim als espais interiors com als exteriors. Com a exemple d’aquestes recomanacions podem atansar-nos als Objectius de qualitat per als serveis d’atenció als infants proposats per la Xarxa Europea d’Atenció a la Infància de la Comissió Europea.
“Objectiu núm. 32. Hi hauria d’haver espai suficient, interior i exterior, per permetre als infants jugar, dormir i usar els lavabos, i per satisfer les necessitats de les famílies i els treballadors. Això implicaria:
- un espai intern de com a mínim 6 m2 per cada infant de menys de 3 anys i de 4 m2 com a mínim per cada infant entre 3 i 6 anys (excloent-ne els magatzems i els passadissos i accessos);
- accés directe a un espai exterior de 6 m2 com a mínim per infant; i
- un 5% addicional d’espai interior per a l’ús dels adults.”
Rosa Sensat (2004). “Objectius de qualitat en els serveis infantils”. Infància a Eu-ro-pa (núm. 04.6, pàg. 18-19).
Les normatives següents, d’àmbit autonòmic català i estatal, van regular en els darrers anys els espais escolars infantils a Catalunya:
- Ordres d’11 de maig i 1 de juny de 1983, i 1 d’agost de 1984
- Reial decret 132/2010, de 12 de febrer
- Decret 282/2006, de 4 de juliol
Ordres d'11 de maig i 1 de juny de 1983, i 1 d'agost de 1984
A Catalunya, l’any 1983 les escoles bressol depenien del Departament de Sanitat i Seguretat Social i es van començar a establir normatives de caràcter pedagògic i sanitari (que establien les condicions materials i higienicosanitàries i de seguretat que haurien de regir als centres d’atenció assistencial i educativa que acollien infants fins als 6 anys), coordinades amb el Departament d’Ensenyament. Es tractava d’una normativa molt avançada i pionera a Espanya (on les normes de seguretat i higiene han estat menys rigoroses que en altres països durant molt de temps), que regulava els espais i les ràtios segons les edats, les documentacions que havien de tenir els centres, les condicions sanitàries, de seguretat, les titulacions i les idoneïtats necessàries, etc.
Pel que fa a les dimensions de les aules, aquesta normativa, actualment derogada, establia 4 m2/infant en el cas dels nens de 0 a 1 any; 3 m2 en el cas d’1 a 2 anys, i 2,5 m2 per als nens de 2 a 3 anys. Al parvulari (de 3 a 6 anys), fixava 2 m2/infant. L’espai mínim de cada aula era de 30 m2, excepte en el cas de l’aula de 0 a 1 any, que era de 28 m2. La sala d’usos múltiples havia de tenir 60 m2 com a mínim.
A partir del 1988...
… i per un decret de la Generalitat (Decret 120/1988, de 5 de maig), s’assignaven al Departament d’Ensenyament els serveis en matèria d’atenció assistencial i educativa de les llars d’infants (0-3, 3-6, 0-6 anys). El mateix any el Departament d’Ensenyament de la Generalitat de Catalunya publicava les Orientacions i programes: l’educació a la llar d’infants i al parvulari. Amb una resolució de 25 d’abril de 1990 començava l’escolarització dels infants de 3 anys (aula de P3) a l’escola pública.
Les ordres d’11 de maig i 1 de juny de 1983, i d’1 d’agost de 1984, també concretaven altres equipaments i dependències (lavabos, biberoneria, cuina, etc.) amb les que calia comptar en els centres d’atenció als infants de 0 a 6 anys. També regulaven que les zones exteriors d’escoles que acollien infants fins als 6 anys havien de tenir un mínim de 300 m2, i de 75 m2 si es tractava de centres que acullen infants de 0 a 2 anys. Amb posterioritat, el Decret 353/2000 del Departament d’Ensenyament de la Generalitat catalana rebaixava encara més els espais d’alguns serveis d’atenció als infants: 1,5 m2/infant i una superfície mínima de 20 m2/aula; un recinte d’esbarjo, del qual no es prescrivien dimensions mínimes i que es podia ubicar fora del recinte escolar, sempre que no calgués utilitzar transport per accedir-hi, etc. D’altra banda, no indicava tampoc dimensions mínimes d’altres zones, com per exemple, de la sala de canvi, de la qual deia que havia de tenir “espai suficient”.
Pel que fa a les condicions higienicosanitàries i de seguretat, encara vigents, es recomanava el següent:
- Que la llum preferent sigui la natural i que, en cas de tractar-se de llum artificial, sigui semidirecta i d’una intensitat entre 150 lux i 300 lux, i també que es prohibeixi utilitzar llum fluorescent a l’habitació dels nadons.
- Que els dormitoris estiguin aïllats acústicament (un màxim de 50 decibels);
- Que hi hagi mecanismes eficaços d’evacuació d’olors a la cuina, les sales de canvi, etc., i també un sistema de ventilació permanent i regulable a tot arreu;.
- Que el sistema de calefacció sigui regulable, amb una temperatura interior entre 18 °C i 21 °C, que es disposi de termòmetre de paret a la sala dels lactants i s’instal·li un limitador de temperatura (fixat en 45 °C) a totes les aixetes d’aigua.
- Que es respecti una zona de seguretat fins a 1,20 metres d’alçària (sense vidres grans que no siguin de seguretat, ni sortints cantelluts o desnivells perillosos, o qualsevol altre agent traumatitzant, o tòxic, o càustic), que augmenta fins a 1,60 metres pel que fa a tots els mecanismes elèctrics.
- Que hi hagi protecció antipinçadits a tots els angles de les portes, i també tanques de seguretat a les finestres, les portes exteriors, etc.
El Reial decret 1004/1991...
… de 14 de juny, actualment derogat, va ser una normativa estatal per la qual s’establien els requisits mínims dels centres que impartien ensenyaments de règim general no universitaris. Va desplegar el que preveia la LODE (Llei orgànica del dret a l’educació de 1985) i la LOGSE (Llei orgànica d’ordenament general del sistema educatiu de 1990) sobre els requisits referits a la titulació acadèmica del professorat, la ràtio alumnes/professor, les instal·lacions docents i esportives, o el nombre i les característiques dels espais escolars.
Reial decret 132/2010, de 12 de febrer
És una normativa estatal per la qual s’estableixen els requisits mínims dels centres que imparteixen els ensenyaments de segon cicle de l’educació infantil, l’educació primària i l’educació secundària obligatòria, que desplega el que preveu la LOE (Llei orgànica d’educació de 2006). Els requisits mínims es refereixen a la titulació acadèmica del professorat, la relació numèrica alumne-professor, les instal·lacions docents i esportives i el nombre de llocs escolars. Com que la Llei orgànica 2/2006, de 3 de maig, d’educació (LOE) inclou novetats en la distribució de competències normatives en el primer cicle d’educació infantil (que passa a ser regulada per les administracions autonòmiques), aquest reial decret estableix els requisits mínims que han de complir els centres docents que imparteixin els ensenyaments d’educació infantil de segon cicle (parvulari).
En l’article 3 aquest reial decret estableix que aquests centres docents han de ser en edificis independents, destinats exclusivament a ús escolar, si bé les instal·lacions poden ser utilitzades fora de l’horari escolar per a fer altres activitats amb caràcter educatiu, cultural o esportiu, i que, en el cas de centres docents que imparteixin el segon cicle d’educació infantil, han de tenir, a més, accés independent de la resta d’instal·lacions. També cal que reuneixin les condicions de seguretat estructural, de seguretat en cas d’incendi, de seguretat d’utilització, de salubritat, de protecció contra el soroll, d’estalvi d’energia i de protecció laboral que assenyala la legislació vigent.
També s’indica que els espais on es porti a terme la pràctica docent han de tenir ventilació i il·luminació natural i directa des de l’exterior, i que s’ha de disposar de les condicions d’accessibilitat i supressió de barreres exigides per la legislació relativa a les condicions bàsiques d’accessibilitat universal i no-discriminació de persones amb discapacitat, sense perjudici dels ajustos raonables que s’hagin d’adoptar.
En el títol II tracta dels centres d’educació infantil (de l’article 5 al 8) i alguns dels aspectes que regula són els següents: les condicions generals (en l’article 5 diu que poden impartir el primer cicle, el segon cicle o tots dos i que els de primer cicle es regulen per les normatives de les administracions competents, en el nostre cas, la Generalitat de Catalunya); les instal·lacions i condicions materials dels centres que ofereixen el segon cicle de l’educació infantil (article 6); també la relació d’alumnes per unitat (article 7) i els requisits de titulació dels professionals que atenen l’educació infantil (article 8).
Pel que fa als espais dels centres d’educació infantil de segon cicle, el Reial decret 132/2010 prescriu el que veiem en la taula.
| Espais | Centres d’educació infantil de segon cicle (parvularis) |
|---|---|
| Aules | Com a mínim 3 aules, de superfície adequada, amb un mínim de 2 m2/infant |
| Sala polivalent | 1, de 30 m2 |
| Pati de jocs | 1, d’un mínim de 150 m2 per cada 6 unitats o fracció, amb superfície adequada al nombre de llocs escolars autoritzats, d’ús exclusiu del centre i amb un horari d’utilització diferenciat en cas que s’escolaritzin alumnes d’altres etapes educatives. |
Pel que fa a les instal·lacions mínimes comunes que han de tenir tots els centres d’educació infantil de segon cicle i primària, i d’educació secundària, són les que es recullen en la següent taula.
| Espais | Centres d’educació infantil de segon cicle (parvularis) |
|---|---|
| Espai de reunions | Apropiat per a les reunions de l’AMPA. |
| Espai de suport | Els necessaris per a impartir els suports a l’alumnat amb necessitats específiques de suport educatiu. |
| Lavabos i serveis higienicosanitaris | Els adequats al nombre de llocs escolars, a les necessitats de l’alumnat i del personal educatiu del centre, i també lavabos i serveis higienicosanitaris adaptats per a persones amb discapacitat en el nombre, la proporció i les condicions d’ús funcional que estableix la legislació aplicable en matèria d’accessibilitat. |
| Despatxos | N’hi ha d’haver de direcció i d’activitats de coordinació i orientació. |
| Secretaria | Espais destinats a l’administració. |
| Sala de professors | 1, adequada al nombre de llocs escolars. |
Una normativa que encara concreta menys alguns aspectes que la anterior, de 1991, com és el nombre mínim de lavabos i inodors, o el fet de tenir lavabos diferenciats i equipaments mínims complets per al professorat.
Decret 282/2006, de 4 de juliol
És una normativa autonòmica per la qual s’estableixen els requisits mínims dels centres de primer cicle d’educació infantil de Catalunya. Aquest decret regula els requisits mínims quant al nombre i la qualificació dels professionals que hi participen, i quant als espais i a les instal·lacions on es produeix l’acció educativa, el nombre màxim d’infants per unitat, el procediment d’autorització administrativa d’aquests centres, la participació de la comunitat educativa i també la possibilitat de delegar determinades competències als ajuntaments.
En l’article 13 aquest decret estableix que els espais i les instal·lacions de la llar d’infants, tancats o a l’aire lliure, no es poden utilitzar per a activitats diferents de les pròpies de l’atenció als infants de zero a tres anys, llevat de les directament relacionades amb les famílies dels infants escolaritzats a la llar d’infants, i que han de disposar d’accés independent des d’un espai públic. Els seus locals i instal·lacions han de complir la normativa vigent en matèria de seguretat, higiene, sanitat, habitabilitat, accessibilitat i supressió de barreres arquitectòniques, i també altres condicions en matèria d’edificació, tenint en compte l’edat dels infants als quals va destinat el servei, i el seu titular està obligat a facilitar l’accés als espais i a les instal·lacions al personal de les administracions competents en matèria d’inspecció i de control dels aspectes esmentats.
S’introdueix la figura de la “llar d’infants rural”, amb les seves instal·lacions distribuïdes en diferents municipis o en diferents poblacions d’un municipi o de més d’un i s’atorga un termini aproximat de quatre anys als centres autoritzats a l’empara de normatives anteriors per a reunir els requisits mínims.
Pel que fa als requisits dels espais i les instal·lacions dels centres d’educació infantil de primer cicle, el Decret 282/2006 prescriu el que veiem en la taula.
El Decret 282/2006 regula, quan una llar d’infants és en localitats o nuclis aïllats de població que no ultrapassen els 2.500 habitants, que la superfície mínima de les aules ha de ser de 20 metres quadrats, i la del pati, de 50 metres quadrats, i que s’han de mantenir els 2 metres quadrats per infant. En aquests casos no és exigible disposar d’una sala per a cadascun dels trams d’edat, ni la sala addicional i diferenciada per a usos múltiples quan la llar d’infants és d’1 grup o de 2.
Quan el primer cicle de l’educació infantil s’imparteix en un centre que també imparteix el segon cicle de l’educació infantil, els requeriments d’espais i instal·lacions són els esmentats més amunt, i també s’han de complir els requisits d’espais exigits per a autoritzar el segon cicle.
| Espais | Centres d’educació infantil de primer cicle (escoles bressol o llars d’infants) |
|---|---|
| Sales | Com a mínim 3 sales, una per cada tram d’edat (n’hi poden haver només 2 si un mateix titular té més d’una llar d’infants en el mateix municipi, amb un mínim de 30 m2 per aula i amb un mínim de 2 m2/infant. |
| Sales destinades a infants de 2 anys | Han de tenir un servei que sigui visible i directament accessible des de la sala i que disposi, com a mínim, de dos lavabos i dos inodors. |
| Sales destinades a menors de 2 anys | Han de tenir àrees diferenciades per a facilitar la higiene i el descans dels infants. |
| Sala d’usos múltiples | 1, de 30 m2 com a mínim, addicional i diferenciada. |
| Sala de preparació d’aliments o cuina | Diferenciada i suficient. |
| Pati d’esbarjo a l’aire lliure | 1, d’un mínim de 75 m2, amb una superfície mínima de 2 m2 per cada infant en utilització simultània. |
| Despatx | Diferenciat, amb un mínim de 10 m2 per a les tasques d’administració i per a les de coordinació docent. A les llars d’infants de 7 unitats o més hi ha d’haver dos espais diferenciats. |
| Cambra higiènica del personal que atén els infants | Ha de disposar, com a mínim, d’un lavabo, un inodor i una dutxa, ha d’estar separada i ha de ser independent dels espais i serveis utilitzats pels infants. |
L'organització de l'espai educatiu
L’espai i la seva organització, com ja heu vist, no són neutres. Quan entrem en una escola o en una aula podem analitzar moltes de les característiques de com s’entén l’educació infantil, l’infant, el paper de l’educador, etc.
El disseny i la planificació dels espais són un element més de la planificació educativa, i formen part del projecte educatiu i del projecte curricular de l’escola.
Segons el fullet informatiu...
… de l’Institut d’Educació de Barcelona, “Els espais de l’escola bressol […] estan preparats amb intencionalitat educativa, amb l’objectiu que els infants puguin desenvolupar les seves capacitats físiques, intel·lectuals, afectives i socials. La distribució dels espais, tant interiors com a l’aire lliure, estan pensats per generar un entorn físic segur i acollidor, i una atmosfera càlida i alegre. A cada espai hi correspon una funció determinada: zones d’activitat i de repòs, zones de pas i de trobada, zones per a infants i per a persones adultes”.
L’escola és una globalitat: tots els espais són educatius, promouen valors i afavoreixen els aprenentatges, i per això cal dissenyar-los i planificar-los amb molta cura.
Els entorns físics han d’afavorir el desenvolupament integral dels nens i les nenes i respondre a les seves necessitats fisiològiques, afectives, de moviment, d’autonomia, de socialització, de descoberta, d’exploració, etc., amb els elements següents:
- Zones adequades per al canvi, la higiene personal, l’àpat i el descans, netes, còmodes, agradables però també segures.
- Punts de referència físics i humans que aportin seguretat i estabilitat; racons íntims i còmodes que afavoreixin el contacte individual nen/adult; espais ordenats, acollidors i agradables.
- Espais lliures i amplis que permetin i estimulin les activitats motores, tant a l’exterior com a l’interior, dotats d’equipaments específics (estructures de joc, rampes, matalassos, enfiladores, etc.); espais on pugui actuar lliurement, zones i materials accessibles, sense barreres, amb oportunitats de reinventar els espais o construir-ne de nous.
- Espais per amagar-se, espais per grups petits i per a tot el grup.
- I una gran riquesa d’estímuls a l’ambient.
La manera d’organitzar el centre −i molt especialment l’espai i els materials− i el temps ha d’ajudar a establir un clima de seguretat i confiança mitjançant l’estabilitat de les relacions, dels espais i dels horaris. S’ha de garantir un equilibri entre la continuïtat i la varietat de les relacions, i considerar la necessitat d’intimitat dels infants, de seguretat emocional i d’estabilitat. La distribució de l’espai ha d’afavorir el desenvolupament harmònic dels infants, i afavorir la seva autonomia.
“L’organització de l’espai ha d’afavorir l’activitat experimental i exploratòria sense que això impliqui afavorir la dispersió. Ha d’afavorir també l’autonomia tant si ens referim a l’autonomia personal com a l’autonomia intel·lectual, i això s’assoleix organitzant punts clars de referència per tal que el nen i la nena s’orientin amb facilitat. […] ha d’afavorir la capacitat imaginativa per tal que els alumnes puguin intervenir de manera creativa en els possibles canvis en la distribució material de l’aula, per aconseguir millors resultats o afavorir un cert tipus d’activitats.”
M. A. Pujol (1992). “Organización y estrategias educativas”. A: T. Lleixà (coord.) (1992). La educación infantil 0-6 años (vol. III, pàg. 58). Barcelona: Paidotribo.
Com condiciona la nostra organització de l’espai el fet de posar com a punt de partida les necessitats dels infants? Vegeu la taula.
També cal que la planificació dels espais s’adapti a les necessitats dels adults: s’han de sentir a gust i tenir els seus espais propis, han de poder disposar de dependències pròpies i equipaments adequats a les seves necessitats, ergonòmics, que previnguin d’alguns riscos i patologies professionals (figura, figura i figura).

| Necessitats infantils | Aspectes organitzatius |
|---|---|
| Necessitats afectives Cal que els infants se sentin escoltats, estimats, en confiança. Poder estimar, comunicar, sentir emocions positives: estabilitat i seguretat, estar content, poder riure, viure feliç, sentir el món com a bo, poder resoldre les incomoditats i les frustracions, etc. | Punts de referència que donin estabilitat i seguretat afectiva. Espais que permetin el contacte individualitzat infant-adult, que siguin íntims i còmodes per a tots dos; ordre, acolliment, atmosfera agradable, etc. Seguretat material i física. Tracte individualitzat i una comunicació adequada amb les famílies. Centre petit, que li permeti conèixer tots els adults i infants de l’escola. |
| Necessitats fisiològiques Higiene, alimentació, son, seguretat física, aire, llum, sol, descans (regular i profund), protecció contra els perills, temperatura adequada, etc. | Hi ha d’haver zones adequades per al canvi i la higiene personal, per al menjar, per al descans. Han de ser espais nets, còmodes, agradables, sense riscos. Cal aprofitar totes les ocasions per sortir a l’exterior (i fer jocs amb sorra, amb aigua, etc.); i ventilar els espais interiors diverses vegades al dia. Alimentació adequada i equilibrada segons l’edat, l’època de l’any, etc. Seguretat material i física en l’espai i el temps, en els materials, les persones, etc. Hi ha d’haver calma ambiental (amb un nivell molt baix de sorolls i de moviment de persones al seu voltant); una temperatura adequada en l’ambient i vestit adequat. |
| Necessitat d’autonomia Créixer, fer les coses ells sols; superar la contradicció entre la necessitat de progrés i la por de la novetat i del canvi. | Espais on pugui fer activitats lliurement (l’organització en racons, per exemple, ho afavoreix); i llibertat d’acció i de moviment. Espais sense barreres arquitectòniques, i amb materials accessibles. Espais que es puguin inventar. |
| Necessitat de moviment Poder-se desplaçar en horitzontal, arrossegar-se i gatejar, posar-se dret, caminar d’una manera independent, poder córrer, enfilar-se, amagar-se, pujar, baixar, arrossegar i traslladar objectes, i exercitar constantment aquests aprenentatges. Com més petits són els infants més canvien d’activitat cada poc temps, i més es mouen. | Espais amplis, lliures d’objectes, que estimulin el moviment, amb mobiliari i equipament específics (rampes, trepadores, màrfegues, etc.). Es poden utilitzar els grans espais de manera rotatòria entre els diferents grups al llarg de la jornada, i sortir sempre que es pugui a fora. Dins l’aula hi ha d’haver prou espai per bellugar-se (per tant, poques cadires!), i una organització i un disseny adequats de l’espai, els equipaments i els materials; i facilitar l’accés als materials. Suprimir mobles i objectes que no siguin realment funcionals (de vegades es poden anar traient i posant diferents materials); fer polivalents certs mobles o racons (per exemple, un banc bagul del racó de biblioteca, on alhora guardem les disfresses). |
| Necessitat d’activitat De joc, que és el que ens permet conèixer, pensar, tenir habilitats mentals i manuals, etc. | Espais i materials de joc apropiats i variats. |
| Necessitat de socialització Necessitat de convivència, de relació amb altres persones, adults i infants, sobretot de la seva edat. Necessiten saber com es fa i com es resolen les dificultats que hi apareixen. | Espais on es pugui trobar amb els altres i espais on es pugui estar sol (els nens busquen i creen aquests espais −cabanes, sota una taula−, i nosaltres els podem afavorir); cal combinar espais individuals i espais de grup, espais per aïllar-se i espais per compartir. |
| Necessitats de descoberta, d’exploració, de coneixement Els infants necessiten explorar, descobrir, conèixer el món i a ells mateixos. Senten curiositat per tot. | Entorns que ho permetin, amb plantes, animals, objectes variats, materials naturals. Espais per al joc simbòlic (caseta, botiga, disfresses, garatge, etc.). |

La funció d’organització dels espais i dels temps és una de les més importants en la tasca diària de l’educadora.
Organització de l'espai i organització del temps
Pel que fa al temps, cal establir unes rutines diàries i la seva seqüenciació: joc, menjar, son, etc. Cadascuna s’associa a determinats espais (anem al menjador o a la taula de menjar dins de la classe, és l’hora de dinar, etc.). Els espais ajuden a marcar i a visualitzar el ritme i la successió dels fets quotidians. Hi ha també espais que afavoreixen anar lent o anar estressat (bruts, sorollosos, desendreçats, etc.). Els espais i els temps han d’estar estructurats, però han de ser flexibles.
Podeu veure la qüestió de l’organització de l’espai i el temps per a l’educador en l’apartat “L’educador infantil” de la unitat “Planificació dels espais, el temps i els recursos en educació infantil”.
“Organitzar l’espai de la classe o la sala de jocs del grup, i també els espais comuns de l’escola: pensant en els recursos que ofereixen, les possibles utilitzacions que es poden fer, els elements que es poden instal·lar […] també s’hauria de fer l’anàlisi dels recursos que pot oferir l’entorn: els pares i les mares, el barri, el medi natural i social proper a l’escola i les vivències dels nens i nenes […] organitzar l’ambient comporta tenir presents no sols els aspectes físics (distribució, ordre, estètica, per a infants i grans) sinó també els relacionals, i crear un clima d’afecte, tranquil i alegre […] també s’han d’organitzar els materials tenint present que siguin adequats i variats, que estiguin a l’abast dels infants i que propiciïn el joc i l’aprenentatge.”
L. Martín (1998). “Ser mestres dels més petits”. In-fàn-cia (núm. 103, pàg. 19).
Els infants petits necessiten espais diversificats per jugar, descansar, conviure, menjar, etc., que mai no han de ser inferiors en quantitat als dels infants més grans. Tant els espais interiors com els exteriors han d’oferir propostes d’acció i de desvetllament de la curiositat dels infants, han de ser austers (rics en estímuls però dissenyats de manera simple i senzilla) i acollidors alhora, i han de permetre que els infants i els adults (educadors, famílies) trobin allò que necessiten. Cal que els espais escolars siguin habitables, que continguin diferents escenaris de joc i promoguin situacions per tal que els infants puguin jugar. Si l’organització de l’espai i els materials és l’adequada, s’afavoreix la relació entre l’educador i els infants i es fa possible treballar amb la idea d’infant competent, escoltar-lo, permetre-li fer, descubrir i experimentar.
Com més petits són els infants més espai necessiten. El millor és garantir el màxim d’espai per a l’infant i fer escoles molt petites. Una paradoxa? No, una necessitat!
M. A. Zabalza (1996, pàg. 125-128) esmenta els criteris que hem de tenir en compte a l’hora d’organitzar l’espai. Són els següents:
- Que afavoreixin l’autonomia (han de permetre els desplaçaments, l’activitat física, la relació amb els objectes i amb les altres persones, etc.). Cal també solucionar les necessitats de seguretat física i afectiva: s’han de poder usar les coses i moure’s pels espais sense perills (de cops, d’intoxicacions, de fer mal als altres, etc.), i crear un clima de seguretat i afecte. Aquestes són les condicions per crear un ambient ric, segur i tranquil·litzador (va bé permetre que els pares també estiguin en aquest espai algunes estonetes, i que l’educador estigui disponible per atendre les sol·licituds individuals, etc.).
- Que permetin combinar activitats individuals (desig d’estar sol, enrabiades, jocs egocèntrics, etc.) amb les col·lectives; per a això, cal sectoritzar les zones i crear microambients on un nen es pugui refugiar, etc.
- Que siguin rics en quantitat i varietat d’estímuls, per afavorir la descoberta i l’experimentació dels infants. L’ambient ha de generar constantment reptes per fer, mirar, tocar. Per aconseguir-ho, cal el següent:
- Que hi hagi riquesa en la varietat d’instruments i objectes, arquitectònica, i estètica (entesa com a estímul, reclam, referència per al desenvolupament cognitiu i artístic).
- Que en els materials i l’organització de l’aula hi hagi estímuls motors, sensorials, afectius; coses per fer sol i amb d’altres.
- Que es permeti tenir iniciatives pròpies als infants, mitjançant experiències sensoriomotors; i que els espais siguin amplis (les dimensions alçada i llargària són les que tenim més en compte els adults, que ens oblidem de l’amplada, que els nens usen molt, per exemple quan es tiren pel terra, etc.).
- Que l’entorn afavoreixi que els nens siguin feliços perquè experimentin i es relacionin bé, que els nens puguin triar a què juguen i amb qui juguen.
- Oferir un entorn segur als nens, amb normes clares, intentant posar límits.
“Una escola infantil és com una gran incubadora, un lloc on treballar, aprendre, jugar, dormir, fer activitats culturals, experimentar i cometre errors. És un entorn sempre canviant on el disseny, els mobles, els sistemes i les superfícies de separació han de permetre diferents activitats a diferents hores del dia però en el mateix lloc […] d’acord amb les decisions dels infants i els seus mestres […] El que es necessita és, per tant, entorns genèrics que puguin convertir-se en llocs diferents per activitats diverses”.
M. Zini (2005). “Veure, sentir, tocar, tastar, olorar i estimar”. Infància a Eu-ro-pa (núm. 05.8, pàg. 24).
Segons Zini (2005), és important l’ús del color, la llum, el so i l’olor en el disseny dels espais i per això també ho és la riquesa sensorial dels materials:
- Els materials han de ser rics i variats, crear un entorn multisensorial amb superfícies suaus i aspres, seques i mullades, opaques, brillants, translúcides i transparents; amb materials que envelleixen amb el temps, com la fusta, la roba o les flors, i d’altres que es mantenen sempre igual, com l’acer o el vidre.
- Cal usar un ventall cromàtic amb moltes ombres, un ventall subtil (amb més colors que els primaris, colors semblants, to sobre to; i colors que contrastin els uns amb els altres, tenint cura de reduir la seva intensitat quan hi hagi colors complementaris un al costa de l’altre).
- Cal que hi hagi varietat de fonts pel que fa a la il·luminació (incandescents, halògenes, fluorescents), i la llum ha de poder crear ombres (per a això cal usar llums incandescents), hi ha d’haver llum concentrada i difusa, i diferents temperatures de color: blanc càlid, blanc fresc, blanc rosat. Els treballadors i els infants haurien de poder variar la seva intensitat i tenir llums que creïn diferents ombres de colors afegint el vermell, el blau i el verd a la llum estàndard.
- Cal una planificació en la qual es coordinin l’arquitectura, els sistemes de disseny i el mobiliari, per tal de crear una escola que, en paraules de Zini, “doni suport a la imatge d’un infant content i competent”.
-

- Es poden usar una gran varietat de materials per crear un entorn multisensorial. Aula de P3 de l'escola Parc del Guinardó, Barcelona.
La grandària, l’estètica (defugint d’alguns estils decoratius infantilitzadors), la lluminositat, la distribució, les formes, els colors i la decoració de l’escola són aspectes importants, i també la distribució adequada del mobiliari i altres equipaments, ja que ofereixen possibilitats d’expressió als infants. Procurarem que sigui un ambient similar al d’una llar, acollidor i harmònic (materials naturals, colors suaus, etc.) i evitarem que els espais siguin impersonals, freds, uniformes i sense personalitat pròpia.
En la decoració cal que hi hagi també espais blancs, sense estímuls (per evitar la sobrecàrrega d’estímuls visuals, però també auditius, olfactius, etc.), i un bon nivell pel que fa a l’ordre, la seguretat, el manteniment, la higiene i la conservació.
El disseny escolar més avançat integra la llibertat i l’espai que ofereix la natura en la planificació dels espais interiors (espais amb llums i ombres contrastades, espai buit que els infants poden omplir, caos i ordre).
“Però els espais amb quatre parets, com les aules de moltes de les nostres escoles, no són el que necessitem. Per què els infants busquen sempre allò que està desordenat o incomplet, els espais per construir? Els espais que ofereixen als infants la possibilitat de reordenar-los, de completar-los o de tirar-los a terra, com castells de sorra a la platja, ofereixen espai al seu cervell per créixer i madurar.”
M. Bergstrom; P. Ikonen (2005). “Espai per jugar, espai per créixer”. Infància Eu-ro-pa (núm. 05.8, pàg. 15).
Pel que fa a la seguretat...
… s’han de complir les normatives i disposar d’un pla d’evacuació de l’edifici, i que les instal·lacions i equipaments siguin segurs per als infants.
Arquitectes i pedagogs consideren que els elements arquitectònics estructurals haurien de ser flexibles i respondre a les noves necessitats de distribució dels espais sense canviar la seva estructura, ser fàcils de transformar i canviar i ser comunicables entre ells. Si estan fets per mòduls, es poden ampliar. Les instal·lacions i portes mòbils, els canvis d’il·luminació, la ventilació, la il·luminació, la utilització d’espais buits, etc. poden ajudar a convertir els espais i permetre que els espais siguin multifuncionals.
Organització de la neteja
Calen recursos suficients i una organització que permeti mantenir un nivell adequat de neteja durant la jornada sense interferir en les activitats, i sempre que es necessiti (per exemple, quan hi ha tallers, accidents, després dels dinars, etc.).
L'opinió de les famílies...
… també hauria de tenir-hi cabuda: segons el que diu la Xarxa Europea d’Atenció a la Infància en l’objectiu de qualitat número 31, “La planificació de l’entorn i la seva organització espacial, incloent-hi el disseny dels edificis, els mobles i l’equipament, haurien de reflectir la línia educativa del servei i prendre en consideració l’opinió de les famílies, el personal i altres persones interessades”.

Els infants també poden participar en el disseny dels espais de l’escola. Vegeu-ne alguns exemples:
- La participació dels infants en la distribució de l’espai de l’aula i els equipaments es fa al parvulari o escola infantil Giacosa, de Milà: quan arriben el primer dia es troben amb un espai obert, buit i treballen amb els adults equipant-lo i decorant-lo.
- A l’escola d’educació infantil i primària Parc del Guinardó de Barcelona, dins el seu projecte d’Agenda 21, els infants reinventen els espais i materials de joc: a què juguem?, amb què?, què necessitem?
- La investigadora anglesa Alison Clark utilitza el mètode mosaic (que cerca construir una imatge de la vida quotidiana dels infants des de la seva perspectiva, usant una sèrie d’eines visuals i verbals, que inclou l’observació i les entrevistes, les fotografies i la construcció de mapes), i va fer l’estudi Espais per jugar durant els anys 2003-2004, en el qual van participar vint-i-vuit infants de 3 i 4 anys. Van analitzar, mostrar, documentar els espais, i els van categoritzar en quatre tipus:
- Espais que cal canviar (per exemple, la reixa de seguretat al voltant del pati).
- Espais que cal fer més grans (per exemple, la casa de jocs de l’exterior).
- Espais que cal afegir (per exemple, un sorral exterior).
- Espais que cal mantenir (per exemple, un túnel excavat per amagar-s’hi).
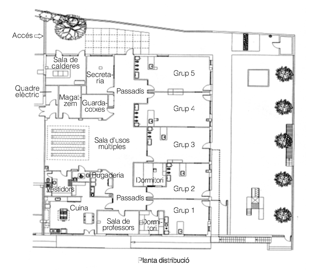
Els espais interiors de l'escola infantil
Ja hem tractat d’alguns criteris que incideixen en la construcció i disseny dels edificis escolars, i hem destacat la importància d’una organització adequada de l’espai. La vida a l’escola bressol o al parvulari té lloc en uns espais concrets, tant interiors com exteriors. Cada grup té el seu espai (sala, aula o estança bàsica), on els infants i els educadors passen la major part del temps, cosa que els dóna seguretat i fa que l’identifiquin com a propi (per això té unes característiques pròpies: els espais no han de ser tots iguals), com també fan amb els espais comuns de l’escola, que associen també a les experiències personals i a la presència de persones properes. Altres zones, com la cuina rebost, el despatx, la bugaderia, la sala del personal o el magatzem, a les quals tenen accés els nens vigilats per l’adult, també s’entenen com a espais educatius.
-

- Què veig? Les transparències i obertures dibuixen espais de comunicació (EBM L'Arboç, Barcelona).
Tots els espais de l’escola ofereixen oportunitats per assolir les condicions que faciliten la interacció de l’infant amb les altres persones i amb els objectes.
Com a context comunicatiu, l’escola ha d’organitzar els espais de manera que s’afavoreixi el contacte i la interacció entre els diferents grups d’infants i els adults de l’escola. L’entorn físic més adequat per afavorir-ho té a veure amb l’estructura circular de les dependències, i amb el màxim de superfícies transparents, envidrades, i de punts d’obertura i comunicació dels espais.
L'edifici i les dependències de l'escola infantil
Els edificis més freqüents a Catalunya corresponen als centres de 0 a 3 anys (llar d’infants o escoles bressol o maternals) i als centres de 3 a 12 anys (escoles d’educació infantil i primària), encara que també hi podeu trobar alguns centres d’educació infantil de 0 a 6 anys (llar d’infants i parvulari) i parvularis (centres de 3 a 6 anys). A més, també hi pot haver centres de 0 a 12 anys (n’hi ha molt pocs, de públics), espais familiars (municipals, de 0 a 3 anys)i altres serveis d’atenció a la petita infància i ZER (xarxa pública, formada per diverses escoles rurals d’una comarca).
A més de les característiques com: sense barreres, ben orientat, amb un disseny i una selecció de materials acurats, etc., el millor és que es tracti d’un edifici d’ús exclusiu, d’una única planta, proper al veïnat però independent, amb accés independent des de l’exterior, d’estructura circular o radial, amb espais de grup o aules ubicats entorn d’espais comuns per facilitar la interacció, amb zones exteriors àmplies a l’aire lliure (enteses com una prolongació dels espais interiors, amb accés directe des de les diverses estances), amb espais descompartimentats (portes, finestres, etc.) integrant nous entorns i relacions (mitjançant la seva transparència); amb una planificació de les zones de pas, idònies per a les activitats de moviment, d’exposició d’informacions, etc.; amb accessos segurs i un espai d’entrada acollidor i còmode.
Cal que els centres...
… siguin a prop d’on viuen els infants (així s’eviten els desplaçaments), estiguin vinculats als municipis, districtes o barris, i siguin a prop d’altres equipaments.
No hi ha un model ideal d’escola, però cal que els espais tinguin personalitat pròpia, tant si són comuns com de cada grup, i un ús flexible, afavorit pels taulers, les estructures mòbils, els mobles amb rodes, etc., que ens permeten transformar-los −tant si es tracta d’un passadís, de la sala d’usos múltiples (SUM), del menjador com d’una aula. Poder alternar espais i temps és enriquidor per als infants. Aquesta estructura permet que cada espai aula tingui accés directe als espais exteriors i als espais interiors comuns.

Hi ha països del nostre entorn que prescriuen el següent en les seves normatives:
- A Itàlia, a escala nacional, per al cicle de 3-6 anys, 6,67 m2/infant. Els estàndards per al cicle de 0 a 3 anys els fixen els governs regionals. En són dos exemples l’Emília Romanya, que fixa 8,5 m2/infant d’espai d’activitat i 3,5 m2/infant de serveis generals, o la Toscana, amb 6 m2/infant de 0 a 3 anys, més 4 m2/infant com a espai multifuncional de joc, descans i activitats.
- Als Països Baixos, 3,5 m2 d’espai de joc/infant i sala de dormir per a infants entre 0 i 1,5 anys.
- A Anglaterra, en tots els serveis preescolars excepte els parvularis municipals de les escoles, de 0 a 2 anys, 3,5 m2/infant; de 2 anys, 2,5 m2; de 3 a 7 anys, 2,3 m2. Per als parvularis municipals de les escoles, a partir de 2005, 2,1 m2/infant més 0,45 m2/infant d’espai per a recursos d’aprenentatge.
- Escòcia té unes xifres molt similars.
- A la comunitat francesa de Bèlgica, de 0 a 3 anys, 2 m2/infant al dormitori (màxim 6 infants); espai per a activitats: de 3,5 a 4 m2/infant.
Altres països només fan recomanacions, però no normatives, com per exemple les següents:
- La comunitat flamenca de Bèlgica: 5 m2/infant de 0 a 3 anys, i 4 m2 de 3 a 6 anys.
- Dinamarca: de 0 a 3 anys, 3 m2/infant, i de 3 a 6 anys, 2 m2. Hi ha alguns requeriments pel que fa a la ventilació, la cuina, l’oficina, el lavabo i la sala d’educadors.
- França: una àrea general d’activitats, de 3-4 m2 per infant; una àrea per dormir, d’1,5 m2 a 2 m2/infant; una àrea per a activitats en grups petits, d’1,5 m2 a 2 m2/infant; el 10-15% de l’espai total, per a les famílies; i del 8% al 12% de l’espai total per als treballadors.
- A Noruega es recomana 5,3 m2/infant de 0 a 3 anys, i més de 3-4 m2/infant de 3 a 6 anys.
Podeu repassar en el subapartat “Requisits normatius dels edificis escolars infantils” d’aquesta unitat les recomanacions de les superfícies dels espais interiors que fan els experts europeus (6 m2/infant de 0 a 2 anys i un mínim de 4 m2/infant de 3 a 6 anys, excloent-ne passadissos, magatzem i espais de pas; i 5 m2 addicionals d’espai per als adults), i també els requisits mínims de la normativa d’àmbit estatal i autonòmic.
El manteniment de l'escola
És molt important tenir en bon estat l’edifici i les seves dependències, els equipaments, els materials, etc., per assolir un bon estat de conservació general (de les parets, la pintura, els terres, els mobles, els equipaments, els materials…).
Entrada de l'escola
És necessari tenir doble porta d’accés a l’escola i, en el cas de l’escola bressol, resulta molt còmode disposar d’un espai cobert o porxo destinat a garatge de cotxets. El disseny del vestíbul o espai d’acollida a l’entrada de l’escola s’ha de cuidar molt, perquè és el primer contacte amb l’escola, és com una targeta de presentació. La importància d’aquests espais també té a veure amb el fet que són espais de transició per a l’infant, entre el món de casa i el món de l’escola. En aquest sentit, també és l’espai per on surt de l’escola.
L’espai d’acollida a l’entrada de l’escola ha d’estar moblat de manera que transmeti un caràcter familiar i acollidor, que convidi a la relació i on es puguin atendre adequadament les famílies. Pot disposar d’un sofà i una tauleta, d’elements decoratius i també d’una cambra amb lavabo i wàter. També té una missió informativa, amb taulers per exposar produccions dels infants, o documentació gràfica d’activitats de l’escola i altres missatges (avisos de reunions, full del menú, etc., distribució dels grups i presentació del personal, etc.). Pot tenir un racó per als pares (per xerrar, per esperar, per fer-hi trobades formals i informals, etc.), un racó amb plantes, peixos, etc.
-

- Els passadissos són també espais de comunicació. Zona de pas, EBM L'Arboç, Barcelona.
Cal documentar amb fotos i treballs allò que fem perquè “l’acció interpretativa que acompanya l’observació i la documentació resulta ser de summa importància no solament per als educadors i les educadores, pel que fa a projectar i viure amb els infants, sinó també per als pares […] pot afavorir el creixement i la qualitat dels processos participatius. […] Constitueix un instrument important també per als infants, els quals […] poden reconèixer-se a ells mateixos, reveure’s i reinterpretar-se […]. Viure un procés i veure’l reproduït (veient-se reproduït) en la documentació (per tant, en el pensament) d’un altre crea un distanciament important, que obre a la sorpresa, al dubte i al desig de comprendre i de comprendre’s millor.”
C. Rinaldi (2004). “Els pensaments que sustenten l’acció educativa”. A: M. Jubete. Espais i temps per al joc. Barcelona: Rosa Sensat.
Altres espais de circulació poden ser, a més, altres passadissos, escales, distribuïdors, etc. que tenen moltes possibilitats que no sempre s’aprofiten. Poden ser espais de moviment i espais de comunicació, amb documentació penjada i ben decorats, que comuniquin un estil de treball, una manera de fer (fotos, rètols, etc.), amb finalitats estètiques, comunicatives i acollidores. Per tant, la decoració aporta calidesa als espais i serveix també per explicar allò que fem a l’escola. En algunes construccions modernes s’eliminen al màxim aquests espais.
Espai comú central
L’espai comú central és un espai comunicat amb les aules grup, que s’ha d’organitzar amb l’objectiu de convidar el nen a l’activitat, i que també es pot utilitzar de vegades com un espai d’usos múltiples. Serveix per afavorir les interaccions entre nens i nenes de diferents grups, el desplaçament i les activitats motores, per organitzar festes o altres activitats. Fóra desitjable que es pogués delimitar l’espai en diferents zones i posar alguns equipaments de joc per a activitats tant reposades com mogudes, en funció de les seves dimensions.
Pot tenir una àrea per al moviment, amb tricicles, patinets, cordes, carretons, rampes, cotxets, tobogans, etc.; una zona més tranquil·la de repòs i intimitat (amb racons per amagar-se, un triangle emmirallat, racó de biblioteca, coixins, etc.); una zona de joc simbòlic (amb una caseta, o un cotxe, o un trenet, etc.); i una àrea de construccions (grans peces d’escuma). De vegades els nens s’hi reuneixen abans d’entrar a classe, o de fer les sortides a la tarda, i la seva estructura flexible ha de permetre transformar-lo en taller, sala de reunió, de conferències, teatre, exposicions, etc.
Aquests espais comuns són l’equivalent de l’espai públic d’un carrer, i es van transformant amb el temps, de la mateixa manera que l’espai urbà. Són per als infants i cal que permetin el joc i l’aventura.
Sala d'usos múltiples
La sala d’usos múltiples, amb un mínim de 30 m2, ens ha de permetre realitzar activitats que requereixen un espai ampli per treballar amb els infants d’una unitat, o per fer possible el treball amb grups encara més reduïts (tant d’expressió −plàstica, musical, dinàmica, corporal−, com psicomotors, audiovisuals, etc.).
S’ha d’equipar amb piques −per a adults i per a infants−, endolls, armaris per guardar els materials, televisió, vídeo, ordinador/s, aparell d’àudio, focus −per poder-la utilitzar com a sala de la llum i de les ombres−, cavallets per als infants, material psicomotor −cèrcols, pilotes, matalassos, cordes, rampes, espatlleres, barres, miralls−, d’expressió musical −instruments, etc.−, material d’expressió plàstica de tota mena, etc., cercant la màxima organització i funcionalitat a l’hora de permetre les diverses activitats (possibilitats de mobles multifuncionals i fàcilment plegats o penjats, prestatges i armaris suficients, etc.).
Encara que partim de l’estança bàsica o aula grup com a espai de referència i nucli de les activitats de cada grup d’infants −i, per tant, podem fer els àpats en aquest espai−, ens interessa també poder utilitzar aquesta sala d’usos múltiples com a menjador infantil quan s’escaigui, molt en especial amb els infants més grans de l’escola.
Menjador..., sí o no?
Es tracta de crear un ambient tranquil i agradable i per això cal evitar la massificació, el soroll, la tensió, etc. Aquesta és la raó per la qual en moltes escoles bressol i parvularis no es fa servir el menjador i es dina sempre a l’aula. Hi ha escoles on es creen menjadors petits, per a grups reduïts. Cal que el mobiliari sigui còmode per a l’infant, amb els adults a prop i a la mateixa alçada i amb la taula neta i parada, i tots els detalls: estovalles, tovallons, pitets, etc.
Cal disposar de prou tauletes per a un grup d’infants (millor semicirculars i acoblables) per tal de no envair l’espai. Es pot ambientar el racó del menjador amb fotos o imatges d’aliments, algun prestatge amb pots, un fruiter, etc.
Aquesta sala, com en el cas dels espais centrals, també ens permet disposar d’un recurs molt adequat per a organitzar activitats amb pares, xerrades o tertúlies, entre d’altres. O com un espai més de taller, o una aula específica d’expressió musical, plàstica o psicomotricitat, per exemple.
Hi ha algunes experiències d’aules compartides i especialitzades en l’àmbit de parvulari en les quals es fa servir la metodologia del treball per racons, com és el cas d’una escola de Vallecas (Madrid), el CP La Rioja, on cadascun dels sis grups de P4 i P5 (tres per cada nivell) té un horari per cada dia de la setmana en el qual es van alternant tres franges d’activitat de noranta minuts en cadascuna de les aules especialitzades: aula del cos, aula d’expressió plàstica i aula de llenguatge i lògica, on es combinen activitats lliures amb d’altres de més dirigides. Els mestres d’aquesta escola valoren, sobretot, l’ampliació dels espais de racons i una millor utilització dels recursos.
Sala dels educadors
-

- Cal equipar bé la sala de personal. Sala d'educadors de l'EBM Nenes i Nens, Barcelona.
La sala dels educadors ha de tenir espai suficient en relació amb el nombre d’adults, i és un lloc de reunió, descans i treball. També és un arxiu de material i biblioteca dels educadors (amb llibres i revistes especialitzades, programacions, produccions dels nens, reculls d’observacions, equipament informàtic, llibres i revistes especialitzades, arxiu de material audiovisual de l’escola); i un lloc per rebre les famílies o altres visites en cas necessari. Ha de tenir taulers informatius, elements decoratius, sofà o butaques de descans, taula/es i cadires, prestatges i armaris per guardar material, etc.
Espais de gestió
Els espais de gestió comprenen la secretaria, el despatx de la direcció o coordinació i la consergeria (si n’hi ha, als parvularis). Són espais que podem trobar aïllats o, de vegades, compartits. És on es desenvolupen les tasques d’administració i direcció del centre, on guardarem la informació, i també on es reben les visites. Cal que estigui equipat amb mobiliari adequat (taula, cadires, prestatges, armaris, fitxers, arxivadors, etc.), un tauler i equipaments informàtics.
Zona de serveis (sala de màquines, bugaderia, etc.) i magatzem
La sala de màquines s’ha d’ubicar a la zona de menys pas. En el cas de tenir bugaderia, aquesta pot disposar de rentadora industrial, planxa i armaris per a la roba. També és necessari un magatzem amb armaris i prestatges per guardar el material fungible que s’usa menys, el de reserva, de reciclatge o per reparar, ben classificat i retolat; i també el de neteja, i una pica per rentar les joguines o altres materials. Resulta molt còmode disposar d’un accés directe a aquesta zona des de l’exterior, per als subministraments. També es poden separar el magatzem de productes de neteja i el magatzem de material. En algunes escoles el magatzem fa també funcions de taller (amb un banc de fuster, eines, cola, pintures, etc.), on es construeixen, reparen i transformen els materials i elements de joc.
Vestidor i lavabos del personal
L’espai de vestidor i lavabos del personal ha de disposar d’espai suficient per a un lavabo, dutxa i wàter, tal com prescriu la normativa, però també per a armaris o taquilles individuals.
La farmaciola...
… es pot ubicar al magatzem de la zona de serveis o a la sala dels educadors, sempre fora de l’abast dels nens i nenes, a prop d’uns lavabos amb aigua, degudament tancada i a una alçada mínima d’1,20 metres.
Zona de cuina: cuina, menjador d'adults i rebost
L’espai pròpiament dit de la cuina, el menjador d’adults i el rebost s’integren en un mateix concepte, i la seva distribució i compartimentació ha de permetre que quedin comunicats. Són també un espai pedagògic i de relació. S’han de condicionar de manera que resultin agradables i acollidors, a més d’ordenats, nets i segurs.
Algunes de les condicions higienicosanitàries i de seguretat que ha de reunir la cuina són: tenir les parets enrajolades, un terra no porós ni esllavissant, una porta d’accés resistent al foc i amb molla de retorn, un equip de cuina suficient, refrigerador i congelador, rentaplats, marbres i superfícies de treball fàcilment rentables, prestatges del rebost de materials no porosos, rentables i situats, els més baixos, com a mínim, a 20 cm del terra.
Si l’escola ofereix servei de menjador, el fet de tenir cuina pròpia és el millor des del punt de vista sanitari, pedagògic, organitzatiu i econòmic, tal com considera la Xarxa Europea d’Atenció a la Infància, que ho considera com un objectiu de qualitat.
Objectiu núm. 33. Els serveis han de disposar de cuina, i han d’oferir aliments apropiats nutricionalment i culturalment.
Serveis per als infants: sales de canvi i "zones d'aigua"
Molts d’aquests espais de serveis, al igual que els dormitoris, es troben dins l’aula en educació infantil, sobretot en el primer cicle. Pel que fa a les normatives relacionades amb els serveis higiènics, a Catalunya, els espais per a infants de fins als 6 anys han de tenir àrees diferenciades per a la seva higiene.
En alguns països no hi ha regulacions nacionals, com a Escòcia o als Països Baixos (encara que aquí sí s’inspeccionen). A França no hi ha cap regulació legal ni recomanació. En canvi, en d’altres sí que està normativitzat (Dades extretes de la revista Infància a Eu-ro-pa, núm. 05.8, pàg. 7.):
- 1 lavabo/6 infants i una pica/4 infants a Bèlgica (comunitat flamenca).
- 1 lavabo i 1 pica per a cada 10 infants de més de 2 anys, i espais adequats per al canvi per als menors de 2 anys; i una pica fonda o dutxa per als infants de preescolar a Anglaterra i Gales.
- A Hongria, per a infants de menys de 3 anys: 2 lavabos i 2 piques a mida dels infants, i un bany amb dutxa mòbil per a cada 20 infants; i per a infants de 3 a 7 anys, un espai per a lavabo de com a mínim 15 m2.
- Ales regions italianes de l’Emília-Romanya, 1 lavabo/6 infants i una pica/4 infants, i a la Toscana, un espai de 8 m2 mínim amb lavabos i àrees de canvi per a cada grup de 8 a 20 infants.
- A Dinamarca, l’Agència per a les Empreses i la Construcció recomana 1 lavabo i 1 pica per a cada 15 infants, i el Consell Nacional de Salut recomana 2 lavabos i 2 piques per a cada 20 infants.
Dormitoris
És freqüent que es localitzin en una part de l’espai aula. El son requereix el seu espai i el seu clima d’afectivitat i de seguretat.
Aula grup o sala de joc o estança bàsica
L’aula grup, sala de joc o estança bàsica són espais de referència, continuació dels espais familiars en el cas dels més petits, on els infants passen la major part del temps i s’identifiquen amb més facilitat. El millor és que tinguin accés directe als espais exteriors (pati, jardí, etc.) i també als espais interiors comuns, i que permetin un bon accés als materials. Són espais que integren zones de joc, de canvi i serveis higiènics, dormitoris, àrea de menjador, etc., on es comparteixen activitats i rutines, es conviu amb altres infants i adults.
Podeu tractar més a fons dels espais exteriors i de l’organització de les aules en els subapartats “Els espais exteriors de l’escola infantil” i “L’organització dels espais aula a l’escola bressol i el parvulari”, d’aquest apartat.
Equipaments i mobiliari
Els equipaments i mobiliari són els elements complementaris de l’estructura bàsica de l’edifici i les seves dependències, i són imprescindibles per poder treballar. Els trobem a tot arreu i són prestatgeries, taules, taulells, taulers, armaris, taules de treball, pissarres, etc. Són molt variats i és molt important que l’escola bressol i el parvulari estiguin ben equipats. Mobiliari i materials són dos elements que l’educador pot avaluar i modificar per transformar l’espai segons les seves necessitats i objectius.
Els equipaments han de tenir les següents característiques: ser flexibles i adaptar-se a les necessitats educatives; no impedir la mobilitat dels infants; potenciar la integració i l’autonomia de tots els alumnes; adaptar-se a les necessitats de l’etapa i de l’àrea de treball; facilitar el tractament de la diversitat i afavorir la relació entre les persones, la comunicació i la relació entre l’escola i l’entorn.
J. Domènech; J. Viñas (1997). La organización del espacio y del tiempo en el centro educativo. Barcelona: Graó.
Cal que els equipaments i mobles siguin fàcils de transportar (lleugers, amb rodes), resistents, sense perills, estètics, de neteja fàcil; adequats a les edats pel que fa a la seva mida i pes. Les cadires i taules, adaptades a les mides dels infants i dels adults en cada cas, poden ser rectangulars, rodones, trapezoïdals, etc. i han de permetre un ús individual o conjunt.

-

- Mobles per jugar. Racó de l'aula de 2 anys, EBM El Vent, Barcelona
Les funcions principals del mobiliari són les següents:
- Transformar els ambients (paraments, mobles amb rodes, etc.): per fer canvis als espais moltes vegades el que fem és modificar el material didàctic i l’equipament.
- Crear espais (per exemple, una tarima que crea dos espais a alçades diferents, mampares, elements penjats del sostre, portes corredisses, prestatgeries que separen espais i es poden usar pels dos costats, etc.
- Establir vies de circulació o zones de pas dins els espais.
- Ser elements de joc (cadira contenidor; equipaments per als jocs motors o “estructures”: rampes, tobogans, etc.).
Els espais exteriors de l'escola infantil
Es tracta d’un recurs privilegiat, que ofereix als infants àmplies possibilitats d’intercanvis i experiències amb els altres nens i amb els adults, de contacte amb la natura i de joc amb materials naturals que no abunden en la vida dels infants de ciutat. I també grans oportunitats de moviment, d’observació de la natura, d’experimentació i manipulació amb l’aigua i amb la sorra, de joc simbòlic. Podem dur a terme força activitats (rítmiques, plàstiques, etc.), que es realitzen altres vegades a l’interior. I ens permet observar els canvis de la natura: les estacions, el temps i els fenòmens atmosfèrics, el creixement i la transformació de les plantes, etc.
En educació infantil és encara més important l’espai exterior que l’interior i cal que es pugui fer vida a l’aire lliure (jugar, fer la migdiada, menjar, escoltar un conte sota un arbre, etc.), malgrat que, tot i gaudir d’un clima com el que tenim, no aprofitem prou aquests espais educatius. Una situació, aquesta, molt allunyada del que passa en països més freds, com Noruega, on tenen una gran tradició a aprofitar la natura com a espai d’oci i font de llibertat.
Recordeu...
… alguns moments de la vostra infantesa, de quan anàveu a escola? Segur que us vénen al cap records dels patis i jardins on jugàveu, de les activitats de joc i d’aquells amics, germans o cosins amb els quals gaudíeu.
“Al kindergarten Hval Gaard, de Noruega, ens centrem en la natura i l’espai exterior. Els infants, de quatre i cinc anys, estan sempre a l’exterior, faci o no mal temps. A Noruega tenim una dita: «El mal temps no existeix, només hi ha roba inadequada”. Com a “campaments base” els infants tenen una espècie de cabana sense electricitat, però amb fogueres. També tenen una barca que poden usar per acostar-se a les petites illes del voltant, on no es pot arribar de cap altra manera. També tenim un parell d’autobusos petits que fem servir per dur els infants al camp, una mica més lluny que l’escola. Però l’espai natural més important per als infants se situa just en els petits boscs propers a l’escola, dels quals coneixen cada roca i cada arbre […].
[La natura] no té parets ni regulacions que ens tanquin en un espai clos, de manera que els infants no han de cridar ni lluitar per aconseguir una mica d’espai o d’atenció per part dels adults. A l’exterior, tampoc necessitem massa joguines. La natura ens ofereix quasi tot el que necessitem. Els infants experimenten i aprenen a utilitzar els arbres, l’aigua, les flors, la neu, el gel… Estimulen la seva curiositat. Observem que els infants aprenen que la cooperació amb els altres és vital, especialment per resoldre els diferents problemes o les tasques que se’ls encarreguen durant el dia. Els ensenyem a usar eines simples, com ara ganivets i serres, o com encendre un foc, per exemple. […] Els mostrem com usar els recursos naturals, […] què es pot menjar, com construir cabanes petites o com recollir llenya […] Els infants que passen tot el dia a l’exterior estan més sans.“
A. Farstad (2005). “La Natura: proveïdora d’espai”. Infància Eu-ro-pa (núm. 05.8, pàg. 16).
Cal que els espais exteriors s’integrin amb els interiors com uns espais de joc i treball més. El millor és que els espais aula comuniquin directament amb les zones exteriors, i que siguin abastables visualment per part de l’adult des de l’aula.
La Xarxa Europea d’Atenció a la Infància fixa com un objectiu de qualitat dels serveis el fet de disposar d’un mínim de 6 m2/infant, amb accés directe. I les prescripcions per a centres amb infants de menys de 6 anys a Catalunya són d’un mínim de 300 m2, d’ús exclusiu; i per a centres amb infants de menys de 2 anys, un mínim de 75 m2 d’espais exteriors d’ús exclusiu (el decret estatal espanyol prescriu un mínim de 75 m2 d’ús exclusiu, de 0 a 3 anys; i un mínim de 150 m2, d’ús exclusiu, en el cas dels parvularis).
Pel que fa a la normativa d'altres països...
… sobre els espais exteriors, hi ha països on no estan regulades les dimensions de les zones exteriors, com, per exemple, Bèlgica (ni a la comunitat flamenca ni a la francesa, encara que aquí sí que està previst que de 3 a 6 anys calen 75 m2 per un centre de 24 places, i 50 m2 per un centre de 48 places), Dinamarca (on abans es preveien 10 m2/infant), França i Escòcia.
En altres països es fan recomanacions: a Hongria, 10 m2infant de 0 a 7 anys, encara que de 0-3, a més, s’inclouen la superfície dels materials, la mena d’arbres i arbustos, i diferents àrees, incloent-hi el sorral, l’àrea d’escalada, la de jocs aquàtics i la de bicicletes.
A Itàlia, a escala nacional per al cicle 3-6 anys, es fixen 18 m2/infant. Els estàndards per al cicle de 0-3 anys els determinen els governs regionals. En són dos exemples l’Emília-Romanya, que fixa un mínim de 10 m2/infant, o la Toscana, que fixa com a mínim tants metres quadrats d’espais exteriors com metres quadrats hi hagi a l’interior.
Als Països Baixos: de 0 a 12 anys, 3 m2/infant; a Noruega es determinen uns espais sis vegades més grans que els interiors, amb escoles de natura vinculades. A l’altre extrem, a Anglaterra només es diu que han de ser segurs i tenir un bon manteniment; als parvularis municipals dins les escoles es recomanen 9 m2/infant.
A les escoles infantils és adequat tenir uns espais exteriors amplis, entre 400 m2 i 600 m2, amb accés directe des de les aules. Si no es disposa d’espai suficient, cal evitar que hi hagi massa infants alhora per no molestar-se i evitar situacions de conflicte. No s’hi ha d’anar només a l’hora del pati sinó sempre que es pugui, i per això cal dissenyar-lo amb la mateixa cura que els espais interiors. Hi passen almenys una hora cada dia, pel cap baix, i cal que estigui ben organitzat, planificat i equipat. En un principi cal que els petits no surtin amb els grans per agafar seguretat. Els educadors vigilen, observen, faciliten, dinamitzen els jocs, etc.
Cal un nombre adequat d’educadors: amb infants de 0-3 anys, solen vigilar els espais exteriors dos adults per cada tres grups; i amb els nens de parvulari, hi sol haver un adult per cada dos grups.

Cal que els materials i les instal·lacions de joc proposin situacions obertes, i que n’hi hagi prou per evitar baralles.
-

- Zona coberta als espais exteriors. EBM El Vent, Barcelona
L’adequada organització dels espais exteriors afavoreix el joc lliure i variat, la creativitat, el sentir-se lliure, i també el fet de poder integrar els espais naturals com a espais de joc. Cal que tingui zones més estructurades i d’altres de més lliures, amb una distribució que combini fer activitats més mogudes i activitats de descans i relaxació, amb zones de sol i d’ombra als diversos subespais, que estigui ben equipat, que reuneixi les condicions de seguretat i higiene adequades.
Pel que fa al terra, cal que n’hi hagi de superfícies toves i dures, en diferents plans, nivells i relleus (per facilitar les activitats motores), amb varietats de sòl −terra, gespa, pedra, ciment, cautxú, herba, rajola (amb figures geomètriques, com quadrats, triangles, taulers d’escacs, de la xarranca, etc.)−, i un predomini dels terres tous.
-

- En una zona àmplia de ciment o pedra podem fer jocs de moviment. Zones exteriors de l'EBM El Vent.
Algunes de les zones d’aquest espai exterior (caldria disposar, almenys, de quatre o cinc d’elles) poden ser les següents:
- Zona semicoberta per poder jugar i protegir-nos de la pluja o del sol, si fa molta calor (amb un porxo, tendals, etc.), o si volem més ombra. Pot tenir a prop un lloc per emmagatzemar els materials d’ús exterior (com galledes, tricicles, rasclets, pilotes, etc.).
- Zona àmplia, oberta, cimentada o d’un empedrat sense sortints, llis i resistent, per a la pràctica de jocs motors i en grup, per córrer i fer desplaçaments (on podríem pintar en algun sector un circuit vial, per exemple), amb patinets, tricicles, carretons, cotxets, pilotes, cèrcols, pneumàtics per fer rodar, laberints, patins al parvulari, etc.
- Zona amb estructures fixes de joc motor de ferro, plàstic, fusta o ciment (troncs, tobogans, balancins, trepadores, gronxadors, circuits, laberints, túnels, cordes per enfilar-se, etc.), multifuncionals i que compleixin la normativa (que determina que han de ser inestellables, atòxiques i d’una alçada no superior a 1,50 m).
- Zona per a la pràctica de jocs més tranquils i de fantasia, amb materials per afavorir el joc simbòlic (cabana, caseta, tren, cotxe, pont, vaixell −de fusta o de materials reciclats−, racó per amagar-se, animals de fusta per enfilar-se, etc.).
- Zona de sorra i aigua: un sorral és del tot imprescindible en l’etapa d’educació infantil, i cal que estigui ben situat, cobert i net; amb una pica i/o font o contenidor per jugar amb aigua a l’estiu, i elements de joc (pales, regadores, embuts, galledes, pots de cuina, llaunes, etc.).
- Zona d’hort i granja amb animals (sempre que no ho desaconsellin les autoritats sanitàries), imprescindible a les escoles urbanes.
- Zona verda i/o jardí (gespa, matolls, bosquet, plantes, etc.) com a zona específica, encara que en algunes de les altres zones també trobem espais verds i arbres.
- Espai per seure, amb bancs o un mur baix per seure, llegir o fer activitats de pintura, etc.
- Espais acotats per als nadons, en les escoles bressol.
-

- Estructures fixes de joc. EBM Montserrat
-

- També necessitem estructures per al joc simbòlic com cabanes o casetes. Caseta per jugar, EBM L'Arboç.
-

- Sorral de l'EBM Nenes i Nens, Barcelona
-

- Un petit bosc, un hort o jardí: necessitem espais verds! Escola Parc del Guinardó, Barcelona.

Tots els espais o zones han d’estar especialment cuidats i dissenyats per afavorir l’autonomia del nen, i els seus materials i equipaments (en els quals s’inverteix poc moltes vegades), han de ser resistents, segurs, homologats, nets i ben conservats, fàcils de mantenir, tant si són naturals (com els troncs dels arbres, per exemple) com reciclats (com els pneumàtics de cotxes o de camions per fer camins, canonades grans, etc.). Al parvulari s’utilitzen també equipaments esportius, com porteries de futbol o una cistella de bàsquet, per exemple. Altres elements poden ser una tarima a mode d’escenari, un teatret de titelles, estacades del tipus de l’Oest Llunyà (Far West), o fins i tot una bassa o qualsevol altre element natural del paisatge que es pugui integrar a l’espai exterior de l’escola.
També s’integra l’entorn més proper (natural, social) a la planificació dels espais exteriors, amb espais externs al centre, amb la programació de sortides, visites, excursions, o projectes conjunts amb d’altres entitats. Fins i tot l’espai virtual ens obre nous horitzons.
En la secció “Annexos” del material web, podeu consultar diversos models organitzatius dels espais-aula del parvulari.
L'organització dels espais aula a l'escola bressol i el parvulari
Perquè l’aprenentatge sigui profitós, cal organitzar i distribuir els espais de l’aula adequadament.
“A l’hora d’organitzar l’aula cal tenir en compte quines activitats farem i com les estructurem, quins són els nostres objectius, quines metodologies de treball fem servir, els materials, la distribució del temps, la necessitat d’estabilitat i seguretat emocional, i d’intimitat dels infants.”
M. A. Pujol (1992). “Organización y estrategias educativas”, a: T. Lleixà (coord.). La educación infantil 0-6 años (vol. III, pàg. 63-64). Barcelona: Paidotribo.
Com els altres espais, l’aula ha de ser un espai motivador per a l’infant, un lloc per viure experiències, per dur a terme tota mena d’activitats interessants i facilitadores dels aprenentatges, per jugar, per menjar, per descansar, que li doni l’oportunitat de ser autònom. L’aula és un ambient de vida on els infants s’han de trobar a gust: cal que les aules siguin boniques i acollidores, com ens agrada que sigui casa nostra, i que ens sentim ben tractats. Cada aula tindrà el seu estil propi, la seva identitat. En el cas de l’etapa d’educació infantil, l’aula serveix als infants per relacionar-se amb els altres i també per usar l’espai d’una manera autònoma.
La seva organització ha d’afavorir les activitats d’exploració i experimentació, i també evitar la dispersió. Ha de tenir punts clars de referència i estabilitat que estimulin l’autonomia dels infants, però també la seva capacitat d’imaginar i crear.
La importància pedagògica de l’espai aula ha estat destacada en els últims anys per molts autors.
“Els resultats de l’exploració d’aquest espai educatiu […] són molt reveladors. Les diferents línies de treball coincideixen en el fet de considerar les aules i els centres com a contextos […]; subratllen el caràcter de mediació en el sentit que Vigotski els atribuïa, ser un artefacte socialment construït, […] l’extraordinari potencial del grup […]. Amb tot això s’amplia la noció d’aula i de les possibilitats i funcions educatives que té […]. Ja no és necessàriament un lloc entre quatre parets, sinó qualsevol àmbit on s’estableixi una relació educativa entre l’alumnat i professor-alumnat […] les aules són contextos que permeten elaborar […] una cultura pròpia en el si del grup […]; generen múltiples situacions de comunicació […]; els efectes de naturalesa social i afectiva que es generen en el si del grup són extraordinàriament importants per als individus, perquè incideixen en la seva pròpia autoestima.”
J. Rué (1998). “El aula: un espacio para la cooperación”. A: C. Mir (dir.). Cooperar en la escuela. La responsabilidad de educar para la democracia (pàg. 25-27). Barcelona: Graó.
Es pot considerar l’aula un context d’aprenentatge (xarxa d’estructures d’espais, que poden possibilitar o limitar les activitats educatives), un context simbòlic (l’ambient de l’aula condiciona la manera de pensar: és el fons dels missatges educatius), i un context comunicatiu, d’interacció i de convivència.
L’espai aula es pot organitzar de manera que cada nen tingui el seu lloc, en funció de les persones, o bé com a zones d’activitat diferents, per les quals passen els infants. A l’escola bressol i el parvulari aquesta segona opció és la que més s’adapta a les necessitats infantils, i ha comportat que es proposin noves formes d’aula: a més de les rectangulars, altres disposicions (en T o en L, que donen noves opcions per crear els racons o zones d’activitat).
L’espai de cada grup, estança bàsica o espai aula és, a la llar d’infants i el parvulari, un espai de vida. Cal que sigui estable, perquè l’infant pugui apropiar-se’l, construir la seva identitat, identificar-se amb el seu espai i també com a membre d’un grup. En el cicle de parvulari podem descompartimentar més les aules en alguns moments (per exemple, organització de tallers o altres activitats), encara que en tota l’etapa tots els espais de l’escola tenen un caràcter educatiu.
-

- Els elements decoratius i ornamentals han de permetre el desenvolupament de la percepció visual i l'educació estètica. Estança del nadons. EBM El Vent, Barcelona.
Pel que fa a les condicions i els criteris organitzatius de les aules, són vàlides les propostes que hem fet en parlar dels espais comuns i dels espais exteriors de l’escola: la importància que siguin espais amplis, un per cada unitat o grup d’infants, de mida suficient, amb zones d’higiene adequades i, en el cas de les estances dels més petits, amb les zones de biberoneria i zona de bressols independent; que es reuneixin les condicions de seguretat i higiene, un bon manteniment, etc. També hem dit, en parlar dels equipaments, que han de permetre l’accés fàcil i el control de l’educador, cosa que afavoreix la creació de zones. O la necessitat que es tracti d’espais oberts, envidrats, amb accés a l’exterior i als espais comuns, amb estructures de joc i mobles multifuncionals (per exemple, una caseta on ens amaguem però també ens enfilem, arrosseguem, etc.). S’han de senyalitzar les zones segons l’activitat que permeten (dibuixos, normes d’ús, etc.).
La funcionalitat és l’objectiu bàsic dels equipaments de les aules.
Funcionalitat dels espais aula
Cal utilitzar bé els espais, sense aglomeracions, i aprofitar-los per a funcions diverses en moments diferents del dia (per exemple, les taules i cadires que també ens serveixen per muntar el racó de menjador a l’hora dels àpats, o una zona lliure, de moviment, que també ens serveix per fer la rotllana o per posar les màrfegues a l’hora de la migdiada).
Els nadons tenen catifes o tatamis i diferents tipus de seients segons l’edat. Cal que el mobiliari vagi variant i creixent segons el grup, que les prestatgeries i els calaixos estiguin a la seva alçada i que el mobiliari permeti endreçar els treballs i els materials. Han de tenir un lloc per guardar les seves coses al parvulari, i que els professionals tinguin cura de la neteja del mobiliari. Cal que el disseny dels prestatges estigui pensat per al que contindran (per exemple, els contes, classificador de treballs, etc.) i que part del mobiliari permeti la flexibilitat en la seva utilització i es puguin combinar en diferents formes: per exemple, la zona de tatami de nadons es pot obrir o tancar segons l’edat i les necessitats dels nens i nenes.
També s’ha de facilitar, a més de l’autonomia infantil, el confort dels adults. En aquest sentit, té importància la proximitat del wàter, del canviador i els lavabos, i que siguin zones que permeten el control visual de l’aula. Hi ha d’haver prou elements i d’accés còmode per organitzar les coses de cada nen i també un lloc per guardar les màrfegues.
Segons R. Tavernier (1984, pàg. 23-25), els tres aspectes més importants que cal considerar en l’organització de les estances bàsiques o sales de joc són els següents:
Una organització que canvia
No hi ha cap solució miraculosa i cal anar fent ajustaments: una aula que era funcional a l’inici del curs pot haver deixat de ser-ho en començar, per exemple, el segon trimestre. Les modificacions i canvis a l’espai aula les fan els educadors, i consisteixen a canviar mobiliari, racons, material didàctic, etc., però podem aprofitar els canvis per treballar-los amb els infants. De totes maneres, en el primer cicle cal vigilar que no hi hagi massa canvis per garantir l’estabilitat dels infants.
- Que hi hagi la presència tranquil·litzadora de l’educador, i un ambient de confiança i afecte.
- Que es puguin fer desplaçaments variats i fàcils (per la qual cosa recomana evitar les aules totalment equipades, plenes; i també les classes passeig o classes exposició, amb les zones d’activitat al llarg de les parets i un buit central, perquè llavors les relacions s’organitzen al voltant del mestre, animador de l’espai buit).
- Que contingui una gran diversitat de materials, en la quantitat adequada.
Algunes de les zones que podem trobar en una aula d’educació infantil, que ha de tenir accés directe als espais comuns interiors i exteriors (i és un espai al qual accedeixen també els pares i les mares) són: les zones de menjar, higiene i descans; la zona de jocs, que s’estructura en diferents àrees −sense fragmentar-la en excés− per disposar de zones més tranquil·les (del matalàs o la catifa, racó de biblioteca, per exemple) i de zones de més moviment; de zones per a activitats més individuals i d’altres per dur a terme activitats col·lectives. El lloc per a la rotllana, un tauler d’anuncis, les taules i els seients (que, en cas que dinem a l’aula, també faran la funció de racó de menjador), o els casellers individuals per ordenar els treballs, per guardar tresors, rebre missatges, etc. són altres elements indispensables.
Cal que les zones vinculades estiguin a prop (per exemple, un racó de plàstica i un taller de fusteria) i, en canvi, que separem les zones d’activitat més tranquil·la de les d’activitat més moguda, i les més íntimes i d’activitat individual de les més socials o col·lectives.
La distribució dels espais de les aules de la llar d’infants i del parvulari no és la mateixa per a totes les edats, sinó que cadascuna té característiques que fan que s’hagin de distribuir i organitzar independentment: encara que alguns criteris generals siguin els mateixos, és diferent organitzar una aula de bebès que una de pàrvuls de cinc anys.
Pel que fa a la biberoneria,...
… cal que hi hagi prou espai i que sigui adequat per a la preparació dels aliments, i ha de disposar d’una pica d’ús exclusiu per als aliments, un fogó situat a una alçada mínima d’1,20 m, una taula, un armaris i una petita nevera. Resulta molt aconsellable disposar d’un prestatge per cada nen (per als seus biberons, pots de llet, cereals, gots, etc.). Els penjadors per als pitets els situarem a l’alçada dels infants i molt a prop de la biberoneria, per tal que puguin accedir-hi ells mateixos en els darrers mesos del curs. És indispensable que la superfície de treball estigui orientada cap a la resta de l’estança per afavorir-ne el control visual per part de l’educador en tot moment, i també la transparència d’aquest subespai.
Organització i distribució de l'aula o sala dels infants de 0 a 1 any
Una aula o sala per a infants de 0 a 1 any ha de tenir diverses àrees independents per al descans, la higiene i la preparació dels àpats (dormitori, sala de canvi i biberoneria), un espai central de jocs i un racó per a l’educador (amb una taula i una cadira de braços còmoda).
El dormitori ha de quedar aïllat i disposar de finestra a l’exterior, i pot tenir una porta amb vidre superior i cortinetes. Els bressols han de ser de fusta, de superfície dura i d’una alçada còmoda per a l’educador i han de tenir un disseny segur.
La sala de canvi, independent i envidrada, també ha de permetre el control visual per part de l’educador de la resta de l’espai de l’aula. La pica i la lleixa han de reunir les garanties de seguretat i higiene, i els armariets individuals han de ser de fàcil accés per a l’adult. A la zona de vestíbul o entrada a la sala hi pot haver un tauler i un penjador per cada nen.
L’organització de l’espai de la sala dels nadons ha de respondre a les necessitats fisiològiques, de descobriment del propi cos i de l’entorn i de llenguatge. Ha de permetre una distribució d’activitats adaptada al ritme individual de cada infant, i els espais es van adaptant al llarg del curs a mesura que es modifiquen les necessitats dels nens i nenes.
Així, en aquesta estança hi ha d’haver un espai per explorar l’entorn amb matalàs o catifa, un altre per gatejar i desplaçar-se; un o més miralls (al costat o penjat a la zona de canvi; a la paret); una organització de l’espai per al descans, i un espai per satisfer les necessitats d’alimentació (primer, a la falda de l’educador; posteriorment, en cadiretes i taula).
Organització i distribució de l'aula o sala dels infants d'1 a 3 anys
Els espais a l’aula o sala dels infants d’1 a 3 anys s’han d’organitzar per afavorir l’autonomia dels infants i el desenvolupament dels llenguatges. A més de les àrees de descans (que poden ser bressols fins als 2 anys, encara que en moltes escoles s’usen les màrfegues a partir del segon any de vida, per la qual cosa cal disposar de tarimes, armaris o estructures per penjar-les o recollir-les), de la sala de canvi i “zona d’aigües o serveis” i de la biberoneria (a les sales d’infants fins als 2 anys), les zones o racons són els següents:
- La zona de catifa o matalàs: per descansar, relaxar-se, trobar-se tot el grup d’infants, amb mirall, racó o panera de llibres, tauler de fotos, etc.
- La zona o zones de joc simbòlic: casa-cuina, habitació-nines, disfresses-maquillatge, garatge-cotxets; construccions), degudament equipades.
- La zona o zones de manipulació i exploració: per a jocs de “taula” (puzles, construccions, encaixos, etc.) i activitats plàstiques (racó de l’aigua, etc.; racó d’observació de la natura).
- La zona o zones per al moviment i els desplaçaments: espai ampli, amb alguna estructura de joc, rampes, etc., entre d’altres.
- L’àrea de reagrupament o “rotllana”, per fer diverses activitats en grup i estar junts (conversar, explicar contes, etc.). Les taules i cadires, no gaire nombroses, s’han de poder agrupar de maneres diferents segons ens convingui.
- Altres racons: el de música, la pissarra, el racó de biblioteca, etc.
Organització i distribució de les aules al parvulari
M. A. Riera (1992, vol. III, pàg. 133) proposa una organització de les aules al parvulari en les àrees següents:
- Zona grupal: amb coixins, catifes, banc, etc., el tauler calendari, el tauler dels responsables de la setmana (encàrrecs).
- Zona de jocs simbòlics: àrea de la casa cuina, botiga, hospital, disfresses i maquillatges; titelles de pal, de guant, de fil, construccions, etc.
- Taller d’expressió plàstica: amb diferents àrees per pintar, modelar, fer collage, treballs de fusteria, tapissos, etc.
- Zona d’expressió abstracta: àrea de lògica matemàtica, de biblioteca, de les grafies i les lletres, de música, etc.
- Zona per a l’observació, la manipulació i l’experimentació: animals, plantes, hort, germinacions, classificació d’objectes de la natura, terrari, àrea de laboratori, àrea d’observació del temps, àrea dels jocs sensorials, etc.
Per al grup de 2 a 4 anys, Du Saussois (1982) proposa els tallers indispensables i permanents següents:
- Jocs lliures-racons de joc: de nines, cuineta (que poden ser agrupats en un mateix racó), garatge i construccions, i jocs d’aigua.
- Tallers d’activitats més específiques: llenguatge-descobriments, biblioteca, activitats manuals (amb una sola tècnica cada vegada), dibuix lliure i pintura (poden ser agrupats en un sol taller); jocs tranquils (puzles, construccions, etc.), racó de repòs amb coixins, etc.
Per a l’aula de 4 a 5 anys, Du Saussois proposa ampliar les activitats de rebuda, amb l’observació del temps i la cura d’animals i plantes. Els tallers són més nombrosos, i les seves activitats també tenen lloc al matí i a la tarda (quan generalment es duen a terme els tallers de treballs manuals). En formen part els tallers següents:
- De jocs (simbòlics: de nines, disfresses, cuineta, etc.)
- De jocs d’iniciació a la lectoescriptura (puzles, dòminos, encaixos de peces)
- Taller de jocs matemàtics (jocs de construcció, manipulació, ritmes, ordenacions, etc.)
- Taller de llenguatge i biblioteca
- Taller de descobriment (fotos, dibuixos, llibres, catàlegs, etc.)
- Taller de jocs gràfics
- Taller d’activitats manuals
- Taller de dibuix lliure-pintura
També s’afegeixen jocs de ritme després del pati de la tarda.
En el darrer curs de parvulari encara s’amplien més els tallers, els jocs i les activitats de lectoescriptura, amb més tècniques d’expressió plàstica en els tallers d’activitats manuals, dibuix lliure i pintura, i taller de cuina (jocs lliures, realització de fitxes, àlbums, classificacions i codis, elaboració de plats i descodificació de les receptes de cuina).
-

- Racó d'expressió plàstica. Aula de P3, Escola Parc del Guinardó, Barcelona
Tallers indispensables
Com a tallers indispensables i permanents a l’aula de P4 i P5, Du Saussois proposa els següents:
- Jocs lliures-racons de joc: jocs d’imitació i jocs simbòlics (2 o 3 tallers).
- Tallers d’activitats més específiques: llenguatge, descobriments, biblioteca, i descans; el de dibuix lliure, pintura, grafisme; el de jocs, puzles, encaixos de peces, jocs d’identificació; el d’activitats d’exploració (iniciació), manipulacions i introducció matemàtica; i el d’activitats manuals.
- Altres tallers possibles: cuina, garatge, construcció, nines, infermeria, titelles, jocs d’aigua, botigues especialitzades variades, etc.
-

- Aula de parvulari. Distribució de l'espai a l'aula de 5 anys, Escola Arc Iris, Barcelona.
Altres propostes en relació amb l’organització de les aules de parvulari les recull Zabalza (1996). Una d’elles descriu nou angles en l’organització de les aules dels infants de 3 a 6 anys:
- Angle de la neteja i l’ordre de la classe: amb els petits objectes que ajuden a fer-ho: escombres, fregalls, esponges, bosses d’escombraries, etc. També es pot posar el material dels primers auxilis i un mirall.
- Angle dels jocs: varien segons l’edat, les exigències i els interessos dels infants. Ha de quedar una mica aïllat de la resta de la classe amb una mampara i una catifa.
- Angle de les activitats cognitives: sol ser una prestatgeria amb diverses baldes, amb llibres (de manipulació o il·lustrats); instruments d’investigació per mesurar, comparar, provar (com embuts, ampolles, balances, metre, etc.) i altres materials estructurats (com bitllets, loteria, tómbola, blocs lògics, nombres de colors, etc.).
- Angle de les activitats expressives, manuals i gràfiques: hi pot haver una taula per fer treballs manuals, algun cavallet per pintar, grans cartolines blanques; o suros a la paret amb xinxetes per penjar els treballs o exposar-los, o deixar assecar, etc.
- Angle dels audiovisuals: pot reunir alguns instruments de música i ritme (tambors, campanetes, maraques, castanyoles, harmònica, reproductor de música, etc.) col·locats sobre taules o baldes.
- Angle dels instruments d’educació física: amb el material del gimnàs i també amb cordes, cèrcols, bitlles, pilotes.
- Angle de l’aire lliure: pot incloure des de les eines de jardineria fins als utensilis per a l’observació (com una lupa grossa) i per a la recol·lecció (capses i pots ben nets i tancats).
- Angle del teatre:: normalment només es requereix una tarima i un gran cistell amb robes, disfresses, etc. També les titelles i el seu teatret. O si no, una corda entre dos armaris que ens permeti amagar-nos darrere d’una roba o cortina.
- Angle del conte: és el més recollit i tranquil, amb els mobles a l’alçada dels infants.
Els materials de l'escola infantil
Els materials de l’escola infantil són un element imprescindible en l’espai educatiu, d’acord amb el nostre concepte d’educació infantil basada en l’activitat dels infants, als quals considerem competents per construir aprenentatges. Els materials són intermediaris entre els infants i la seva activitat, i seu valor es relaciona amb les metodologies de treball que fem servir: moltes vegades fins i tot el seu valor pedagògic depèn més del context que de les seves pròpies qualitats com a material. Una organització flexible de l’espai i del temps requereix també un ús obert i flexible dels materials.
Podeu consultar altres models organitzatius dels espais aula de parvulari i més informació sobre els racons en la secció “Annexos” del material web.
Quins tipus de material seleccionem, on els posem, com s’utilitzen, s’adeqüen o no a les necessitats dels infants, etc. són qüestions que formen part del nostre projecte educatiu i del projecte curricular de centre i que cal que l’equip educatiu discuteixi.
Els recursos materials han de permetre posar en joc les vivències, les emocions, els sentits i les habilitats dels infants, i també les seves capacitats intel·lectuals i les de relació amb el grup i amb les persones individualment.
Algunes definicions de material
Tenen una funció instrumental: són “mediadors entre la persona i la realitat que s’ha d’aprendre” (J. Gairín, 1994).
“[…] són els recursos materials i els equips tècnics de què disposen els infants i els educadors” (M. A. Zabalza, 1996).
Com a recurs didàctic, és qualsevol element material, funcional, tècnic o personal que facilita o mitjança en el procés formatiu.
S’han definit els materials curriculars de maneres diferents segons els autors. Hi ha qui usa el terme recurs o mitjà per referir-se als aparells i materials. D’altres creuen que un recurs és qualsevol procés o instrument per a l’ensenyament. O aquells llibres i materials que serveixen de suport als processos d’aprenentatge dels infants, i d’orientació als processos d’ensenyament dels educadors:
“[material curricular és] qualsevol tipus de material destinat a ser utilitzat per l’alumnat, i aquells materials adreçats al professorat que es relacionin directament amb aquells, sempre que aquests materials tinguin com a finalitat ajudar el professorat en el procés de planificació io desenvolupament io d’avaluació del currículum.”
A. Parcerisa (1996). Materiales curriculares: cómo elaborarlos, seleccionarlos y usarlos. Barcelona: Graó.
Els materials didàctics són recursos de tota mena −des d’un llapis fins a un ordinador− i inclouen els materials que fan servir els infants, els que utilitzen els adults i els equipaments de l’escola. Un ventall ampli d’elements més enllà d’aquells que han estat qualificats com a didàctics.
-

- El peluix és un material educatiu i didàctic important.
“Si per ‘materials’ volem indicar tot allò amb què es fa alguna cosa, que serveix per produir, per inventar, per construir, caldria parlar de tot el que ens envolta, de l’aigua a la terra, dels rocs als animals, del cos a les paraules… […] I, per tant, també dels vestits, de les joguines, dels llibres, etc. perquè tot això pot esdevenir material per fer, en mans d’un infant, que viu en un ambient on inventar és lícit i més aviat desitjable. Per‚ ‘materials’ es poden entendre, en canvi els‚ ‘materials didàctics’ i aleshores el tema s’amplia desmesuradament i certament avui seria útil de tractar alhora de blocs lògics, d’àbacs, de nombres de color, de limògraf, d’aparell enregistrador, de màquina fotogràfica, de llibretes de ratlles i de quadrets.”
F. Tonucci (1988). Els materials (pàg. 15). Vic: Eumo.
Els objectes i, molt en especial les joguines, juntament amb les imatges i les paraules, també ens ajuden a connectar el món familiar amb l’escola i a crear un ambient càlid i acollidor. De ben segur que recordeu alguns objectes de la vostra infantesa, que encara us emociona veure i tocar: aquella col·lecció de cromos, la nina o el cotxet preferit, el coixí d’anar a dormir, la llibreta de dibuix, un conte molt estimat, aquells petits tresors que guardàvem, etc.: tots ells ens parlem de la importància dels materials en l’educació dels més petits.
Com s'han de seleccionar els materials de l'escola infantil
Cal seleccionar adequadament els materials més idonis i establir criteris apropiats d’utilització. Han de ser atractius, estèticament agradables, motivadors, senzills (fàcils d’usar), poc estructurats, que afavoreixin un ús flexible i obert a l’activitat infantil (caldria evitar, per exemple, les “joguines de mirar”). S’han d’adequar als objectius proposats, a la flexibilitat del currículum, a l’atenció a la diversitat i a les estratègies d’avaluació (encara que a l’aula també tenim altres materials més estructurats i convencionals, d’ús quotidià per als infants, molt útils). Hem de cercar la màxima funcionalitat −com més funcions pugui tenir un material, millor; i com més infants el puguin usar, millor− i ser coherents amb l’organització de l’espai i les metodologies de treball que adoptem.
Hem de disposar de materials en quantitat suficient, per afavorir les relacions positives entre els infants, però sense excessos, per no dispersar l’infant.
Tots heu vist, segurament, infants que es barallen per aconseguir un objecte, però també altres nens i nenes als quals els costa centrar-se davant d’una quantitat massa gran d’objectes de joc.
El material...
… és col·lectiu i, a més de compartir-lo, ha d’oferir possibilitats d’organitzar activitats amb altres nens i nenes. Malgrat això, considerem important, com hem dit, disposar i organitzar adequadament alguns objectes i materials individuals i personals de cada nen.
Els objectes han de ser variats pel que fa a les activitats que permeten, els materials amb què estan fets, els colors, les formes, les textures, i els usos o funcions. La natura, com el reciclatge, ens ofereixen molts materials interessants. És important no treure’ls tots el primer dia i anar proposant diferents materials al llarg del curs.
El material ha d’estar en bon estat (sencer, complet) i ser de bona qualitat i resistent −perquè duri i permeti establir relacions sòlides i estables. Quan es deteriori cal substituir-lo. Ha de reunir les condicions d’higiene i seguretat: de neteja fàcil i segur: fet amb materials no tòxics, de colors sòlids, atraumàtic, inestellable, antiinflamable, sense cantells, de mida adequada −ni massa gran ni massa petit−, que les seves peces no es puguin empassar, etc. A les escoles bressol i, sobretot, a les aules dels petits, cal anar molt en compte de no posar bosses, objectes metàl·lics amb punxes o de peces petites, etc. La neteja és molt important, i a l’aula dels nadons cal fer-la cada dia.
-

- Els materials han de ser accesibles, com es mostra en la imatge de l'aula de dos a tres anys de l'EBM El Vent.
Els materials s’han d’adequar a l’edat dels infants i a les seves necessitats. Així, per exemple, si tenim en compte la maduració infantil, els estris de pintura seran, en el cas dels bebès, les pròpies mans, mentre que a l’aula de 2 a 3 anys pintarem també amb pinzell llarg, que permet moviments més amplis de la mà; i a P5 ja podem treballar amb pinzells de mànec més curt, perquè la seva maduració psicomotora ja ho permet. O pel que fa a la mida dels ninos, ha de ser més gran com més petit sigui l’infant.
Si, a més de seleccionar els materials adequadament i fer-los accesibles als infants, concretem uns criteris d’utilització, ens aportaran una riquesa d’estímuls, però ben estructurats, per tal que es puguin posar en joc les emocions, el pensament, la sociabilitat, la imaginació, els sentits, etc., en definitiva, el desenvolupament integral dels infants. Així, doncs, els materials han de servir per afavorir el desenvolupament dels llenguatges, del pensament, de la sociabilitat, de les competències socials i emocionals, de la responsabilitat, etc.
Organització i disposició dels materials de l'escola infantil
La disposició del material és molt important: ha de ser accessible i visible per al nen (mobiliari obert, a la seva alçada, etc.) per potenciar la seva autonomia. Són molt útils els recipients, envasos i contenidors de material transparent, de transport fàcil (amb nanses), senzills i sense ornaments (capses de fusta, cartró o plàstic; bosses de roba, gots de plàstic, de iogurt; cistelles; baldes; safates de vímet o plàstic o tapes de capses per guardar petits objectes classificats; sobres, fitxers o carpetes arxivadores; tubs de plànols o mapes, etc.).
Cal que hi hagi espais...
… per guardar coses personals, identificats (amb la foto, símbol, lletres, etc.), com el calaix personal per posar tresors o la capseta bústia per rebre els missatges i objectes dels companys; un fitxer individual per guardar les creacions pròpies; els objectes personals (got, davantal, vas, mocadors, penjador per als pitets, llit, davantal o bata, etc.; l’àlbum personal amb les fotos de la família, etc.).
-

- Tot al seu lloc! L'etiquetatge adequat ajuda els infants a mantenir l'ordre del material (EBM L'Arboç, Barcelona).
Emmagatzemarem els materials contrastant formes, colors o grandàries i els distribuirem en diferents llocs de l’estança, ordenats i classificats segons àrees d’activitat (que cal que disposin dels recursos i instruments necessaris). En cas que els etiquetem, ho farem amb senyals fàcilment identificables pels infants, com lletres, dibuixos, símbols, fotografies o altres símbols.
Cal que cada cosa tingui el seu lloc, per ajudar a donar seguretat i afavorir l’ordre. I procurar que els materials no estiguin apilotats, per permetre desar-los i endreçar-los correctament. També cal protegir-los, si és necessari, i fer-los un bon manteniment.
Tipologia i classificacions dels materials de l'escola infantil
El material pedagògic agrupa el material anomenat didàctic (en realitat, totes aquelles coses que permeten aprendre ho són…), les joguines, i també aquells materials d’ús quotidià i domèstic que fem servir a l’escola infantil.
Són molt variats, i els podríem classificar atenent la seva procedència (naturals, de fabricació pròpia o comercials). Els materials comercials solen ser més cars però solen presentar bones qualitats pel que fa a l’estètica, la solidesa, la durabilitat, la qualitat, etc., per la qual cosa cal que els seleccionem molt bé.
També necessitem materials que no es venen i obtenim reciclant, inventant i creant-los, amb molta imaginació i tenint manetes (per exemple, oueres per pintar, o ampolles de plàstic transparent plenes d’aigua tintada de color, amb algun objecte a dins, una joguina per a l’aula dels nadons).
Els materials es poden usar de manera individual (permeten que cadascú vagi al seu ritme, poder repetir les activitats, de vegades també autocorregir-se, etc.) o col·lectiva (ajuden a sociabilitzar-se, compartir, respectar normes, conviure: com la caseta, etc.).
Materials adaptats
De la mateixa manera que adaptem els espais i els temps per atendre els infants amb necessitats educatives especials, també caldrà adaptar els materials (per exemple, llibres tàctils i joguines musicals per a nens cecs, culleres i estris adaptats per a infants amb problemes de motricitat, etc.).
També es classifiquen segons si són fungibles (se solen usar freqüentment i s’han de reposar, com un pot de pintura o les cartolines) o no fungibles (aquells que duren una mica més, i no s’han de reposar amb tanta freqüència, com els llibres o les tisores).
O segons si serveixen més per treballar una àrea curricular o una altra.
Així, trobem els tipus de materials següents:
Mitjans audiovisuals i tecnologies de la informació i la comunicació
També cal integrar els mitjans audiovisuals (ordinador, càmera de fotos, de vídeo, televisió, projector de cossos opacs, retroprojector, franel·lògraf, murals, projector de diapositives, DVD, etc.) i els informàtics al nostre projecte, ja que abasten totes les àrees educatives i tenen una varietat de funcions: motiven, expliquen coses, informen de coses, formen, etc.
- Materials que afavoreixen la descoberta d’un mateix. El principal és el propi cos, draps, coixins, màrfegues, barres, tricicles, rampes, tobogan, pilotes, cèrcols, miralls, espatlleres, cordes per enfilar-se, coixins, grans estructures d’escuma, etc.
- Materials que afavoreixen la descoberta de l’entorn natural i social. Materials sensorials tipus Montessori i d’altres, d’observació i experimentació, tubs, pots de vidre, de plàstic, aigua, sorra, pedres, fulles, animals per observar i cuidar, colorants, embuts, etc. És com una mena de laboratori, tant a l’escola bressol com al parvulari.
- Materials que afavoreixen la intercomunicació i els llenguatges. Llibres, làmines, contes, blocs lògics de Dienes, reglets de Cousinaire, barres, capses per contar, pedretes, safates de classificar, materials inespecífics variats, dòminos, gomes, llanes, fils, botons, pilotes de ping-pong, de tennis, cordes, taps, xapes, pintures, ceres, llapis, guixos, papers variats, tampons, materials de rebuig, rodets, elements naturals, fang, farina, esponges, cotó, etc. per aplicar diverses tècniques de pintura, dibuix, modelatge, retallable, collage; aparells reproductors de so, instruments de percussió, inclosos aquells més rudimentaris −cocos, pals, pots amb fusta o amb arròs, etc.−, robes, miralls, mocadors, màscares, etc.
Cal preveure el material d’ús dels educadors, tant si és imprès (llibres, manuals, revistes especialitzades), audiovisual (vídeos, cassets, etc.) com informàtic (noves tecnologies de la informació i la comunicació o TIC).
Per a més informació sobre els diferents materials que es poden fer servir, podeu veure la secció “Annexos” d’aquest apartat en el material web.
També classifiquem els materials segons l’edat dels infants, les seves necessitats i interessos i les àrees del desenvolupament que més treballen.
Llistes de material classificat per edats
A continuació veurem una classificació dels materials segons l’edat dels infants:
1. Material de joc de 0 a 1 any
- Objectes per agafar i llençar, xumar, colpejar, etc.
- Objectes de la natura (pedres no massa petites, petxines, pinyes, trossos d’esponja, sorra, pals, fruites, fulles, llavors grans, plomes, còdols petits, etc.).
- Objectes manufacturats de materials naturals (pilotes de llana, cistells de diferents formes, objectes de ràfia, anells d’ós, taps de suro de diferents mides, raspalls de dents, pinzells i brotxes d’afaitar, etc.).
- Objectes de fusta (boixets, capses de diferents mides, pandereta, carilló, xiulets, pinces de roba, maces, ous de sargir, rodets de fil, cilindres, pilotes, boles de color per enfilar, etc.).
- Objectes metàl·lics (culleres, batedors, coladors, xiulets, claus, cendrers, campanetes, tapadores de pots, tapadores de cassoles, pots, capses, sonalls, trossos de cadenes, clauers, obridors, etc.).
- Objectes de goma, pell, roba, etc. (pilotes de drap, de goma, de pell natural o de pell sintètica, petit sac de pell amb cremallera, trossos de tub de goma, ós petit, ninos de drap, moneder de pell, bossetes de feltre i de sac per omplir, cintes, betes i cordons de colors per fer manats, etc.).
- Objectes de paper, cartró, etc. (varietat de papers, capses de cartró de diferents mides, formes i colors, postals, fotografies, petits àlbums, etc.).
- Objectes comercialitzats d’ús comú (espremedores, plats, tasses, gots, trossos de mànega, trossos de roba, llana −per fer pompons−, anelles de fusta per a cortinatges, flotadors de xarxa de pesca, rul·los de perruqueria, bigudins, cèrcols de goma de cafetera, pilotes de golf, pilotes de ping-pong, materials d’infermeria, etc.).
- Objectes de rebuig o recollits (cartrons de llet o d’ous, pots metàl·lics, raspalls de dents, raspalls de les ungles, tubs de cartró, tovallons, bosses de pell o de roba, botons, ampolles de plàstic, pots de vidre gruixut, ampolles i pots amb tapa de rosca, etc.).
- Sonalls i altres objectes que facin so.
- Capses musicals.
- Mòbils.
- Ninos de peluix, goma, roba, etc.
- Saltamartins.
- Autòmates.
- Anelles encaixables.
- Centres d’activitat.
- Pilotes de roba, goma, etc., de diferents mides.
- Llibres de paper, cartró, roba, plàstic, etc.
- Carretó.
- Cubs per fer torres.
- Panera dels tresors (amb diferents materials).
- Arrossegaments amb corda o mànec.
- Coixins.
- Cavalls amb rodes.
- Balancins (cavalls o d’altres animals).
- Globus.
- Molinets de vent.
- Titelles.
- Telèfons.
- Instruments musicals casolans de percussió (plat, claus, etc.).
- Joguines per a l’aigua.
- Galledes, pales, rasclets.
- Cotxes per fer-los moure.
- Estructura de joc en fusta i balcones.
- Pintures de dit, ceres, assortiment de paper variat.
- Robes de colors, barrets, etc.
-

- Material inespecífic de joc. Una capsa, quina joguina més fantàstica!
2. Material de joc d’1 a 2 anys
- Objectes per omplir, buidar, colpejar, etc., descrits per a la unitat de 0 a 1 anys.
- Jocs d’arrossegar.
- Jocs de transportar.
- Joguines per a l’aigua.
- Ninos de materials i mides diferents.
- Passejadors.
- Sonalls.
- Tambor.
- Piano.
- Instruments casolans de percussió.
- Pilotes.
- Encaixos de formes geomètriques per introduir en un recipient.
- Encaixables verticals i encaixos plans, senzills, amb peces grans, de volum i apilables.
- Centres d’activitat.
- Jocs de boles, animals o figures geomètriques per enfilar en un pal.
- Blocs lògics i de construcció de fusta i altres materials.
- Construccions gegants de suro, escuma o plàstic.
- Construccions més petites de fusta o plàstic.
- Cistells, capses amb tapa, cubs i sacs de materials i mides diferents.
- Joguines amb rodes per empentar.
- Pilotes de mides, colors i materials diferents.
- Bicicleta de quatre rodes sense pedals.
- Coixins.
- Carretó.
- Assortiment de paper de diferents textures, mides i colors.
- Cartró.
- Material d’expressió plàstica variat (per pintar, modelar, dibuixar, etc.).
- Cotxe de pedals.
- Tricicles amb pedals i sense.
- Llibres d’imatges i àlbums.
- Estructura de joc en fusta amb graons per pujar.
- Animals de balancí.
- Caps de cavall amb pal.
- Cavalls o altres animals amb rodes.
- Globus i molinets de vent.
- Galledes, pales, rasclets.
- Cordes, cèrcols, pneumàtics.
- Titelles.
- Telèfons.
- Bressols, cotxets, vestits, etc. per jugar a ninos.
- Cuina, fireta, escombra, recollidor, etc.
- Tota mena de materials per al racó de les disfresses.
- Cotxets i trenets per fer-los moure.
- Material per al joc heurístic.
Joc heurístic
Necessitarem de quinze a vint bosses de roba amb beta de 50 x 50 cm per guardar els materials de cada sessió, per a cadascuna de les unitats d’infants d’aquesta edat. Els objectes els seleccio- narem dels de la llista detallada de recursos per a infants de 0 a 1 any (objectes de la natura, manufacturats amb materials naturals, de fusta, metàl·lics, comercialitzats d’us comú, de roba i pell, de paper i cartró, de rebuig, etc.).
3. Material de joc de 2 a 3 anys
- Encara farem servir material inespecífic del que hem descrit en l’apartat d’objectes de la llista de 0 a 1 any d’edat.
- Tricicle i vehicles amb pedals i sense; balancins, tobogans.
- Cordes, cèrcols, pneumàtics, xanques de fusta o de plàstic.
- Cavalls i altres animals amb rodes.
- Globus i molinets de vent, galledes, pales, rasclets.
- Pilotes de mides, colors i materials diferents.
- Joguines per als jocs d’aigua i per buidar, omplir i transvasar.
- Pots amb tapa i capses de diferents tipus.
- Construccions gegants de suro, escuma o plàstic.
- Construccions més petites de fusta o plàstic.
- Encaixos de formes geomètriques per introduir en un recipient.
- Encaixables verticals i encaixos plans, senzills, amb peces grans, de volum i apilables i també amb peces més petites.
- Jocs de boles, animals o figures geomètriques per enfilar en un pal.
- Jocs d’identificació i associació de formes i colors tipus dominó i d’altres.
- Puzles de poques peces i trencaclosques; reglets de Cuisenaire.
- Torre de cubs en disminució (tipus torre rosa de Montessori).
- Blocs lògics de Dienes; material sensorial Montessori.
- Coixins, jocs de cartes, llibres d’imatges i àlbums.
- Nines russes i titelles de dit, pal, de guant; telèfons.
- Bressols, cotxets, vestits, banyera, etc., per jugar a ninos.
- Tota mena de materials per al racó de les disfresses.
- Cuina, fireta, escombra, recollidor, etc.; cotxets i trenets per fer-los moure.
- Casa de nines, botiga (amb balança i pesos), cabanya, infermeria (amb xeringues, esparadrap, termòmetre, etc.); joguines d’oficis (banc de fuster, per exemple); orquestra d’instruments de percussió comprats i de fabricació casolana; tota mena de materials d’expressió plàstica.
4. Material de joc de 3 a 6 anys
- Tricicle i vehicles amb pedals; patins, raquetes, pilotes de tennis i ping-pong; tobogans, gronxadors; xanques de fusta o de plàstic; cavalls i altres animals amb rodes; pots amb tapa i capses de diferents tipus.
- Globus i molinets de vent; galledes, pales, rasclets, estels, etc.
- Pilotes de mides, colors i materials diferents.
- Joguines per als jocs d’aigua i per buidar, omplir i transvasar.
- Construccions gegants de suro, escuma o plàstic.
- Construccions més petites de fusta o plàstic.
- Encaixos de formes geomètriques, verticals, plans, de peces més petites.
- Jocs de boles, animals o figures geomètriques per enfilar en un pal.
- Jocs d’identificació i associació de formes i colors tipus dominó i d’altres.
- Puzles de més peces i en tres dimensions; trencaclosques.
- Blocs lògics de Dienes i altres joc de discriminació i lògica.
- Reglets de Cuisenaire, balança, termòmetre, etc.; cartells d’expressió oral.
- Teatre de titelles i titelles de dit, pal i guant.
- Material de desenvolupament sensorial Montessori.
- Llibres d’imatges i àlbums, i llibres de lectura; jocs de cartes.
- Cavallet de pintura, tota mena de materials d’expressió plàstica (més varietat de ceres, pintures, materials de modelar, etc.).
- Nines russes, telèfons, coixins, etc.; racó de l’ordinador.
- Racó de l’experimentació, de la meteorologia, etc.; cotxets i trenets.
- Bressols, cotxets, vestits, banyera, etc., per jugar a ninos, indis, etc.
- Tota mena de materials per al racó de les disfresses.
- Cuina, fireta, escombra, recollidor, etc., joguines d’oficis (banc de fuster, etc.).
- Casa de nines, botiga (amb balança i pesos), cabanya, infermeria (amb xeringues, esparadrap, termòmetre, etc.); altres racons de joc, ben equipats.
- Orquestra d’instruments de percussió comprats i de fabricació casolana (triangles, campanetes, xilofons, capsa xinesa, etc.).
5. Material i recursos didàctics per a totes les edats i/o específics d’algunes activitats
Alguns d’aquests recursos els podem trobar a les diferents estances o bé al magatzem de material o a l’aula d’usos múltiples. Sense voler ser massa exhaustius, val la pena tenir en compte els següents, alguns dels quals ja hem esmentat en els apartats anteriors:
- Material de l’espai exterior: de tipus fix (tobogan, balancins, estructura de joc, muntanyeta per rodar, sorral, bancs, vaixell o cotxe, etc.), semifix (caseta d’indis, bancs, per ex.) i mòbil (pneumàtics, cèrcols, contenidor d’aigua, capses per omplir, buidar i transportar, galledes, pales, cons, sacs, tricicles, pilotes, etc.).
- Material psicomotor i d’expressió dramàtica: espatlleres, màrfegues, coixins, cèrcols, pilotes, cordes, tacs, cintes, túnels, robes de colors de gran mida, mocadors, mirall, barra, llits elàstics, carretons, escala, maons, bastons, disfresses, maquillatge, barrets, teatret de titelles, focus, llanternes i capses d’ombres, etc.
- Material gràfic variat: làmines de llenguatge, cartronets d’imatges, postals, revistes, material per al franel·lògraf, contes, làmines de reproduccions d’obres d’art, de fotografies de paisatges, fotografies de la vida de l’escola i de documentació d’activitats realitzades, etc.
- Rellotges, lupes, calendaris, àbacs; recursos didàctics i material per a l’observació de la natura: peixera, terrari, caseta d’animals i petita granja, hortet.
- Recursos d’expressió plàstica: tota mena de material com pintures, ceres, llapis, gomes, guixos, papers i altres suports, tisores, cola d’enganxar, adhesius, pots i materials de rebuig de tota mena, pinzells, fang, plastilina, pasta de modelatge, esponges i altres materials i instrumental −com ara filferros, suro blanc, farina, retoladors, etc.
- Instruments musicals de percussió i orgue musical, material audiovisual:cassets i discos de contes, cançons, danses, sons i música variada; cintes de vídeo, diapositives i CD-ROM de reportatges d’animals, paisatges i països, contes o filmacions de la vida de l’escola, etc.
- Altres recursos didàctics: televisió, vídeo, aparell d’àudio amb micròfon, càmera de vídeo, franel·lògraf, pissarra, projector de diapositives, càmera fotogràfica, màquina d’escriure, ordinador multimèdia amb canó de projecció, etc.
L'avaluació dels materials curriculars de l'escola infantil
De la mateixa manera que avaluem els processos d’aprenentatge, o si les metodologies que fem servir són les idònies, cal també avaluar els materials curriculars i didàctics emprats.
L’avaluació dels materials curriculars es pot fer mitjançant l’anàlisi dels requisits d’aprenentatge (els materials, permeten opcions obertes i flexibles?, són motivadors?, s’ajusten a les necessitats dels infants?) en funció de si resulten adequats o no per atendre la diversitat, i també en relació amb els seus aspectes formals (és atractiu el material?, com és el seu format, és durador?, té un preu adequat?).
La regulació normativa d'altres espais de serveis educatius no formals d'atenció als infants
Pel que fa a la regulació d’altres serveis no formals d’atenció als infants, esmentarem a tall d’exemple també el Decret 94/2009, de 9 de juny, pel qual es regulen les ludoteques, que aquest decret defineix en l’article primer com els “centres, equipaments o espais delimitats que tenen una finalitat lúdica, socioeducativa, cívica, cultural i inclusiva que elaboren i porten a terme un projecte socioeducatiu, i que tenen com a objectiu principal garantir el dret de l’infant i del jove menor d’edat al joc, col·laborant així en el desenvolupament integral de la persona, per la qual cosa estan dotats d’un fons organitzat de jocs, joguines i altres elements lúdics”, i que compleixen els requisits que determina el Decret.
Les ludoteques poden atendre infants i adolescents des dels 0 fins als 18 anys d’edat i se solen organitzar per grups d’edat. Encara disposem de pocs equipaments lúdics especialitzats en petita infància i per això hi ha moltes ludoteques que només acullen infants a partir dels 4 anys.
En relació amb els espais i els instal·lacions, els requisits són els següents (Article 7. Requisits d’espais i instal·lacions, Decret 94/2009, de 9 de juny, pel qual es regulen les ludoteques):
- Les ludoteques han d’ocupar la totalitat d’un edifici o una part d’aquest, completament independitzat. En aquest segon cas, les seves dependències, que han d’estar comunicades entre si mitjançant espais comuns propis, han de constituir una unitat independent.
- Totes les ludoteques han de disposar necessàriament i com a mínim dels següents espais i instal·lacions diferenciats: zona d’acollida, espai/s de jocs, àrea d’administració i gestió, magatzem, sanitaris.
- Els centres que acceptin usuaris i usuàries menors de 4 anys han de disposar, a més dels espais i instal·lacions enumerats en l’apartat anterior, d’una cambra amb canviador d’ús preferent de les persones menors.
- La superfície mínima d’espai útil per al joc de la ludoteca ha de ser de 50 metres quadrats. L’aforament màxim del centre s’establirà aplicant la proporció de 2,5 metres quadrats d’espai útil per al joc per usuari.
- Els equipaments i mobiliari han d’estar adaptats a les edats i característiques dels seus usuaris i usuàries, i s’han d’evitar cantoneres, materials de risc o estellables i obstacles aliens a l’estructura de l’espai d’acord amb la normativa aplicable en aquesta matèria.
Entre altres aspectes, el Decret també defineix els espais de joc i estableix que cal disposar de zones diferenciades segons els aspectes motrius del joc i que s’ha de mostrar de manera visible i entenedora l’edat de les persones usuàries de cada zona i l’aforament màxim que tenen. Les ludoteques han de tenir sales taller i espais d’emmagatzematge ordenats degudament i també una zona per a rentar les joguines, d’accés exclusiu del personal. En cas de disposar de jardins, terrats i patis interiors, no computen com a superfície mínima útil de la ludoteca.
En relació amb les condicions d’higiene i seguretat només el personal té accés als llocs on es desen les eines i els recursos de les sales taller; es recomana, en cas de tenir sorral a les zones exteriors, garantir-ne el correcte manteniment higiènic i sanitari. Els jardins, terrats i patis on es fan activitats lúdiques han de disposar de totes les mesures adequades per a evitar accidents i riscos, entre d’altres, d’abocaments i han de tenir sistemes de protecció i seguretat per a evitar i prevenir la caiguda accidental d’objectes des de l’exterior o des de l’interior del recinte. Tampoc no és permesa la instal·lació de serveis de bar ni màquines subministradores de begudes i menjar dins els espais de joc.
Hi ha altres serveis d’atenció als infants que també tenen regulacions sobre els seus espais i instal·lacions, com és el cas dels centres d’acolliment i residencials, i dels centres oberts dels serveis socials d’atenció primària, o dels casals cívics infantils. L’establiment de mesures reguladores dels serveis d’atenció educativa destinats als infants i a les seves famílies s’inscriu en les polítiques actuals d’atenció a la infància i a la família, que cerquen la qualitat en l’atenció i entenen els serveis com un dret dels ciutadans, defugint d’antigues concepcions assistencialistes.













