Memòria tècnica de disseny d'instal·lacions especials
Els requisits que cal aplicar en les instal·lacions elèctriques especials són molt nombrosos i presenten característiques força diverses. Les prescripcions que estableixen les diferents instruccions tècniques són mesures necessàries per a un funcionament correcte del servei, però també són uns elements de seguretat i de prevenció dels riscos elèctrics associats a la instal·lació.
Per aquesta raó i a fi d’assegurar que es compleixen totes les condicions que estableix el Reglament electrotècnic i poder donar garanties del seu funcionament correcte, l’Administració necessita poder disposar de totes les dades en les quals s’ha basat la instal·lació per atorgar el vistiplau, i autoritzar-ne la posada en marxa.
Execució i tramitació de les instal·lacions
Per tramitar davant de l’Administració les instal·lacions elèctriques de qualsevol tipus i, en conseqüència, també les instal·lacions especials, i d’aquesta manera poder entrar legalment en servei cal complir els requisits que a aquest efecte prescriu la instrucció ITC-BT-04.
Els requisits específics depenen del tipus d’instal·lació i de les seves característiques. Hi ha, però, un procediment que és comú per a totes les instal·lacions.
La figura mostra de manera sintètica quins són els passos que cal seguir per obtenir l’autorització administrativa per a la posada en funcionament d’una instal·lació elèctrica.
En primer lloc, un cop enllestida l’execució de l’obra, l’instal·lador ha de dur a terme les verificacions necessàries per assegurar que es compleixen totes les característiques de la instal·lació segons les prescripcions que estableix el Reglament, com també les condicions d’ús redactades en les especificacions pròpies del servei.
Les instal·lacions elèctriques s’han de verificar seguint la metodologia de la norma UNE 20460-6-61.
La instal·lació muntada i verificada, ha de passar posteriorment la inspecció inicial que du a terme un organisme de control associat a l’Administració. La intenció d’aquesta inspecció és comprovar que la verificació anterior de l’instal·lador o el tècnic autoritzats s’ha fet d’acord amb la normativa vigent i compleix tots els requisits establerts. L’exigència d’aquesta inspecció només és d’aplicació en determinades instal·lacions, segons es regula en l’apartat 4.1 de la instrucció ITC-BT-05.
Amb l’aprovació de l’inspector, l’instal·lador ha d’emetre un certificat d’instal·lació, que és el document acreditatiu d’haver seguit tots els passos anteriors, i aportar una sèrie de dades tècniques relatives a la instal·lació.
Finalment, cal registrar el certificat d’instal·lació davant de l’òrgan competent de la comunitat autònoma, en el cas de Catalunya el Departament d’Empresa i Ocupació de la Generalitat, juntament amb un annex en el qual s’hi inclou informació d’interès per a l’usuari i la documentació tècnica corresponent.
Requisits específics per a la tramitació de les instal·lacions elèctriques especials
La verificació i la inspecció de les instal·lacions elèctriques depèn de les característiques de la instal·lació. Segons quines siguin les especificitats de cada instal·lació, el Reglament determina en quins casos cal dur a terme inspeccions inicials i en quins no, i quin ha de ser el tipus de verificacions que cal efectuar.
En el cas concret de les instal·lacions elèctriques especials, les verificacions a efectuar han de complir amb les prescripcions que s’especifiquen en les instruccions tècniques d’aplicació, i en conseqüència els processos de verificació i inspecció inicial n’han de garantir el compliment.
Verificacions que cal fer en les instal·lacions especials
Segons la norma UNE 20460-6-61, que regula les verificacions que cal efectuar en les instal·lacions elèctriques, qualsevol instal·lació elèctrica ha de ser verificada durant el muntatge i/o un cop finalitzat, sempre que sigui raonablement practicable, per una persona qualificada competent en la matèria. I, a la conclusió de la verificació, s’ha d’emetre un informe.
La norma que regula les verificacions que cal efectuar a les instal·lacions elèctriques és la norma UNE 20460-6-61.
En les instal·lacions elèctriques de baixa tensió, l’informe que cal emetre és el certificat d’instal·lació elèctrica de baixa tensió segons el model que apareix a Canal Empresa.
També segons la norma UNE 20460-6-61, els aspectes d’una instal·lació que s’han de verificar, en la mesura que siguin aplicables, són els següents:
- Mètodes de protecció contra els xocs elèctrics
- Presència de tallafocs i altres precaucions contra la propagació del foc
- Selecció dels conductors en funció de la capacitat de transport de l’energia elèctrica i la caiguda de tensió
- Tria i muntatge dels elements de protecció i supervisió
- Presència i ubicació correcta dels elements de seccionament
- Selecció de les mesures de protecció dels equips i la instal·lació contra les influències atmosfèriques externes
- Identificació dels conductors neutre i de protecció
- Accessibilitat quant a la comoditat en les maniobres
- Presència de diagrames, advertències i qualsevol mena d’informació necessària
- Adequació de les connexions dels conductors
- Identificació dels circuits, de les connexions, dels dispositius de protecció, etc.
Instal·lacions especials que seran objecte d’una inspecció inicial
El sentit de les inspeccions inicials és obtenir de l’Administració la garantia que en entrar en servei les instal·lacions elèctriques no representen cap risc. Atès que fer una inspecció inicial a totes les instal·lacions que es registren seria impossible pel cost elevat que tindria, el Reglament en determina un conjunt que, per les seves característiques d’ús i/o per la potència que consumeixen, representen un risc elevat respecte la resta.
Segons aquest criteri, han de ser objecte d’inspecció inicial, un cop executades i abans de ser documentades davant l’òrgan competent de l’Administració, les instal·lacions compreses en les instal·lacions elèctriques especials que detalla la taula.
| Tipus de local especial | Característiques |
|---|---|
| Locals mullats | P > 25 kW |
| Piscines | P > 10 kW |
| Instal·lacions d’enllumenat exterior | P > 5 kW |
Observeu que el factor determinant a l’hora d’escollir quines instal·lacions especials han de ser objecte de la inspecció inicial és la potència consumida, perquè aquest és l’element que incrementa més notablement l’efecte nociu dels riscos elèctrics propis de cada servei.
Organismes competents de la Generalitat de Catalunya
Les competències en matèria d’instal·lacions elèctriques en baixa tensió s’han transferit a les administracions autonòmiques.
Compte!
Atesa la transferència de competències, el Reglament electrotècnic no pot especificar quin és l’organisme encarregat de la tramitació dels expedients, sinó que es refereix simplement a l’organisme competent en la matèria.
La Generalitat de Catalunya és l’organisme competent que té les responsabilitats assignades en matèria d’energia elèctrica al territori corresponent a la comunitat autònoma catalana i ha d’executar les seves competències per mitjà de diferents departaments de la seva organització o per mitjà d’entitats reconegudes.
Les entitats d’inspecció i control (EIC) són els organismes concessionaris de les administracions autonòmiques acreditats per a la inspecció periòdica d’instal·lacions de baixa tensió. En l’àmbit català les entitats d’inspecció i control reconegudes pel Departament d’Empresa i Ocupació de la Generalitat són les següents:
- Organisme de Control Autoritzat
- Asistencia Técnica Industrial, SAE (ATISAE)
- ECA, Grup Bureau Veritas
- TÜV Rheinland Ibérica Inspection, Certification & Testing SA
- Qualiconsult
- Applus Norcontrol SLU
- SGS Tecnos SAU
L’organisme competent per tramitar la instal·lació elèctrica en baixa tensió és l’Oficina de Gestió Empresarial (OGE) de la Direcció General d’Energia i Mines del Departament d’Empresa i Ocupació de la Generalitat de Catalunya, la qual s’encarrega de tramitar i aprovar la posada en servei d’instal·lacions elèctriques un cop executades.
Documentació tècnica d’una instal·lació
La documentació que ha d’acompanyar qualsevol instal·lació elèctrica pot ser, segons la ITC-BT-04, de dues modalitats diferents: un projecte o una memòria tècnica de disseny (MTD).
Totes dues documentacions han de ser redactades, i han de ser signades, per un tècnic titulat acreditat que hagi estat reconegut per l’òrgan competent de l’Administració per a fer aquestes tasques.
La titulació tècnica de grau mitjà en instal·lacions elèctriques i automàtiques acredita els coneixements necessaris per a la redacció d’una memòria tècnica de disseny (MTD) però no és suficient per a la redacció de projectes. Per tant, aquí ens centrarem en la modalitat d’MTD com a documentació a elaborar en les instal·lacions elèctriques.
Instal·lacions especials que requereixen una memòria tècnica de disseny
L’apartat 3 de la ITC-BT-04 detalla quines són les característiques de les instal·lacions que requereixen un projecte per tramitar-les.
No hi ha cap llista exhaustiva d’instal·lacions elèctriques per a les quals sigui necessària una memòria tècnica de disseny (MDT), sinó que la ITC-BT-04 es limita a interpretar que, a fi i efecte de la tramitació final, només necessiten una memòria tècnica de disseny les instal·lacions per a les quals no cal un projecte.
La taula mostra quines d’entre les instal·lacions elèctriques especials necessiten un projecte per a la seva tramitació.
| Grup | Tipus d’instal·lació | Límits |
|---|---|---|
| B | Locals humits, polsegosos o amb risc de corrosió | P > 10 kW |
| C | Locals mullats | P > 10 kW |
| D | Instal·lacions de caràcter temporal | P > 50 kW |
| J | Instal·lacions en màquines elevadores | sense límit de potència |
| J | Instal·lacions amb tensions especials | sense límit de potència |
| J | Tanques elèctriques | sense límit de potència |
| J | Instal·lacions destinades a rètols lluminosos tret les que es consideren instal·lacions de baixa tensió segons el que estableix la ITC-BT-44 | sense límit de potència |
| K | Instal·lacions d’enllumenat exterior | P > 5 kW |
| N | Instal·lacions en piscines i fonts | P > 5kW |
Per a la resta d’instal·lacions especials no indicades en la taula i estudiades en el mòdul cal fer una MTD a efectes de la seva tramitació i aprovació posterior.
La memòria tècnica de disseny (MTD)
La memòria tècnica de disseny és la documentació tècnica que cal presentar a l’Administració per rebre l’autorització de la posada en funcionament de la instal·lació. Aquesta documentació ha d’acompanyar el certificat d’instal·lació, que és el document acreditatiu d’haver seguit amb resultats favorables tots els passos necessaris previs a la posada en servei.
L’MTD està formada per diversos impresos que cal emplenar adequadament amb la informació tècnica corresponent segons les característiques de la instal·lació.
L’instal·lador autoritzat o el tècnic competent encarregat d’emplenar els impresos és el responsable en última instància de la veracitat de la informació que contenen.
L’MTD ha d’incloure la informació següent, distribuïda en dos grups segons la finalitat:
- Dades amb finalitats administratives:
- Les dades referents al propietari de la instal·lació.
- La identificació de la persona que signa la memòria, és a dir, de l’instal·lador autoritzat o del tècnic competent, i la justificació de la seva competència, segons ho estableix l’apartat 4.2 de la ITC-BT-03.
- Les dades sobre l’emplaçament de la instal·lació.
- L’ús que està previst fer de la instal·lació.
- Dades amb finalitats tècniques:
- La relació nominal de tots els receptors que s’instal·laran.
- Els càlculs justificatius.
- Una breu memòria descriptiva en la qual es descrigui l’evolució de la instal·lació i totes les possibles incidències.
- Un esquema unifilar de la instal·lació.
- Les característiques dels dispositius de tall i protecció adoptats.
- Els punts d’utilització.
- La secció que tenen els conductors.
Impresos obligatoris per tramitar una instal·lació elèctrica que requereixi MTD
La Direcció General d’Energia i Mines del Departament d’Empresa i Ocupació de la Generalitat de Catalunya, com a organisme competent en matèria d’instal·lacions elèctriques de baixa tensió, per mitjà de la seva Oficina de Gestió Empresarial, disposa d’uns impresos que serveixen com a base per a la tramitació dels expedients d’una instal·lació elèctrica. En aquests impresos obligatoris han d’aparèixer les dades necessàries que l’MTD ha d’incloure.
Els impresos, la majoria accessibles per mitjà de la pàgina web del Departament, són els següents:
- Declaració responsable per a la posada en servei, la modificació, el canvi de titular o la baixa d’una instal·lació de seguretat industrial
- Certificat d’instal·lació elèctrica de baixa tensió
- Memòria tècnica: esquema unifilar. Model ELEC-2
- Memòria tècnica: memòria tècnica. Model ELEC-3
- Reglaments de seguretat. Model ELEC-5
- Manual d’usuari
Declaració responsable per a la posada en servei, la modificació, el canvi de titular o la baixa d'una instal·lació de seguretat industrial
En la secció “Annexos” del web del mòdul trobareu el formulari que cal fer servir per emplenar l’imprès.
El primer imprès que analitzarem és l’anomenat Declaració responsable per a la posada en servei, la modificació, el canvi de titular o la baixa d’una instal·lació de seguretat industrial. Tal com sabeu, la memòria tècnica de disseny (MTD) ha d’incloure les dades tant de l’instal·lador com del propietari o el titular de la instal·lació. Com en qualsevol altre tràmit de l’Administració, es tracta de presentar qui és l’emissor de la informació i informar sobre quina és la finalitat de la tramitació a l’organisme que la rep.

Les dades que cal incloure en el model Declaració responsable per a la posada en servei, la modificació, el canvi de titular o la baixa d’una instal·lació de seguretat industrial s’organitzen segons la modalitat de la informació que cal adjuntar. En la figura trobareu un exemple del document que es pot descarregar des de l’Oficina de Gestió Empresarial, i que és el document que us ha de servir de model.
El titular. Aquí cal incloure les dades de la persona física o jurídica que és propietària o titular de la instal·lació, i és la que presenta la documentació corresponent davant l’Administració per posar en funcionament els tràmits corresponents. De les dades corresponents al titular de la instal·lació cal aportar el nom i els cognoms i el DNI o NIF.
Juntament amb les dades personals, el propietari o titular manifesta la veracitat de totes les dades que s’hi inclouen. D’aquesta manera assumeix la responsabilitat administrativa en cas de possibles fraus o enganys que es produeixin com, per exemple, la declaració d’una potència inferior a la que realment es consumeix per reduir posteriorment el cost de la part de potència en la factura de la llum.
La responsabilitat de l’instal·lador es limita a aspectes tècnics.
Delegació del tracte amb l'Administració
Es cas de voler delegar la comunicació amb l’Administració en una persona diferent del titular de la instal·lació, es permet el nomenament d’un representant que faci les funcions d’intermediari entre tots dos actors.
L’intermediari és una figura que normalment apareix quan el titular de la instal·lació és una persona jurídica i el seu representant ha de ser el gerent en cas d’una empresa, o el president o director en cas d’altres institucions.
Dades de la instal·lació. En aquest apartat heu d’especificar de quin tipus d’instal·lació es tracta, i el número de registre si s’escau.
Declaració. En aquest apartat hi ha el cos de la declaració jurada relativa a la instal·lació, i és on es pot afegir el nom i NIF del representant o intermediari de la gestió, si existeix.
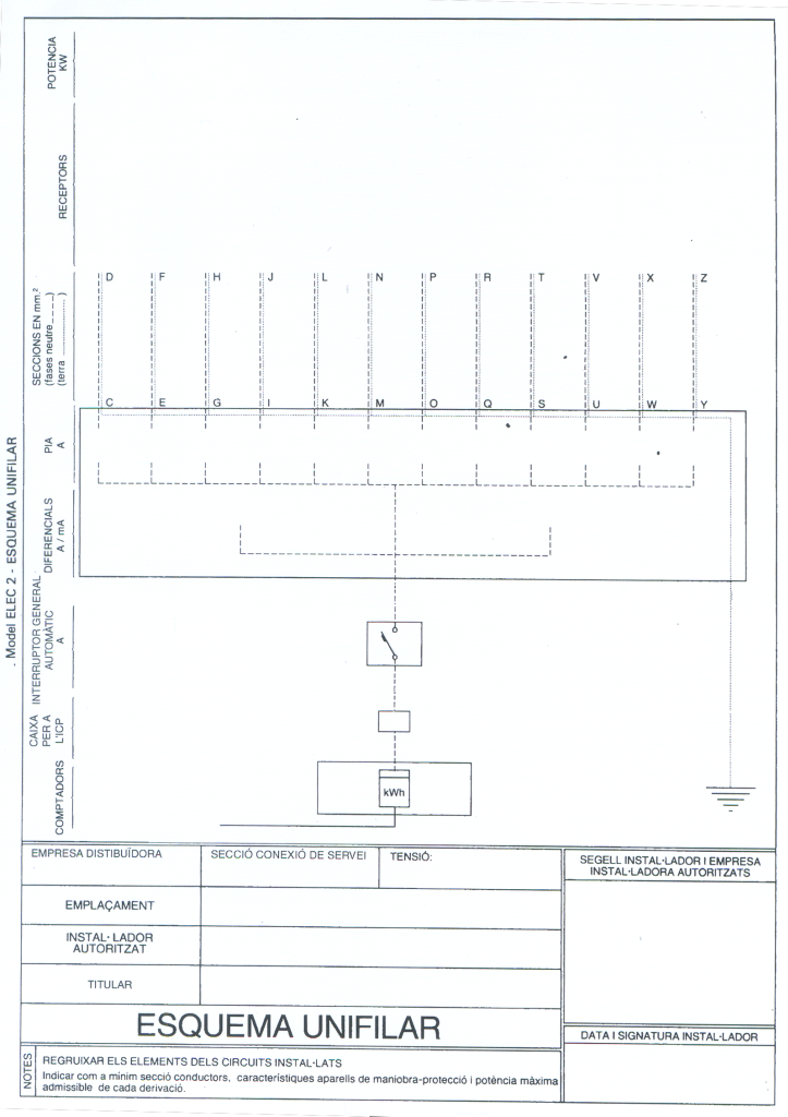
Esquema unifilar. Model ELEC2
El model ELEC-2, tal com el podeu veure en la figura, aporta la informació gràfica de la instal·lació. Consta de dos apartats principals:
En la secció “Annexos” del web d’aquest mòdul trobareu el formulari necessari per emplenar aquest document.
- Representació unifilar amb les referències de la instal·lació
- Caixetí
La representació unifilar mostra l’esquema elèctric de la instal·lació; les referències són la part de l’esquema que ha de permetre, més endavant, localitzar les branques concretes de la instal·lació, i el caixetí us informa de les dades administratives de la instal·lació.
Representació unifilar. L’MTD ha d’anar acompanyada de l’esquema unifilar de la instal·lació, és a dir, d’una representació simbòlica de la instal·lació, juntament amb les caixes de connexions i els aparells que la formen.
La representació unifilar es basa en tres elements principals:
- Caixes de connexió. Són el punt de la instal·lació on s’executen les connexions dels diferents aparells entre ells i amb els cables elèctrics. Es representen amb un punt.
- Canalitzacions i cables. L’esquema unifiliar és topogràfic, és a dir, representa la instal·lació elèctrica tal com es troba muntada al local. La distribució de l’energia en qualsevol instal·lació elèctrica es fa per mitjà dels cables que circulen a l’interior d’una canalització del tipus que sigui.
Compte!
En la representació unifilar, el conjunt canal-cable es representa amb una sola ratlla, la qual ressegueix el traçat de la instal·lació, i és creuada per tantes ratlles inclinades com conductors hi circulen.
Una instal·lació monofàsica es representa amb una línia recta creuada per dues de transversals que representen el conductor de fase i el neutre.
Una instal·lació trifàsica sense neutre es representaria amb una línia recta creuada per tres ratlles transversals que representen les tres fases.
- Aparells. Són els elements d’interrupció, maniobra o receptors, que normalment trobareu al final d’una canalització.
L’esquema unifilar serveix per saber la localització exacta de les canalitzacions i la seva distribució a l’espai, i també per saber els aparells que hi ha instal·lats.
Un esquema unifilar sempre neix a la caixa de connexió, on s’alimenta la instal·lació. Aquesta part es considera el punt de partida de la representació. A partir d’ella, heu de dibuixar la distribució dels cables segons es faci en la instal·lació i l’esquema ha d’acabar amb el símbol de l’aparell adequat.
La figura mostra la representació funcional i unifilar d’un esquema elèctric simple amb un punt de llum i una base de presa de corrent.

Referències. Les referències són les pautes gràfiques que us han de servir per localitzar qualsevol element dins l’esquema, i poder-ne fer esment en qualsevol altre document. Comparant-lo amb un atles geogràfic, les referències serien els nombres i les lletres que quadriculen la pàgina, i serveixen per localitzar qualsevol indret des de l’índex.
Les referències que utilitzareu en una instal·lació seran els trams i les branques. Cada tram i cada branca han d’anar perfectament identificats amb referències alfanumèriques.
Una branca és la part de la instal·lació que s’inicia en una connexió de presa d’alimentació i finalitza en la darrera de les derivacions que alimenten una càrrega. Cada branca la dividireu en diferents trams. Un tram és un bocí de la branca comprès entre dues càrregues diferents, dues derivacions diferents o dos aparells diferents d’una mateixa branca.
En el cas que ens ocupa, heu de referenciar els elements de l’esquema unifilar en la memòria tècnica per informar de les característiques tècniques de cada part. Per fer-ho, heu d’utilitzar unes pautes que hi ha en el marge esquerra del quadre en el qual s’ubica l’esquema. Es tracta d’uns segments identificats amb parells de lletres que es dirigeixen de baix cap a dalt. El dibuix l’heu de representar sempre seguint aquest sentit, de manera que la connexió de la instal·lació amb l’alimentació s’ha de fer sempre en la part baixa de l’esquema. I a partir d’aquest punt s’hi afegiran els elements que formen part de la instal·lació.
En el model subministrat per l’Oficina de Gestió Empresarial i reproduït en la figura, hi ha un exemple d’instal·lació interior comuna, en el qual es poden identificar diferents branques corresponents als diferents circuits interiors de l’habitatge. Així, per exemple, si es pren el circuit C1 com la primera branca, s’hi distingiran els trams següents:
- Comptador d’energia elèctrica
- Interruptor de control de potència (ICP)
- Interruptor general automàtic (IGA)
- Interruptor diferencial (ID)
- Petits interruptors automàtics (PIA)
- Circuit interior (C1)
Caixetí. En el caixetí figuren les dades de referència de la instal·lació. En el cas del model ELEC2 de representació unifilar, hi heu d’incloure les dades següents:
- Empresa distribuïdora de l’energia elèctrica.
- Secció de la connexió de servei subministrada per l’empresa distribuïdora.
- Emplaçament de la instal·lació.
- Nom i cognoms del titular de la instal·lació.
- Nom i cognoms de l’instal·lador autoritzat que ha fet la instal·lació.
- Segell de l’empresa instal·ladora.
- Data i signatura de l’instal·lador.
Memòria tècnica. Model ELEC3
La memòria tècnica reflecteix el resultat de tots els càlculs que s’han fet en la fase de disseny de la instal·lació.
En la secció “Annexos” del web d’aquest mòdul trobareu el formulari necessari per emplenar aquest document.
En el document de model ELEC3 reproduït en la figura apareix una taula, en la qual, en cada filera, hi ha referenciat un segment corresponent a l’esquema unifilar tal com s’ha presentat en el model ELEC2. D’aquesta manera, podeu afegir informació escrita a la informació gràfica anterior sense perdre la traçabilitat de les dades.
La informació que es requereix per a cada filera o, el que és el mateix, per a cada tram significatiu de la instal·lació és la següent:
- Càrrega simultània (%). El percentatge de càrrega simultània expressa la part de la instal·lació que es considera que estarà engegada permanentment, és a dir, la part de la potència nominal que la instal·lació consumeix en qualsevol circumstància. Considereu el circuit C3, el qual correspon als receptors que es troben a la cuina. Si el circuit C3 alimenta el forn, la nevera, la rentadora i el congelador, entre d’altres, sabem del cert que ni el forn ni la rentadora treballaran tot el dia, sinó que només consumiran corrent unes hores determinades al dia. Aquestes hores, en termes percentuals, són les que equivalen al percentatge de càrrega.
- Potència (kW). Es tracta de la potència activa nominal de cada circuit, és a dir, el consum elèctric que representa el total dels receptors connectats al circuit. El seu valor es mesura en quilowatts (kW).
- cos φ. El factor de potència és la relació entre la potència activa del circuit i la potència aparent. Recordem que la potència en els circuits alterns és un vector al qual correspon un mòdul i una fase. Si considereu que el vector de la potència és un triangle –tal com el mostra la figura–, en el qual la hipotenusa és el mòdul del vector o potència aparent (S), els catets seran la potència activa (P) i la potència reactiva (Q). El factor de potència és, doncs, el cosinus de l’angle de la fase (φ) i la seva fórmula relaciona P i S. Una instal·lació ideal hauria d’igualar la potència activa amb l’aparent i, en conseqüència, eliminar qualsevol terme de potència reactiva. Per tant, el factor de potència ideal serà 1.
- Intensitat (A). La intensitat és el consum en amperes del circuit de la instal·lació. En els casos d’instal·lacions monofàsiques el corrent és el resultat que s’obté a partir de l’equació 1, i en els casos de les instal·lacions trifàsiques, el resultant que s’obté de l’equació 2.
Equació 1 (circuits monofàsics)
Equació 2 (circuits trifàsics)
En què P és la potència de la instal·lació en watts (W). V és la tensió eficaç de la instal·lació en volts (V), la qual tindrà un valor de 230 V en el cas dels sistemes monofàsics, i 400 V en el dels sistemes trifàsics. Cos φ és el valor del factor de potència, el qual no s’expressa en unitats.
- Secció per fase (mm2). La secció en mil·límetres quadrats del cable que subministrarà el corrent als receptors del vostre circuit segons la intensitat expressada anteriorment. En el cas de les instal·lacions d’interior us basareu en el Reglament per saber la intensitat màxima admissible corresponent a cada secció, segons el tipus de cable i el tipus d’instal·lació. En la figura trobem indicat el procediment que cal seguir per triar la secció del conductor basat en la norma UNE 20460-5-523 per a un cable monofàsic unipolar instal·lat en un tub i un muntatge superficial amb cobertura de PVC que ha de suportar un corrent de 65 A.
La norma UNE 20460-5-523 substitueix la taula de la ITC-BT-19 pel que fa al valor de les intensitats màximes admissibles acceptades pel REBT.
En la secció “Annexos” del web del mòdul trobareu la taula de la norma UNE 20460-5-523, que ha substituït la taula de la ITC-BT-19.
| Referència de la instal·lació | Descripció |
|---|---|
| A1 | conductors unipolars aïllats en tubs encastats en parets aïllants |
| A2 | cables multiconductors en tubs encastats en parets tèrmicament aïllants |
| B1 | conductors unipolars aïllats en tubs en muntatge superficial o encastats en obra |
| B2 | cables multiconductors en tub en muntatge superficial o encastats en obra |
| C | cables multiconductors directament sobre paret |
| E | cables multiconductors a l’aire lliure |
| F | cables multiconductors en contacte mutu |
- Punt 2. En la mateixa filera, a continuació triareu el tipus de cobertura del cable (PVC) i exposarem si la instal·lació és monofàsica (PVC2) o trifàsica (PVC3).
- Punt 3. Aleshores buscareu la intensitat màxima admissible immediatament superior a la intensitat màxima que circula per la instal·lació.
- Punt 4. Finalment, en la mateixa filera, ja podreu determinar la secció final del cable.
Càlcul dels paràmetres màxims d'una instal·lació
També es pot utilitzar la taula per saber la intensitat màxima que permet una secció ja coneguda de cable. Primer cal buscar la intersecció de la fila corresponent a la secció del conductor amb la columna que correspon al tipus de conductor i la seva instal·lació. El valor que trobeu expressarà el corrent màxim que es permet al tipus de conductor utilitzat segons la seva secció, el tipus de corrent, la instal·lació i el tipus de cobertura. Aquest valor rep el nom d’intensitat màxima admissible.
La intensitat màxima admissible servirà per saber el valor de la potència màxima de la instal·lació, ja que amb aquest valor podeu calcular la potència de la instal·lació segons aquestes dues equacions, la primera en cas d’instal·lacions monofàsiques,
la segona per a les instal·lacions monofàsiques
D’aquesta manera podeu obtenir el valor màxim de potència que pot suportar.
- Longitud (m) o la llargada total del conductor des de l’origen fins al darrer dels receptors. El punt de sortida d’un circuit interior és el petit interruptor automàtic (PIA) que el protegeix dels sobrecorrents. En les instal·lacions de distribució com, per exemple, les instal·lacions en parcs de caravanes o en ports i marines, el punt de sortida és el punt de connexió amb l’alimentació.
- Moment elèctric (kW × m) d’una línia és el producte de la càrrega elèctrica per la distància des de la càrrega fins a l’origen de la instal·lació o l’origen del tram corresponent al càlcul actual en la memòria tècnica. Es pot considerar com l’equivalent de la línia formada per un únic tram amb una única càrrega al seu extrem. Es calcula segons es mostra en l’equació 3.
Equació 3 (instal·lacions alternes monofàsiques)
- Caiguda de tensió. La caiguda de tensió en una instal·lació elèctrica reflecteix les pèrdues d’energia potencial que hi ha hagut des de l’inici de la instal·lació fins als receptors provocades per les pèrdues resistives i inductives principalment. Es pot mesurar en termes relatius a partir de la diferència del voltatge present entre la tensió a l’inici i al final de la instal·lació, tal como ho mostra l’equació 4; o també es pot mesurar en termes percentuals, si dividiu el valor absolut per la tensió nominal, i multipliqueu el quocient obtingut per 100. L’equació 5 presenta la fórmula de càlcul de la diferència de tensió en termes percentuals a partir del valor relatiu. L’MTD us demana les caigudes de tensió a cada punt de la instal·lació en termes percentuals.
La referència de cada tram...
…és la referència creuada que trobareu en l’esquema unifilar del model ELEC2 i que resulta d’utilitat a l’hora de fer esment de cada tram de la instal·lació a la resta de documents.
Equació 4 (en termes relatius)
Equació 5 (en termes percentuals)
Compte!
En l’MTD sempre es fan servir els valors percentuals i heu de distingir entre la caiguda de tensió parcial i la caiguda de tensió total.
La caiguda de tensió parcial és la que es produeix entre el darrer tram d’una mateixa branca de la instal·lació i la càrrega que calculem actualment.
La caiguda de tensió total és la suma de totes les caigudes de tensió parcials dels diferents trams de la mateixa branca. Si una instal·lació està formada per tan sols un tram, aquest es correspondrà a la caiguda de tensió de la branca i els valors parcial i total hauran de coincidir.
Atès que la informació de què disposeu us permet saber quina seria la resistència del conductor a través de la secció del cable, la seva longitud i el tipus de material, resoldreu la caiguda de tensió en el cas dels sistemes monofàsics mitjançant l’equació 6, i per mitjà de l’equació 7 en el cas dels sistemes trifàsics.
Equació 6 (sistemes monofàsics)
Equació 7 (sistemes trifàsics)
En què P és la potència de la instal·lació en watts (W).
L és la longitud del conductor en metres (m) en el cas de la caiguda de tensió parcial, correspondrà a la distància entre la darrera càrrega i la càrrega actual.
γ és la conductivitat del material conductor en (m/Ω· mm2).
S és la secció del conductor en mil·límetres quadrats (mm2)
V és la tensió eficaç de la instal·lació en volts (V), el valor de la qual serà de 230 V en el cas dels sistemes monofàsics, i de 400 V en el cas dels trifàsics.
La taula mostra els valors de la conductivitat per al coure i l’alumini a diferents temperatures.
| Material | Conductivitat a 20 °C | Conductivitat a 70 °C | Conductivitat a 90 °C |
|---|---|---|---|
| Coure | 56 | 48 | 44 |
| Alumini | 35 | 30 | 28 |
- Caracteritzar el conductor. Per caracteritzar un conductor us heu de basar en el fet que està constituït per tres parts bàsiques:
- L’ànima és l’element conductor del cable i està constituït principalment per coure (Cu) i alumini (Al).
- L’aïllament és la protecció de plàstic que envolta l’ànima i s’encarrega de confinar o modificar les característiques elèctriques i magnètiques dels camps que circulen per l’ànima del cable.
- La cobertura és la darrera capa plàstica que cobreix completament el cable i el protegeix contra les condicions ambientals i mecàniques exteriors. Segons les característiques d’un cable, la seva aplicació serà més òptima per a una o altra instal·lació elèctrica especial.
El tipus de cable
El tipus identifica les característiques constructives d’un cable segons els materials que formen la seva cobertura, aïllament i ànima.
Tensió nominal d'aïllament
La tensió nominal d’aïllament és el valor màxim de tensió que pot circular per l’interior del cable sense malmetre les propietats dielèctriques del plàstic que el protegeix.
- Tipus de canalitzacions. En les instal·lacions elèctriques d’interior us heu de guiar per la ITC-BT-19 per saber la intensitat màxima admissible que pot circular per un conductor en funció de la seva secció i del tipus d’instal·lació que es faci servir en el muntatge. L’efecte del tipus d’instal·lació en el corrent màxim admissible està provocat per la capacitat que el cable té de dissipar la calor generada per l’efecte Joule durant el transport de l’energia elèctrica. Aleshores, els conductors veuran rebaixada la seva intensitat màxima admissible a mesura que el muntatge els tapi i enfonsi, i les seves possibilitats de dissipació aïllant-los de l’aire lliure mitjançant les canalitzacions i el soterrament de la instal·lació. Pel que fa als tipus de canalització, es preveuen els següents:
- Sense tub protector (sistema): muntatge fet a l’aire sense cap canalització.
- Sota tub encastat (Ø en mil·límetres): muntatge fet en una canalització enterrada i s’assenyala el diàmetre de la canalització.
- Sota tub sense encastar (Ø en mil·límetres): muntatge fet en una canalització en superfície i s’indica el diàmetre de la canalització.
- Conductor enterrat a profunditat (metres): muntatge fet sense cap canalització i amb el cable enterrat a la profunditat que s’assenyala en la memòria tècnica.
- Aïllament de la instal·lació (kΩ). És la resistència que presenta el conjunt de la instal·lació en condicions normals de funcionament respecte a l’entorn. Ateses les característiques de tensió de servei de la instal·lació, el corrent que hi circula trobaria una resistència corresponent a la resistència d’aïllament de la instal·lació si volgués derivar el seu recorregut cap a l’exterior, tot travessant els aïllaments i les cobertures dels cables i tot l’aparellatge.
- Conductor del neutre (mm2). La secció del conductor neutre depèn de l’anàlisi dels harmònics que hi ha a la línia. En qualsevol cas, si no es disposa de la informació necessària per fer els càlculs esmentats, cal considerar sempre la secció del conductor neutre amb el mateix valor que la secció dels conductors de fase.
- Conductor protecció (mm2). El càlcul de la secció del conductor de protecció es basa en la secció dels conductors de fase a partir de les condicions exposades en la taula.
| Conductors de fase | Conductor de protecció |
|---|---|
| |
| |
| |
Reglaments de seguretat i el model ELEC5
De la mateixa manera que hi ha el Reglament electrotècnic de baixa tensió (REBT), que regula les instal·lacions elèctriques de nova creació i les modificacions de les ja existents, la Generalitat de Catalunya va dictar l’ordenament de tots els aspectes referents a la seguretat industrial en un sol text normatiu. Es tracta de la Llei 12/2008, de 31 de juliol, de seguretat industrial, desplegada en el Decret 30/2010, de 2 de març, en el qual s’aprova el Reglament de seguretat industrial.
En la secció “Annexos” del web del mòdul trobareu el formulari necessari per emplenar el model ELEC5.
“La llei defineix un model de gestió de la seguretat industrial que es basa en l’externalització dels serveis d’inspecció sotmesos ara a un règim d’autorització administrativa prèvia i sota el control de l’Administració, que correspon a ’Agència Catalana de Seguretat Industrial i persegueix, pel que fa a la prestació dels serveis d’inspecció, tres objectius essencials: garantir una cobertura territorial adequada, assegurar-ne la qualitat i establir una competència efectiva i lleial entre els operadors.”
Decret 30/2010, de 2 de març, de desplegament de la Llei 12/2008 de seguretat industrial, preàmbul.
Com afecta això des del punt de vista de les instal·lacions elèctriques de baixa tensió? La resposta la trobareu en el text del Decret 30/2010 que, en l’annex 2, especifica la relació d’àmbits, corresponents als reglaments tècnics de seguretat industrial, en els quals han d’actuar obligatòriament els organismes de control. Aquests àmbits són els següents:
- Aparells elevadors
- Aparells a pressió
- Alta tensió
- Baixa tensió
- Emmagatzemament de productes químics
- Gasos combustibles
- Instal·lacions frigorífiques
- Instal·lacions tèrmiques als edificis
- Instal·lacions petrolíferes
- Instal·lacions de protecció contra incendis
Si bé l’atenció s’ha de fixar d’entrada en les instal·lacions elèctriques de baixa i alta tensió, cal tenir present que el reglament de seguretat vigent en aquests dos àmbits és el REBT, àmpliament conegut. El punt de mira l’heu de col·locar en la resta d’àmbits, especialment en els que, atès quin és el funcionament, necessiten una alimentació en baixa tensió.
En cas que la instal·lació subministri voltatge a alguns aparells que d’acord amb el reglament de seguretat han d’estar subjectes al control de l’Administració i, per tant, vosaltres sigueu responsables directes o indirectes del seu funcionament, ho haureu de notificar a l’Agència Catalana de Seguretat Industrial, d’acord amb allò que assenyala el preàmbul del Decret 30/2010. Aleshores el canal de comunicació amb l’Administració en el cas d’aparells subjectes al reglament de seguretat serà el model ELEC5, que es reprodueix en la figura.
El model ELEC5 consisteix en una relació d’instal·lacions auxiliars i aparells subjectes als reglaments específics de seguretat industrial que són alimentats per la instal·lació elèctrica de baixa tensió, la posada en servei de la qual voleu tramitar. Es tracta d’un document de compliment obligat tant en el cas d’una memòria tècnica de disseny com en el cas d’un projecte.
En l’imprès haurem de fer constar en primer lloc el número d’expedient de la instal·lació per poder referir els aparells a la referència concreta del nostre muntatge. Tot seguit haureu de detallar cadascun dels aparells que són alimentats des de la instal·lació, tot informant de les dades següents:
- La designació del reglament que l’afecta segons la tipologia d’aparells que haureu de considerar i que s’enumeren en la llista que es detalla a continuació:
- I Aparells a pressió (AP)
- II Aparells d’elevació i manutenció (AE)
- III Gasos combustibles (GC)
- IV Emmagatzematge de productes químics (PQ)
- IV Emmagatzematge de productes petrolífers (PP)
- V Fred industrial (IF)
- VI Calefacció, climatització i aigua calenta sanitària (CC)
- El número de referència en els plànols. Tal com heu vist, quan es fa referència a algun element de la instal·lació també cal indicar la referència creuada amb els plànols per poder-lo localitzar amb facilitat.
- La descripció de la instal·lació o l’aparell. Es tracta de descriure en poques paraules l’aparell específic considerat en el número de referència. Especificar si es tracta d’un ascensor, una caldera o un grup de pressió, per exemple.
- El número de registre oficial de l’aparell segons apareix en la placa de característiques. En cas de desconeixement, es pot deixar en blanc. Aquesta dada serveix per referir l’aparell a la documentació que l’Administració té d’ell.
- La data de presentació de l’aparell a l’Entitat d’Inspecció i Control (EIC) per assegurar que l’aparell es troba sotmès a la verificació i inspecció normativa corresponents.
El model ELEC5 el signa el titular de la instal·lació i és aquesta persona física o jurídica qui declara, sota la seva responsabilitat, que les dades que presenta són certes.
Tal com passava en el cas del model d’instància ELEC1, la responsabilitat última pel que fa a la veracitat de les dades presentades a l’Administració correspon al titular de la instal·lació, no a l’empresa instal·ladora, la qual és responsable, al seu torn, del document que presentarà a continuació, és a dir, el certificat d’instal·lació elèctrica de baixa tensió.
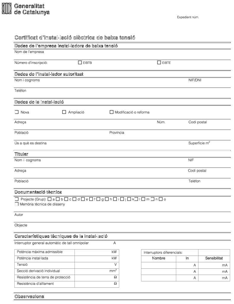
Certificat d'instal·lació elèctrica de baixa tensió
En els apartats sobre les verificacions i la inspecció inicial que cal fer a les instal·lacions elèctriques de baixa tensió, es feia esment de la norma UNE 20460-6-61, la qual expressa la necessitat de certificar que s’han dut a terme els processos de verificació i d’inspecció inicial per mitjà d’un informe. El model d’informe que s’utilitza és el certificat d’instal·lació elèctrica de baixa tensió i que la figura i figura reprodueixen.
En la secció “Annexos” del web del mòdul trobareu el formulari que cal utilitzar per tramitar el certificat d’instal·lació elèctrica de baixa tensió.
En aquest imprès heu de fer constar una declaració dels resultats favorables obtinguts en els processos de verificació i inspecció inicial (si escau). El certificat consta de tres apartats:
- Dades de l’empresa instal·ladora
- Dades de la instal·lació
- Certificat d’inspecció inicial
El certificat és el document en què l’instal·lador garanteix que ha dut terme totes les proves que requereix la norma UNE 20460-6-61 com a mesures de verificació de la instal·lació a partir de les quals es pot assegurar que es compleixen totes les condicions de seguretat i prevenció de riscos necessàries. Cal fer-hi constar les dades d’identificació i de contacte de l’instal·lador autoritzat com també el número d’inscripció del seu carnet d’instal·lador com a darrer responsable de la qualitat i fiabilitat del muntatge elèctric.
El certificat l’ha de signar l’empresa instal·ladora juntament amb la persona que disposa de l’autorització que la capacita per fer i muntar instal·lacions elèctriques de baixa tensió.
En el certificat, també s’han de fer constar les característiques tècniques de la instal·lació, les quals han de coincidir amb les dades exposades en el model ELEC1 corresponent a la instància que cal fer servir a l’hora de presentar la tramitació de la instal·lació davant l’Administració. Les característiques tècniques de la instal·lació són les dades que també heu emprat com a descripció de la instal·lació en el caixetí de l’esquema unifilar en el model ELEC3. Recordeu que les característiques tècniques de la instal·lació són els valors que descriuen en termes genèrics els valors principals, i en condicionen la instal·lació.
Característiques tècniques de la instal·lació
Les característiques de la instal·lació que cal indicar en el certificat d’instal·lació són les que s’enumeren tot seguit:
- La tensió de servei
- La potència instal·lada i la potència màxima
- La secció de la derivació individual
- La resistència del terra de protecció
- El tall de l’interruptor general
- Les diferents sensibilitats dels interruptors diferencials.
El tercer bloc del certificat d’instal·lació correspon al resultat de la inspecció inicial, en els casos en què fer-la hagi estat procedent.
Només les empreses acreditades pel Departament d’Empresa i Ocupació, les anomenades entitats d’inspecció i control (EIC), poden fer les inspeccions inicials a les instal·lacions elèctriques, i a Catalunya tan sols n’hi ha dues: ICICT i ECA.
Manual d'usuari
En acabar una instal·lació elèctrica, el titular de la instal·lació rep un document en el qual es presenta la informació que cal conèixer per a utilitzar-la. Des del punt de vista de l’instal·lador, es tracta de fer comprensibles les dades que ja ha utilitzat anteriorment en l’MTD i facilitar l’ús de la instal·lació al propietari.
Els instal·ladors autoritzats...
…o les empreses instal·ladores autoritzades pel Departament de Treball i Indústria han de fer la instal·lació, l’ampliació, la modificació, el manteniment i la reparació de les instal·lacions elèctriques de baixa tensió.
En el manual d’usuari es pot trobar informació diversa. A més d’altres coses, s’hi pot afegir un croquis de la instal·lació, l’esquema unifilar topològic, és a dir, col·locat sobre un plànol tridimensional del local…, però és comú trobar-hi també algunes recomanacions de seguretat.
Recomanacions per a les instal·lacions elèctriques de baixa tensió
- Utilitzeu els dispositius de protecció. Tingueu la instal·lació amb els dispositius de protecció adequats (fusibles o interruptors automàtics calibrats, presa de terra a tots els aparells amb parts metàl·liques accessibles, etc.) i vigileu que funcionin correctament. Comproveu-ho mitjançant un instal·lador electricista autoritzat que s’identifiqui amb un carnet lliurat pel Departament de Treball i Indústria.
- No als allargadors. Eviteu utilitzar cordons allargadors. No connecteu uns quants receptors al mateix endoll, ja que poden provocar un incendi per sobreescalfament.
- A prova de nens. Tapeu els endolls amb clavilles-tap, per evitar riscos innecessaris, si hi ha nens a casa.
- Instal·leu un diferencial. En cas que no disposeu d’interruptor diferencial, instal·leu-ne un. El diferencial és un interruptor que talla el pas del corrent elèctric quan es produeix una fuita de corrent a la instal·lació (hi pot haver diverses causes: electrodomèstics vells, quan es posa en contacte el cos humà i un punt amb tensió). No hi feu mai un pont.
- Les connexions múltiples. No abuseu de la utilització de connexions múltiples en un mateix endoll o de connexions per mitjà de portalàmpades amb endoll.

















